Gatehouse Keukenhof | Mecanoo
A grand gatehouse Keukenhof designed by Mecanoo welcomes the large flows of, mainly international, visitors to the world-famous Keukenhof park. The stepped timber roof structure of interwoven isosceles triangles leans on two volumes, forming an impressive gateway to the park.
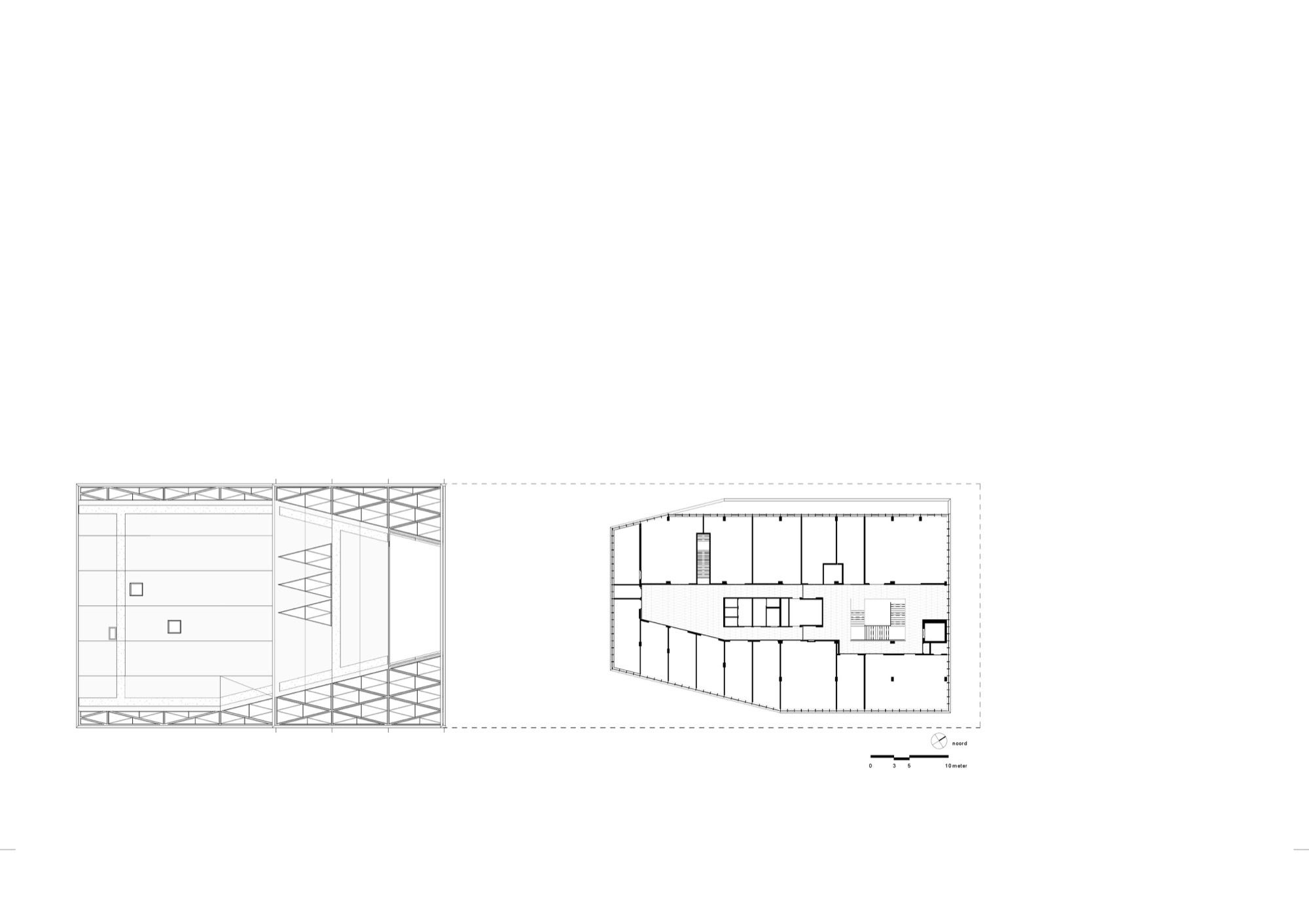
The gatehouse houses public functions such as cash registers, an information desk and retail. Skylights in the roof create a spacious and light atmosphere in the restaurant. Mecanoo’s integral design for the entrance area includes two plazas.
A forecourt with wedge-shaped planters leads visitors from the main car park to the entrance. The gatehouse is the transition between the outside world and the world of Keukenhof and all its flowers. It provides shelter whilst creating an ever-changing play of light and shadow.Looking up, you will see Dutch skies above framed by timber triangles. Look down and you will see patterns of triangular shadows on the ground. A fence with a tulip motif marks the beginning of a journey of discovery.
The use of natural materials – wood, copper, and brick, lend character to the building without being a distraction from its environment. On a beautiful spring day, the glazed facade can be opened almost entirely, blending the interior with the exterior.
Ponds with fountains provide a suitable ambiance for a pleasant day out and sitting on the spacious terraces, visitors are treated to views over the largest tulip field inside the park.
A grand, stepped canopy connects the two building volumes with a cashier, information desk, offices, and restaurant.There is a wide entrance with a fence with tulip motif leads visitors into the world of Keukenhof. The timber roof structure casts an ever-changing pattern of triangular shadows on the ground.Shops and restaurants open up to the inner square, creating a lively atmosphere.
The timber roof structure lets natural light flow freely into the restaurant. With its water features, the inner square is a pleasant place to start or end a visit to the park. The spacious light-filled atrium leads staff to the office spaces and meeting rooms on the 1st floor. The wedge-shaped planters in the outer court define the paths to the entrance of the park.
Project Info :
Architects: Mecanoo
Project Year: 2016
Project Area: 3200.0 m2
Contractor: Van Wijnen, Dordrecht, the Netherlands
Manufacturers: Heko Spanten, KME TECU, Petersen Kolumba
Structural engineer: IMD bv, Rotterdam, the Netherlands
Project management: Frans de Brabander, Poeldijk, the Netherlands
Mechanical and electrical engineer: DWA, Bodegraven, the Netherlands
Project Location: Keukenhof, Stationsweg 166A, 2161 AM Lisse, The Netherlands
Client: Stichting Internationale Bloemententoonstelling Keukenhof, the Netherlands
Project Name: Gatehouse Keukenhof
All Images Courtesy Of Mecanoo

































