FW JI·The Rural Memory Museum, The project, a sub-project of the “IARA Rural Revitalization – Fengwu Ji,” is located in Fengwu Village, Yixian County, Huangshan City. The site is situated in the heart of Fengwu Village, originally occupied by an old house. Over time, it later became a small square, but due to its incompatibility with the local climate, its use remained low. The design aims to convert this underutilized space into a vibrant public venue. The project is located in Fengwu Village, Biyang Town, Yixian County, Huangshan City, and is a sub-project of the ” IARA Rural Revitalization – Fengwu Ji.” The site is in the heart of Fengwu Village, originally home to an old residence that, over time, was replaced by a small village square. However, due to its incompatibility with the local climate, the square was rarely used. The design aims to transform this underutilized space into a vibrant public area.
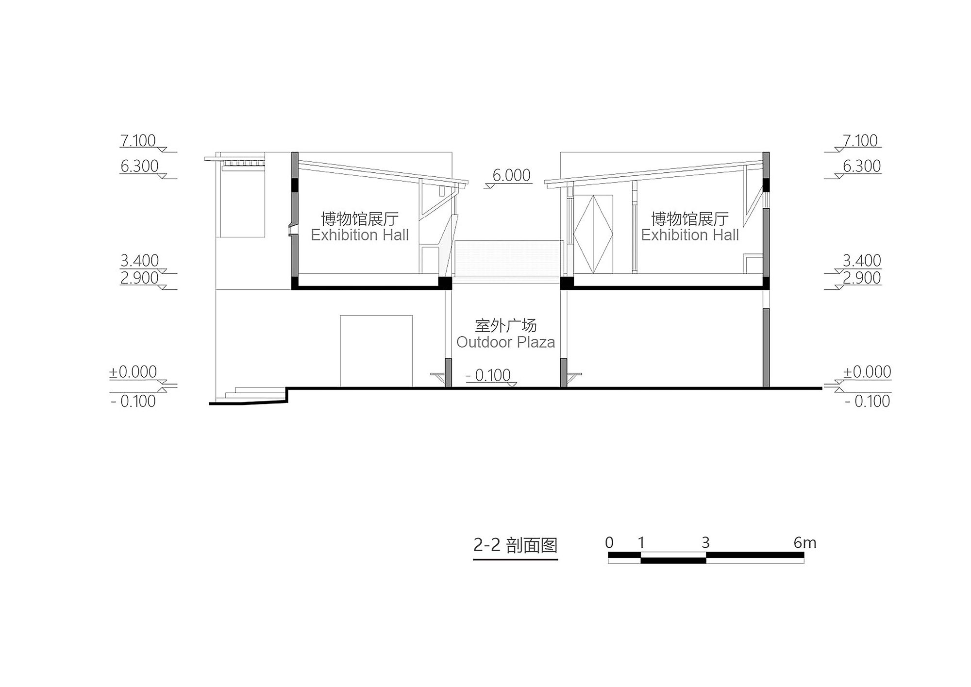
Out of respect for history, the new structure is built upon the imprint of the old residence, employing a spatial weaving approach to reconstruct and integrate into the rural fabric using local materials and contemporary architectural language. Beyond being a museum, it serves as the village’s spiritual core and a daily gathering place. In a way, this building represents the construction of a contemporary rural “ancestral hall.” The museum is elevated to the second floor, while the ground level remains open, forming a semi-outdoor public space that provides shelter from wind and rain.
The architecture, along with the surrounding village houses, encloses a courtyard, continuing the traditional Hui-style “skywell” layout. Traditional local materials such as grey tiles, white walls, and wooden structures are used but with modern refinements. The white walls are made using local river sand mixed with cement and lime in a specific ratio, then hand-washed to create a weathered texture that evokes the passage of time. The wooden panels are surface-charred, forming a carbonized layer that enhances fire resistance and durability while also imbuing them with an aged appearance.
The second-floor “Rural Memory Hall” features hidden skylights, creating a tranquil and introspective atmosphere. The exhibition, themed the “Poetry of Life,” weaves together villagers’ old objects with personal stories and emotions, unfolding in three chapters: “Birth,” “Growth,” and “Inheritance.” It narrates the journey of ordinary people from childhood to family life and eventually to the end of life, reconstructing the village’s history and evoking local memories and emotions. This fosters a sense of rural identity and serves as an interpretation and translation of individual memories into collective village culture.
The “Rural Memory Museum” is not a tribute to grand historical narratives, nor is it a static display of artifacts; rather, it focuses on ordinary individuals and embodies deep humanistic care. At the same time, it serves as a place for villagers to gather for daily leisure, weddings, funerals, and festive celebrations. Even before the construction was completed, local residents had spontaneously held several village feasts here, which was exactly what the team had hoped to see. Therefore, after the museum was completed, villagers were also invited to participate, with a village banquet serving as the opening ceremony. Here, old memories continue, and new lives unfold—the “Rural Memory Museum” has become the new spiritual center of the village.
Project Info
Architects: IARA
Country: China, Huangshan City
Area: 272 m²
Year: 2024
Photographs: Huien Song, Yi Huang
Principal Designers: Lubin Liu, Jingqiu Zhang
Design Team: Qinming Luo, Li Li, Yarong Zhang, Hui Wang, Yi Huang, Yue Wang
Exhibition And Visual Design: IARA Rural Revitalization
Lead Designers: Jingqiu Zhang, Lubin Liu, Sitian Zhang
Curatorial Team: Qinming Luo, Jiawei Song, Yuling Liu, Jiaxin Bao
Curatorial Text: Jingqiu Zhang, Lubin Liu, Jiawei Song, Taotao Zhou
Exhibition Visual Design: Jian Wang
Landscape Design: Wenjing Fang
Constructor: Huangshan Dehong Construction Engineering Co.
Clients: Biyang Township People’s Government, Yixian Agricultural and Water Resources Bureau







































