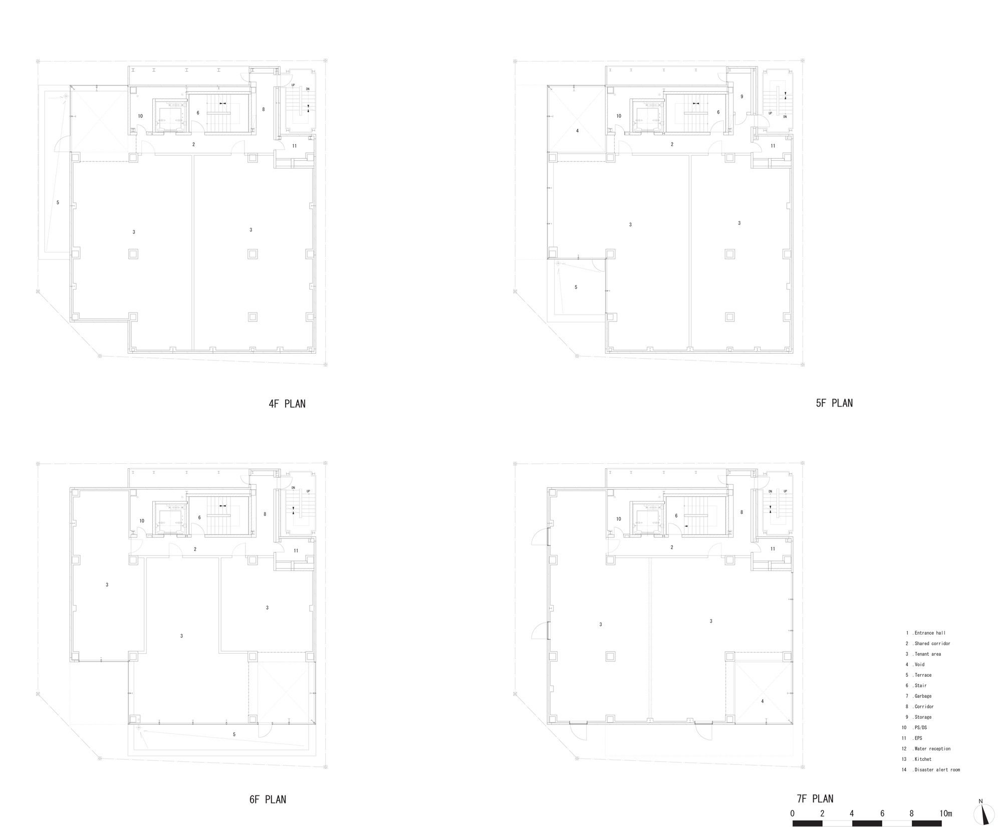
In designing tenant buildings for which the interiors will be determined afterwards, rather than defining the spaces, it is important that there is a wide spatial potential. For example, the freedom to build walls in any arrangement is more important than how the walls are actually arranged.
A typical tenant building has a tree-like organization in which each floor is independently accessed by elevator from the entrance at the first floor. With regard to this project, in addition to the normal circulation, we proposed using voids to connect the spaces of each floor in a spiral arrangement, incorporating a loop in the unidirectional ordered structure. The access routes to each space are thereby multiplied; other possibilities for grouping the spaces arise, enabling integrated usages or tenants that cover several floors. Additionally, the four variations in floor height and the flexibly organized mechanical services allow a variety of spatial choices.
Project Info:
Architects: Atelier Hitoshi Abe
Location: Miyagino Ward, Sendai, Miyagi Prefecture, Japan
Architect: Atelier Hitoshi Abe
Project Team: Hideo Yaguchi, Azuma Orikasa
Structural Design: Arup Japan
Collaborator: Asao Tokolo(façade design)
Construction: Iwata Chizaki Construction Corporation Tohoku
Project Area: 1,977 sqm
Area: 377.0 sqm
Project Year: 2008
Photographs: Daici Ano
