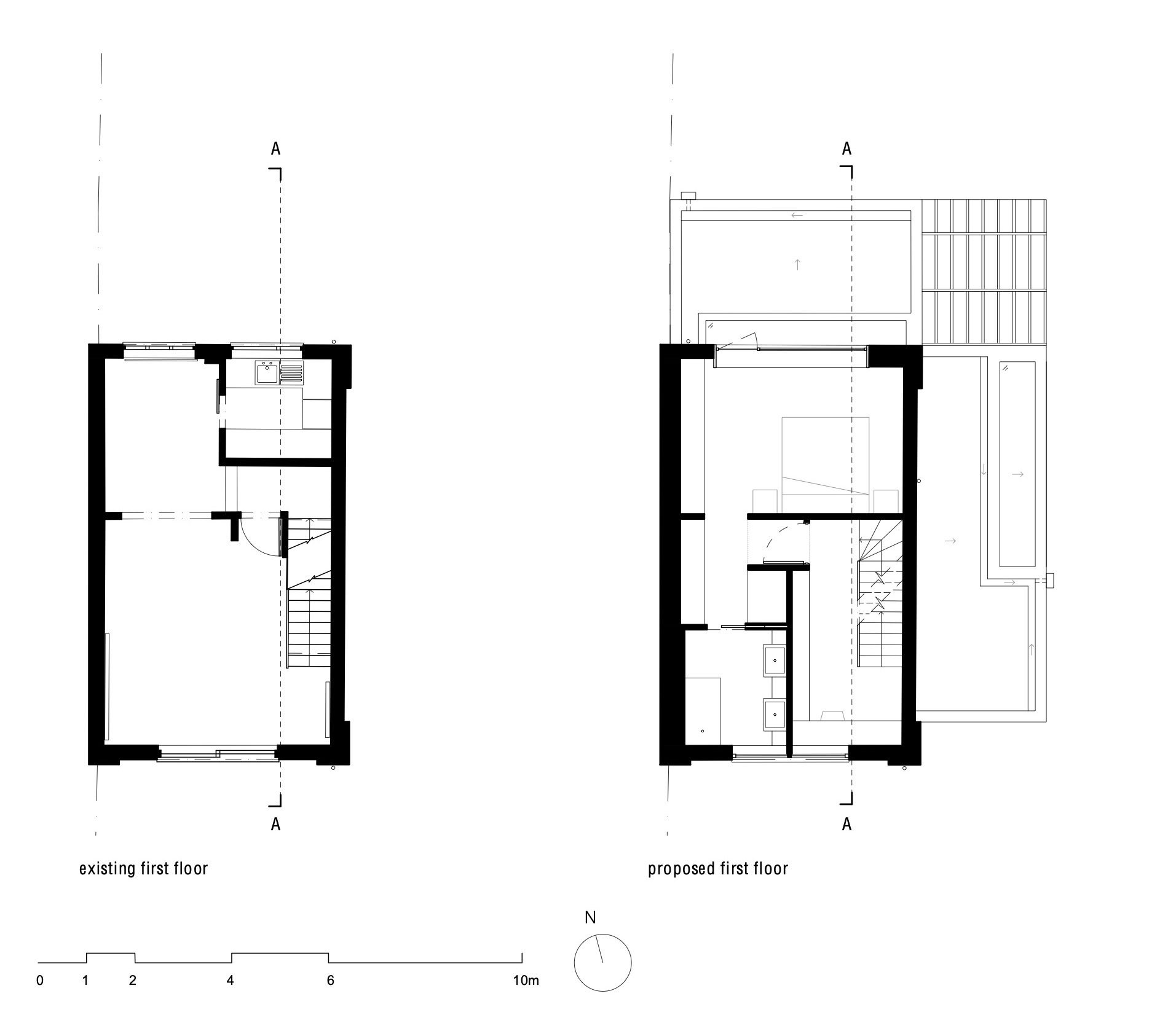
The clients wanted to transform their home into a durable and adaptable home for their growing family. Fruit Box House was typical of mid-century townhouses with living spaces on the first floor and a poor connection to the garden. It also lacked a large bedroom with only a number of smaller rooms on the 2nd floor. The brief was to create a new family space at ground level with a better connection to the garden plus a bedroom suite on the first floor.
The house sat on a triangular plot with a large but awkwardly shaped garden. The terrace had been built in the 1970s in a former orchard – (common in SE London which was a significant producer of fruit and vegetables until well into the 20th Century). There were a number of very old fruit trees that still produced blossom in the Spring and fruits in the autumn and larger trees beyond that shielded views to and from houses behind.
We wanted to celebrate the sense of living amongst fruit trees and below the canopy of the larger trees beyond. On the ground floor, views are framed with carefully positioned openings that connect the ground floor in a deliberate but restrained way. By contrast, the first-floor bedroom has a wide and generous window that brings the landscape and canopy into the house.
A lack of support for changes from the local authority necessitated a solution that could be achieved through permitted development. The ground floor was therefore extended to the rear and side. This approach also required the use of the same materials and window types as the existing house. We perceived this as an opportunity rather than a restriction: yellow stock bricks were laid on-edge below ground and above ceiling height to give a sense of horizontality to the additions and differentiating the additions from the original house. The openings at the ground referenced the existing house but were placed with a deliberate rhythm on rear and side elevations.
The new family living spaces needed to be open, flexible, and robust. As ever, we wanted to minimise the use of steel and concrete. The extensions, therefore, use timber structure exposed internally to provide a hard-wearing internal finish and a gentle, humane scale within the space. The timber structure forms semi-open screens within the open space to define different areas for work, play or rest.
The structural timber and ply form a backdrop that is visually and acoustically warm. A simple white ceramic tile defines the kitchen island and worktop. The floor is a triangulated composition of linoleum grey and blue linoleum that contrasts with the rectilinear grid of timber structure. This triangular pattern will eventually inform the garden landscaping, helping to deal resolve the awkward topography of the garden and providing further contrast with the geometry of the house.
The house is now home to a 2 and 5-year-old and provides a playful and suitably robust backdrop to family life. The articulation of spaces has come into its own during lockdown allowing different activities to occur throughout the house without disruption.
Project Info
Architects: nimtim architects
Country: United Kingdom, London
Year: 2021
Photographs: Megan Taylor
Main Contractor: Magic Projects




























