Fronton Bizkaia | Gastón & Ruiz Pardo
Fronton Bizkaia is located on the outskirts of the city – at the far end of the urban extension of Bilbao’s Miribilla district. One side fronts the terraced land, the countryside, the mountains and the access road to the city. The other side faces adjacent residential blocks and the park in the south. The design plays with volume and scale such that it links with its immediate surroundings and the distant scenery. Thus, the nearly blind facade facing the highway becomes a perforated form in its contact with the houses, or with the large vertical voids that allow light to enter the office area.
The materials also blend with the various shapes in the surrounding area. Viewed from afar the form appears as a mass of black slate. An abstract object which smoothes its contact with the pedestrian through a cedar wood base. The traditional order of a stone base and lightweight construction frame are reversed to achieve a closer and warmer contact.
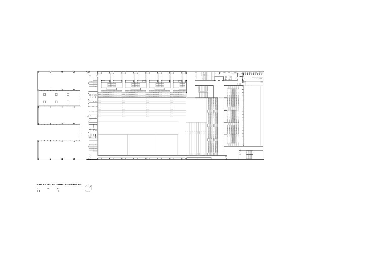
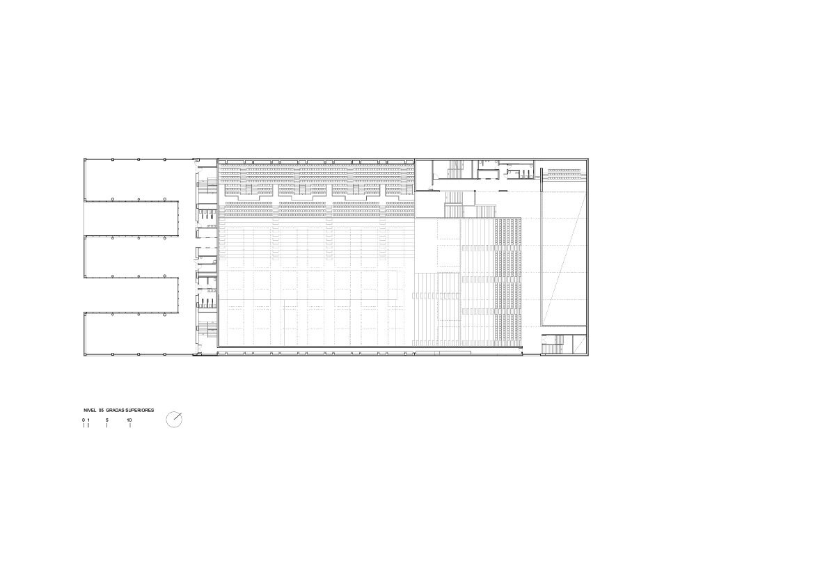
Inside, the building is divided into two parts according to use: the office area and the sports area which includes the Fronton court and the Trinquete. The sporty interior space is constructed as an articulation of large empty spaces generated by the structure of the spectator stands. The interior space is a continuous and open space ranging sequentially from the compression of the corridors to the expanded areas designed for congregation and sport. An interior landscape has been created replete with visual and spatial connections. A fluid and porous internal space with divisions that are hardly perceptible and yet manage nevertheless to segment different uses of space.
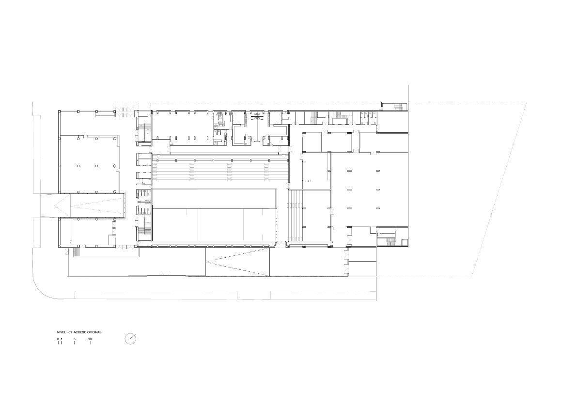
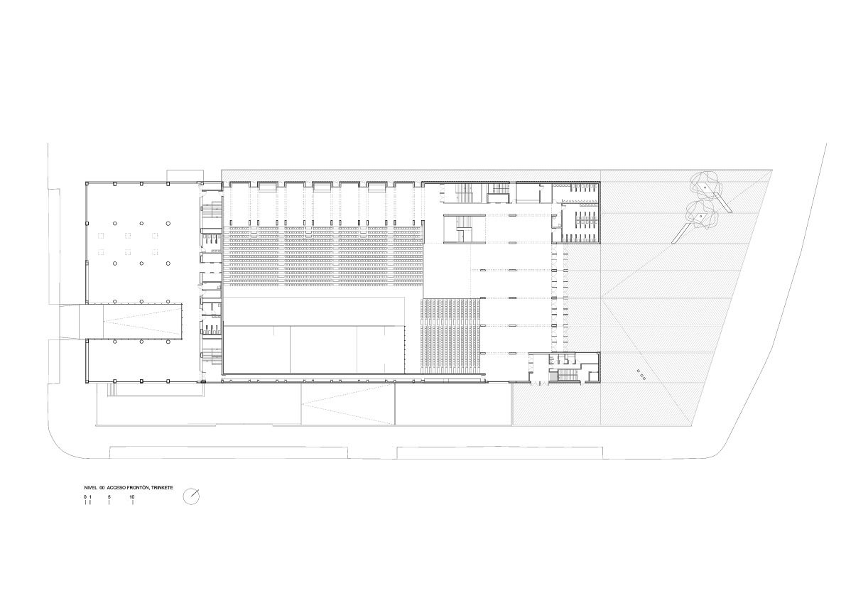
The elevation differences between the two ends of the plot are exploited to separate the entrances and define the internal walkway layout. From the South access is gained to the offices of the Sporting Federations of Biscay via the pedestrian street and from the North, and on an upper level the Fronton and the Trinquete can be reached via a main square that continues inside the building and becomes a large indoor public courtyard. Access is below the level of Fronton and beyond it unfolds the great space of the Fronton. From the entrance, it is seen halfway up with the rows of spectator stands extending down towards the pitch and reaching up through its blind concrete walls of concrete that enclose the playing field and support the support the roof which illuminates the space.
The large mass, the space and the natural lighting evoke the sensation of being in one of the first outdoor playing fields. The skylight solution allows for a lot of light to enter, but it also focuses it on the playing area leaving the spectator on a different level that gradually ends up in darkness such that the sport area gains a kind of “theatrical effect”. Both the Trinquete and the Fronton have their own lighting solutions that are intimately linked to their intrinsic spatial and structural forms, emphasizing their depth and verticality.
The space is strictly defined by the structure which consists of a series of concrete walls and shielding pillars that are supporting surfaces of steps which in turn are superimposed upon each other. On the enclosing perimeter walls rests the metallic roof structure comprising wide-edged steel trusses. The solidness bears the great lights that cover them, but also defines the deep skylights they support and give form to the space they cover. The rhythm/pattern that arises in the structure enables the installations to be concentrated in the narrow bands and the natural daylight in the wide ones.
At the southern end of the building, with independent access, is an area of offices which is connected with the rest of the interior via a service bay. Light enters the building through deep vertical shafts whose form protects them from direct sunlight. The resulting layout of the office floors is that of a trident where each bay receives lighting from two angles. A large functional surface area is gained from a compact form, avoiding the appearance of very recessed areas of work whilst preserving the overall shape of the building. These perforations on the solid mass that the building comprises, besides illuminating and intentionally ambiguously playing with the building’s scale, also allow the game to emit its light at night. The presence of this blind object, with its solid and stony mass, from which light seeps via holes from of its hollow interior, gives a sense of the activity within. It is an urban experience at the city’s limits.
Project Info
Architects: Gastón & Ruiz Pardo
Country: Spain, Bilbao
Area: 24011 m²
Year: 2011
Photographs: Jesús Granada, Jorge Allende
Manufacturers BANDALUX: BANDALUX
Architect In Charge: Javier Gastón, Marcelo Ruiz Pardo
Technical Architect: Juan Luis Urresti
Collaborators: David Gastón, Carolina Lombana, Carlos Viladoms, Daniel Alvaladejo, Naia Landa
Instalations: Ceisl, Boslan, Tecuni, Susaeta Prolighting



































Madeline Brooks is a Projects Editor at Arch2O, where she has been shaping and refining architectural content since March 2024. With over a decade of experience in editorial work, she has curated, revised, and published an array of projects covering architecture, urbanism, and public space design. A graduate of the Harvard University Graduate School of Design, Madeline brings a strong academic foundation and a discerning editorial eye to each piece she oversees. Since joining Arch2O, she has played a pivotal role in shaping the platform’s editorial direction, with a focus on sustainability, social relevance, and cutting-edge design. Madeline excels at translating complex architectural ideas into clear, engaging stories that resonate with both industry professionals and general readers. She works closely with architects, designers, and global contributors to ensure every project is presented with clarity, depth, and compelling visual narrative. Her editorial leadership continues to elevate Arch2O’s role in global architectural dialogue.







