Flower House, A house for a family located in a converted neighborhood corner store.
We embraced adapting and reusing the architecture rather than demolishing the existing, celebrating the building’s history and location.
Creative solutions for living optimized the existing structure. Our reimagining of the building doesn’t obliterate the past, but it isn’t subservient to it either.
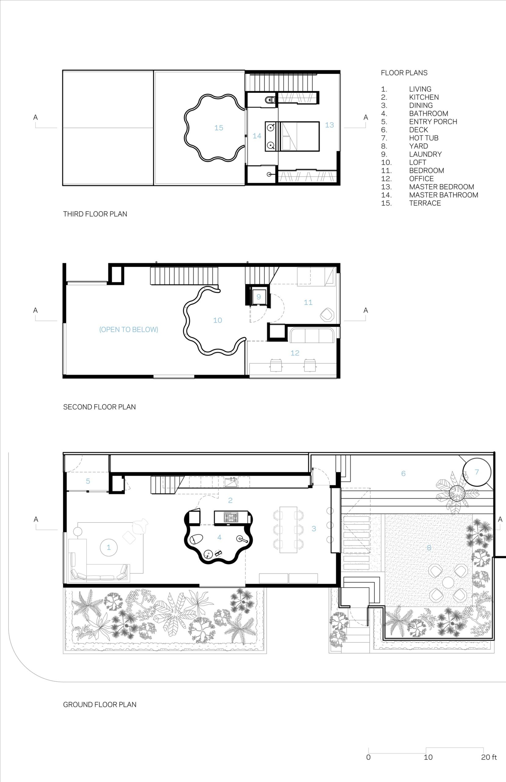
Space in the open plan is demarcated inside and outside of a free-standing flower-shaped tower. Furniture and art selection by Studio Ahead.
Project Info
Architects: Craig Steely Architecture
Country: United States, San Francisco
Year: 2023
Photographs: Darren Bradley
Design Team: Craig Steely Architecture



























