Falcon Ledge Residence | Alterstudio Architecture
The Falcon Ledge Residence reflects the character and aspirations of its occupants. The house presents an opportunity to live in an unusual circumstance, connected to the landscape while rising out of it, and an inspiration for a life lived with unanticipated pleasures. Newly married and planning to start a family, the owners enjoy a daily routine connected to the out-of-doors without having to rely on curtains to maintain their privacy. Overcoming the obstacles of limited budgets, contractors unused to careful construction, and a very difficult property on which to build has served to underline the success of the final construction.
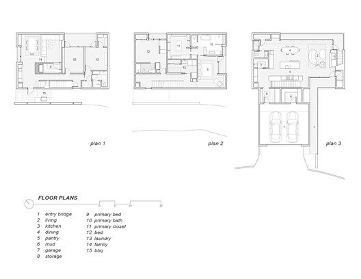
The home was inserted into an existing landscape with the most minimal of interventions. It provides a model for an innovative building sequencing on a property long written off as a possible home site. The first act required the construction of a platform adjacent to the street from which construction could be staged. This later became the garage and bridge connecting a tall, taught home, organized upside down, with the main living spaces on the top floor and the private spaces below. The form of the building was in many ways determined by the logic of its construction and sequencing, and the result is an unexpected tower rising above the tree canopy.
Surrounded by suburban developments, the 3,813-square-foot home is located in a neglected ravine, overlooked because the property falls off precipitously from the street’s curb. Here, the owners are afforded the opportunity to live immersed in nature, from which one might survey its many pleasures, under, inside, and above the thick foliage—albeit adjacent to very ordinary, suburban conditions.
The project begins with an efficient plan and compact volume that is oriented for energy efficiency and optimizing relationships with the natural surroundings. Deep recesses in the otherwise unmitigated building envelope allow for framed views through a taught exterior skin of vertical steel panels—employed to age gracefully while resisting the negative consequences of weathering. Light from multiple sources tempers the character of rooms over the course of the day, and cross-ventilation conditions the atmosphere of the interiors. Operable windows to promote cross ventilation, glazing strategies to optimize daylight and protect against excess heat gain, and filtered indoor air are present throughout the house.
In addition to its innovative staging, the house was designed to utilize standard construction techniques and practices wherever possible, and is augmented only where particular conditions warranted special attention. The design begins with an efficient plan and compact volume, and is constructed using traditional lumber framing and standard wood trusses. Special attention was paid to create a taught envelope and careful recesses for light and view. Normative building systems are employed throughout the building to maintain affordability, but special elements and careful attention to detail allow it to present a more purposeful character while being constructed at the median cost of construction for the area.
Project Info:
-
Architects: Alterstudio Architecture
- Country: Austin, United States
- Area: 354 m²
- Year: 2023
-
Photographs: Casey Dunn Photography
-
contractors: Matt Sitra Custom Homes
-
Landscape Desgin: Aleman Design Build
-
structural Engineer: MJ Structures
-
Mechanical Engineer: Positive Energy
-
Geotechnical Engineer: Capital Geotechnical Services PLLC
-
Design Team: Kevin Alter, Ernesto Cragnolino, Tim Whitehill
-
Interiors: Haifa Hammami
-
Project Architect: Matt Slusarek, Elizabeth Sydnor



















Anastasia Andreieva is an accomplished Architectural Projects Editor at Arch2O, bringing a unique blend of linguistic expertise and design enthusiasm to the team. Born and raised in Ukraine, she holds a Master’s degree in Languages from Taras Shevchenko National University of Kyiv. Her deep passion for architecture and visual storytelling led her to transition from translation and editorial roles into the world of design media. With a keen eye for conceptual clarity and narrative structure, Anastasia curates and presents global architectural projects with precision and flair. She is particularly drawn to parametric and digital design, cultural context, and emerging voices in architecture. When I’m not analyzing the latest architectural trends, you’ll probably find me searching for hidden gems in cityscapes or appreciating the beauty of well-crafted spaces. After all, great design—like great connections—can be found in the most unexpected places. Speaking of connections, because architecture isn’t the only thing that brings people together.






