Faculty of Humanities Building – Industrial University of Santander | taller de arquitectura de bogotá
Faculty of Humanities Building – Industrial University of Santander, Located at the main entrance to the central campus of the Industrial University of Santander, the Humanities Building stands as a key element in the institution’s master plan. Its design is based on a structure of stacked lines in architectural concrete, which not only defines an emblematic welcoming image but also provides spaces for academic expansion.
On the ground floor, the building responds to the natural slope of the terrain with a double base that creates two access levels. These “first floors” function as extensions of the public space: open, playful, and community-oriented. The lower level becomes an artificial topography with dunes that house the observatory’s visitor center, while the second level features offset slabs that create balconies and areas for informal gatherings. Both levels are connected by a staircase with hanging platforms, enhancing circulation and active use of the building.
The main tower, oriented north to south, is made up of staggered longitudinal slabs of ochre concrete that filter direct sunlight and allow for expansive views of the surroundings. This passive climate control strategy is complemented by eaves and perimeter walkways that expand learning spaces and act as sun protection. In some cases, the slabs are folded vertically to improve their effectiveness in the tropics.
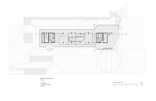
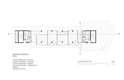
In addition to the two traditional vertical circulation routes, recreational routes and open staircases have been incorporated to encourage pedestrian traffic and visual connection with the landscape. In terms of its program, the building distributes its uses gradually: at the base are spaces for interaction, such as the cafeteria and student associations; on the middle levels are classrooms and booths; and on the upper levels are wellness spaces and offices for the teaching staff.
Structurally, it is supported by two rigid cores located at the ends, which frees up the central space and allows for a flexible floor plan for future adaptations. The ochre-pigmented concrete used in the main body references the region’s earthen walls, while the cores and columns contrast with a conventional gray concrete finish.
Project Info:
-
Architects: taller de arquitectura de bogotá
- Country: Bucaramanga, Colombia
- Area: 11812 m²
- Photographs :Alejandro Arango
- Leading Architects: Daniel Bonilla & Marcela Albornoz
-
Collaborators: Juan Manuel López, Alexander Roa, Laura Bermúdez, Andrés Gutiérrez, Santiago Ballen, Juan Ramírez
- Interns: Laura Santana, William Pauwels, Carlos Lopez, Tom1as Vega, Nelsón Agudelo, Manuela Orozco
- Construction: Consorcio Surco by Compuser
- Structural Design: CNI Ingenieros – Nicolás Parra
- Acoustics: ADT
- Lighting: Claroscuro
- Geotechnical Engineering: IMT Ingenieria
- Electrical Design: Inter Obras LTDA
- Plumbing Design: Cedeño Ingeniería
- Security And Control Design: Inter Obras LTDA






















