Estonian National Museum
During the nineteenth century, Estonia experienced an ‘age of awakening’ with the spread of national consciousness and the establishment of Estonian language literature, theatre, and professional music, as well as the formation of the Estonian national identity. Estonia initially gained its independence from Soviet rule in the 1920s, only for its parliament to be disbanded in 1938. During World War II, Estonia was occupied and annexed first by the Soviet Union and subsequently by the Third Reich, only to be re-occupied by the Soviet Union in 1944. War losses in Estonia, at around 25% of the population, were among the highest in Europe and an estimated 90,000 Estonians died.
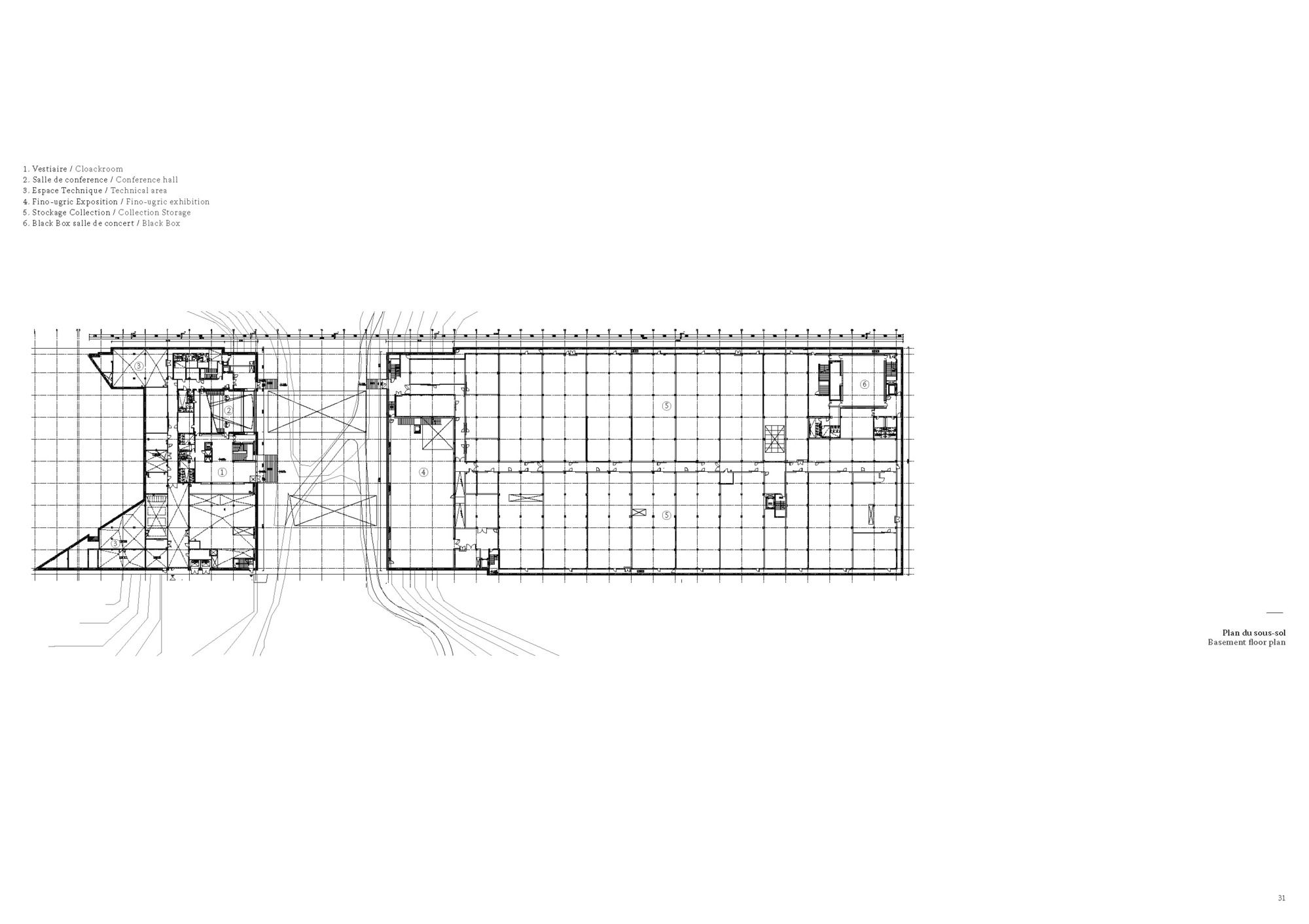
Estonia regained its independence on 20 August 1991 and joined the European Union in 2004. It has since embarked on a rapid program of social and economic reform. The creation of the new Estonian National Museum, to be located in the city of Tartu, is a testament to the quest for reawakening a pride in national identity and a unique cultural history. The international competition for the design and execution of the 34 000 m² building, housing a collection of 140 000 objects, was launched in 2005. Estonia regained its independence on 20 August 1991 and joined the European Union in 2004. It has since embarked on a rapid program of social and economic reform. The creation of the new Estonian National Museum, to be located in the city of Tartu, is a testament to the quest for reawakening a pride in national identity and a unique cultural history. The international competition for the design and execution of the 34 000 m² building, housing a collection of 140 000 objects, was launched in 2005.
Project Info
Architects: DGT Architects
Location:Â Tartu, Estonia
Area: 34000.0 m2
Year: 2016
Type: Museum
Photographs: Takuji Shimmura, Arp Karm, Courtesy of Dorell Ghotmeh Tane




































