Enviromental Building in Okazaki | Henri Gueydan

Close to Nagoya, Okazaki, this environmental building for rental and shops complements an older type of housing, now fully renovated and colourful. In this rather dreary suburb, the idea of the design by Henri Gueydan is to break with the existing view as if the start making of a new urbanity. Everything in a tinted ensemble makes for more socially friendly taste, but also more personal with every individual dwelling corresponding to a separate colour recognizable from the outside.

photography by Toshihisa Iishi

Colourful Building in Okazaki

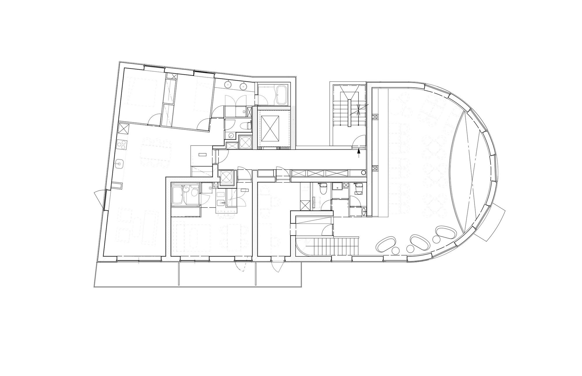
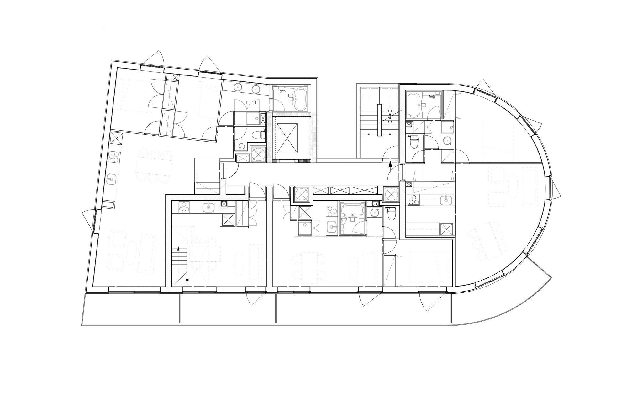
The whole 2000m2 project is in concrete with exterior insulation and painted colours marks different atmospheres of apartments. Small apartments are in the middle of the building, big ones are on the sides and on the top floor. Colours can introduce another way of building the city, giving new codes and perspectives.
The idea is to colour daily life but colours are smooth in the interiors of flats. Outside the colours gives to the horizon something new, as a new environment, inside the tones are suggested without being oppressive.

photography by Toshihisa Iishi

Project Info:
Architects: Henri Gueydan
Location: Okazaki, Aichi Prefecture, Japan
Project Year: 2012
Project Area: 3,000 m2
Photographs: Toshihisa Iishi
Project Name: Enviromental Building in Okazaki

Henri Gueydan
Arch2O.com
Logo