Energia de Portugal Headquarters | ELEMENTAL
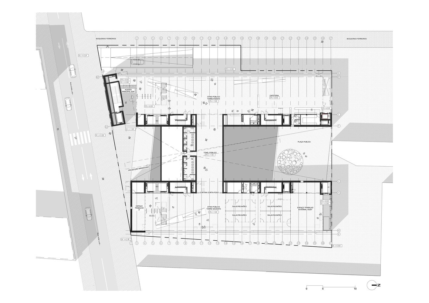
Energia de Portugal Headquarters had to solve a kind of paradox, two forces pulling in opposite directions: on the one hand, it had to comply with a Masterplan that required continuity of the public space from the hills to the river (north-south direction) resulting in a splitting of the building’s mass into two linear volumes. On the other hand, the building had to function as one single entity; so the 2 linear volumes had to be connected in the east-west direction threatening the north-south continuity of the public space. So, to respond to both forces simultaneously, we folded the ground of the public space with a slight slope that complied with the hill-river continuity and then connected the two linear volumes under the highest point of the folded ground.
This artificial sloping ground offered the opportunity to solve another issue of the lot: being on the second row of Lisbon’s urban grid, the visual continuity towards the river was more theoretical than real. The building of EDP across the street, even though as a general mass complied with the north-south continuity, at the pedestrian level blocked any perception of the river. We laid a piece that rested on the slope, cantilevered towards the river, gaining enough height to lean over the adjacent building, achieving a clear view of the Tajo. So, the square at the core of the complex is exclusively public.
It was a deliberate decision not to put the access of the building in this square so that a citizen does not feel that a company “is doing him or her the favor” of using a quality space. A person in the square has to feel that it’s his or her right to use it. Consequently, the access to the building is on the south front, participating but not dominating the square. We also placed the public parking access on the north end of the building so that it could serve the core of the block. The position of a Café at the ground level that can animate the public space with an amenity also intends to contribute to the civic character of the neighborhood.
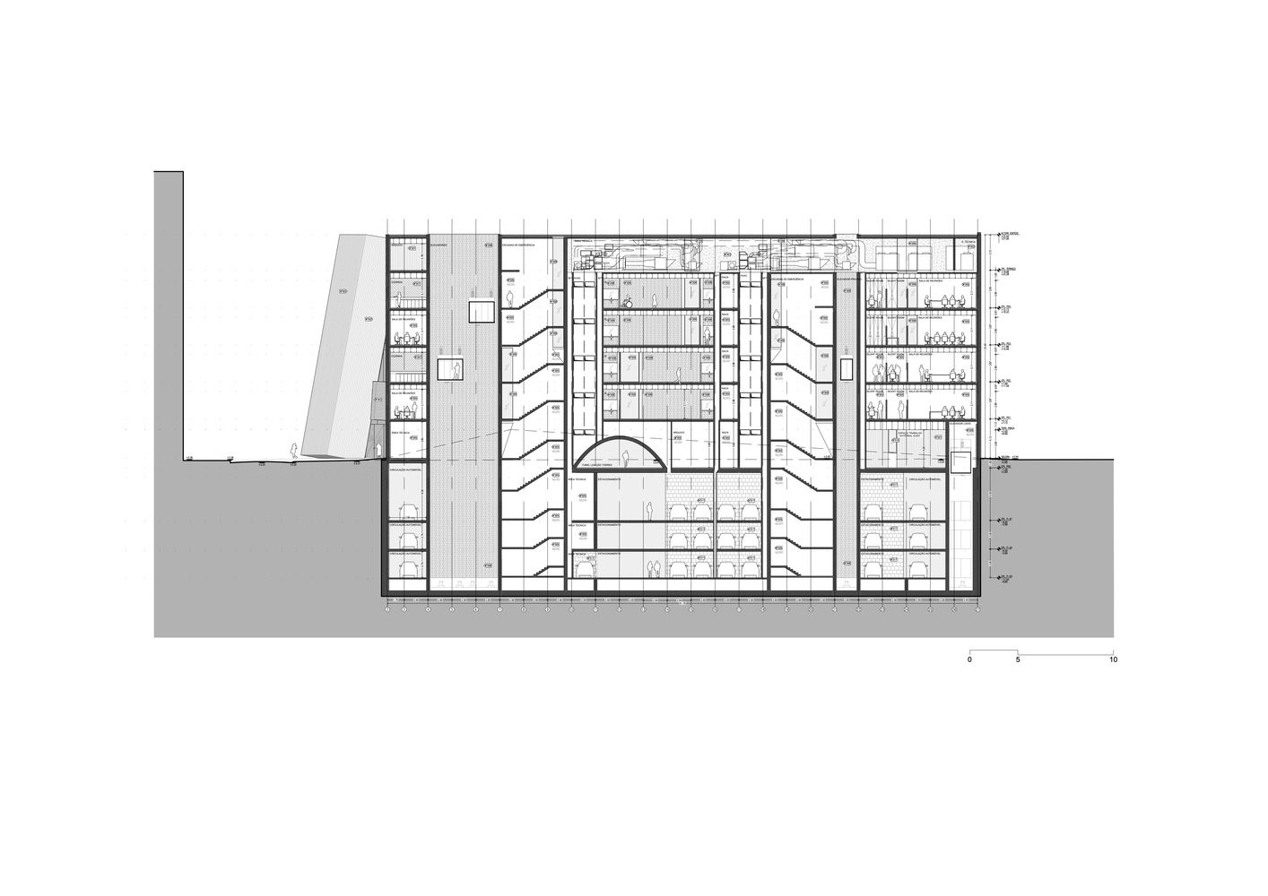
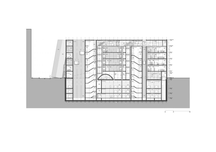
Sustainability & Character. We wanted to integrate the architectural operations that were the case for an efficient energy performance with those able to set the right character of the building. For example, the public square at the core of the lot was treated as if it were a carved monolith to ensure enough thermal mass. At the same time, we took advantage of the mass to achieve a civic monumentality of the complex by erasing the notion of floor. On the peripheral facades instead, we wanted to achieve a certain domesticity for the working place, so we not only expressed the scale of each floor but opted for a rather deep grid of linear elements able to work as brise-soleil with recessed glasses to avoid direct sun radiation and consequently the greenhouse effect.
Inside the building, we implemented another operation to integrate sustainability and character. We developed a series of “inviting stairs”, meaning elements that are simple enough to use, so avoiding the use of elevators is a real and not a theoretical alternative. We tend to think that energy is something produced “somewhere” that needs to be saved or come from a renewable source. But we do have energy ourselves. A stair uses human energy. Every time we prefer walking to taking the elevator, we are saving energy and design can play a role in that sense.
Humanistic Functionalism. Finally, the building’s ultimate purpose is to provide the right environment for people to work. At the workspace, we spend most of our day, so if there is a place where quality of life can be improved (sometimes even more than at home), that is the workplace. We proposed to verify the 4 forms of work in the building. A double-entry matrix with individual and collective use in one column and formal and informal uses in one row.
In other words, from the individual conventional work in a desk to the meeting rooms, from lounges to leisure spaces within the building. We placed all of them with democratic access, not more than 1 floor away from every point of the plan. The inclusion of a gym on the rooftop and a Café on the ground floor is aimed at implementing this more humanistic (and not merely functional) notion for the office of the future.
Project Info:Â
-
Architects:Â ELEMENTAL
- Country: Lisbon, Portugal
- Area: 10950 m²
- Year:Â 2024
-
Photographs: Francisco Nogueira
-
Engineering:Â AFA Consult, Rui Furtado, Pedro Pereira, Marco Carvalho, Mauro Monteiro, Paulo Silva, Raul Serafim, Maria da Luz Santiago, Rodrigo Castro
-
Structural Engineering:Â AFA Consult
-
Electrical Engineering:Â AFA Consult
-
Mechanical Engineering:Â AFA Consult
-
Energy Efficiency:Â AFA Consult
-
Construction Supervision: Pengest, Rui José, Sonia Vieira










































