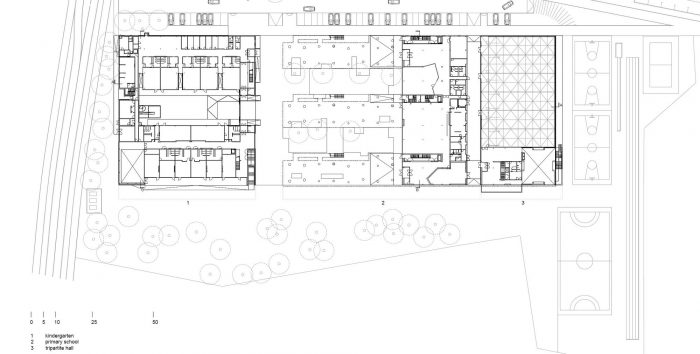
Designed by Sangrad + AVP, The concept of the Cultural – Educational Complex in Kajzerica has been deducted from a contextual inspiration: by shifting the direction of the buildings from the street of the old Kajzerica Neighbourhood, we get a public area and an extension of the urban space under a green canopy. The lifted classroom volume slabs are outdoing the access to the schoolyard, opening transparency, lucidity, continuity, and relations within the site, metaphorically substituting crowns and shadows of the trees, freeing the public space and rendering an artificial forest merged with the authentic green surface.
The Nursery–Kindergarten building is aesthetically and functionally compatible with the School building in a sense that compliments the shape of the school building with the central square binding them together.
The school building is separated from the building of Nursery and Kindergarten for functional reasons. Both buildings are organized in such a way that can work as one system or separated systems, according to their needs. The compact character of the buildings sets free a large area of the site for other purposes: sports fields, playgrounds and horticultural areas with local and new green species.
Both of the buildings are using renewable sources of energy due to the amount of underground water to be used for heat pumps (water-water system) and low energy consumption lighting and equipment.
Project Info:
Architects: Sangrad + AVP
Location: Zagreb, Croatia
Lead Architects: Vedran Pedišić, Emil Špirić, Erick Velasco Farrera, Juan Jose Nuñez Andrade
Area: 16220.0 m2
Project Year: 2014
Photographs: Sandro Lendler
Manufacturers: Swisspearl, Florim, DLW, Fagerhult, Sika Perú
Products: Swisspearl Fiber Cement Large Size Panels, Perforated & Engraved Panels
Project Name: Educational Complex Kajzerica

























