Duvalli Industrial Unit | 3.14 arquitetura

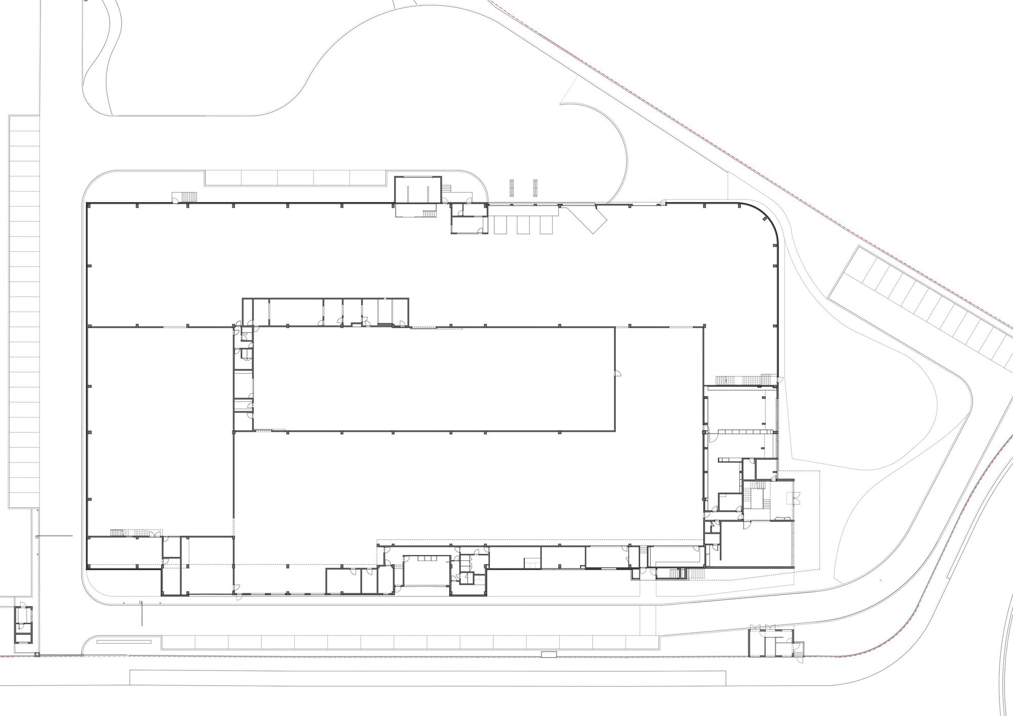
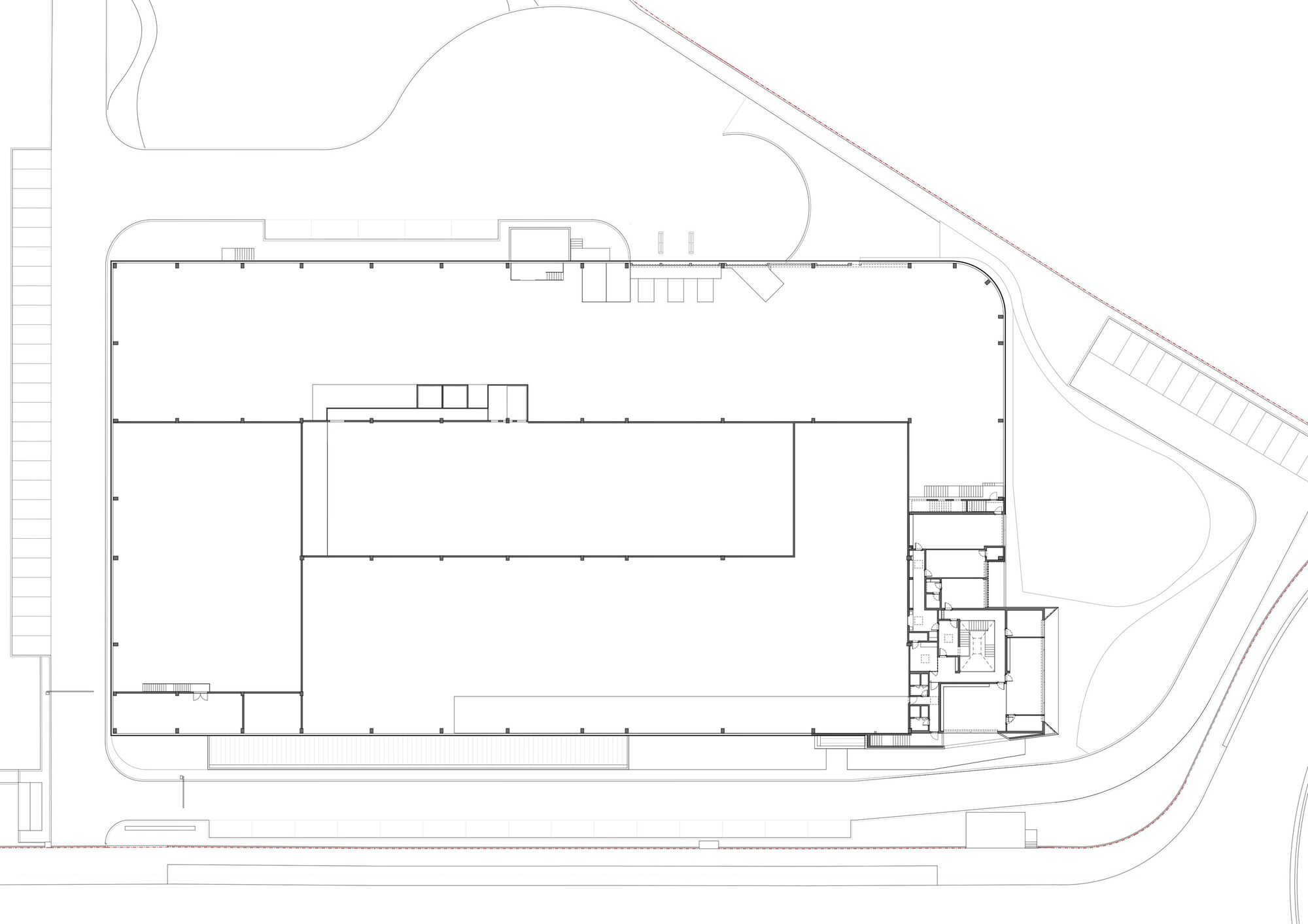
Duvalli Industrial Unit, In an industrial lot, that due to its position in the articulation between an avenue and a structuring roundabout is a corner of local relevance, it was implanted an industrial unit of fabrics production.

© Ivo Tavares Studio1

© Ivo Tavares Studio

Given the relevance of the reading of the lot in relation to the roundabout, a building was created that enlarges it and that translates into the articulation between two fundamental and complementary structures. One is the large production nave, a parallelepiped of large dimensions, to which some much smaller ones are attached and host the production support services and employees. T

© Ivo Tavares Studio2

© Ivo Tavares Studio

The other smaller one, which leans against it and hosts the administrative services spread over two floors, has a strong architectural expression as if it were a reptile’s head. It is located at the East/South vertex of the Unit and facing the roundabout, it becomes the expressive face of the complex, its brand image.

© Ivo Tavares Studio3

© Ivo Tavares Studio

The administrative body swings suspended marking the entrance and indicate us the public route of arrival, lower down, the entrance, flows into the central atrium, high, illuminated, which indicates and distributes us to the different spaces.

© Ivo Tavares Studio4

© Ivo Tavares Studio

We consider the materiality of the components as a way of positioning and marking them, according to their function, within the planned structure. Due to the requirement for temperature and humidity control, the large nave was born in the sandwich panel, soberer, neutral and acts as a backdrop to the administrative body. Lined in zinc with the Adeka system by VMZinc, it highlights its presence through texture and color.

© Ivo Tavares Studio5

© Ivo Tavares Studio

In the same sense of creating a modern and solid image, it emerges an element of arrival, of introduction… The staircase, located in the heart of the administrative sector, is a sculpture, the hinge element around which we have access to the entire “universe of the company”.

Project Info
Architects: 3.14 arquitetura
Country: Santa Maria da Feira, Portugal
Area: 7600 m²
Year: 2021
Photographs: Ivo Tavares Studio

3.14 arquitetura
Arch2O.com
Logo