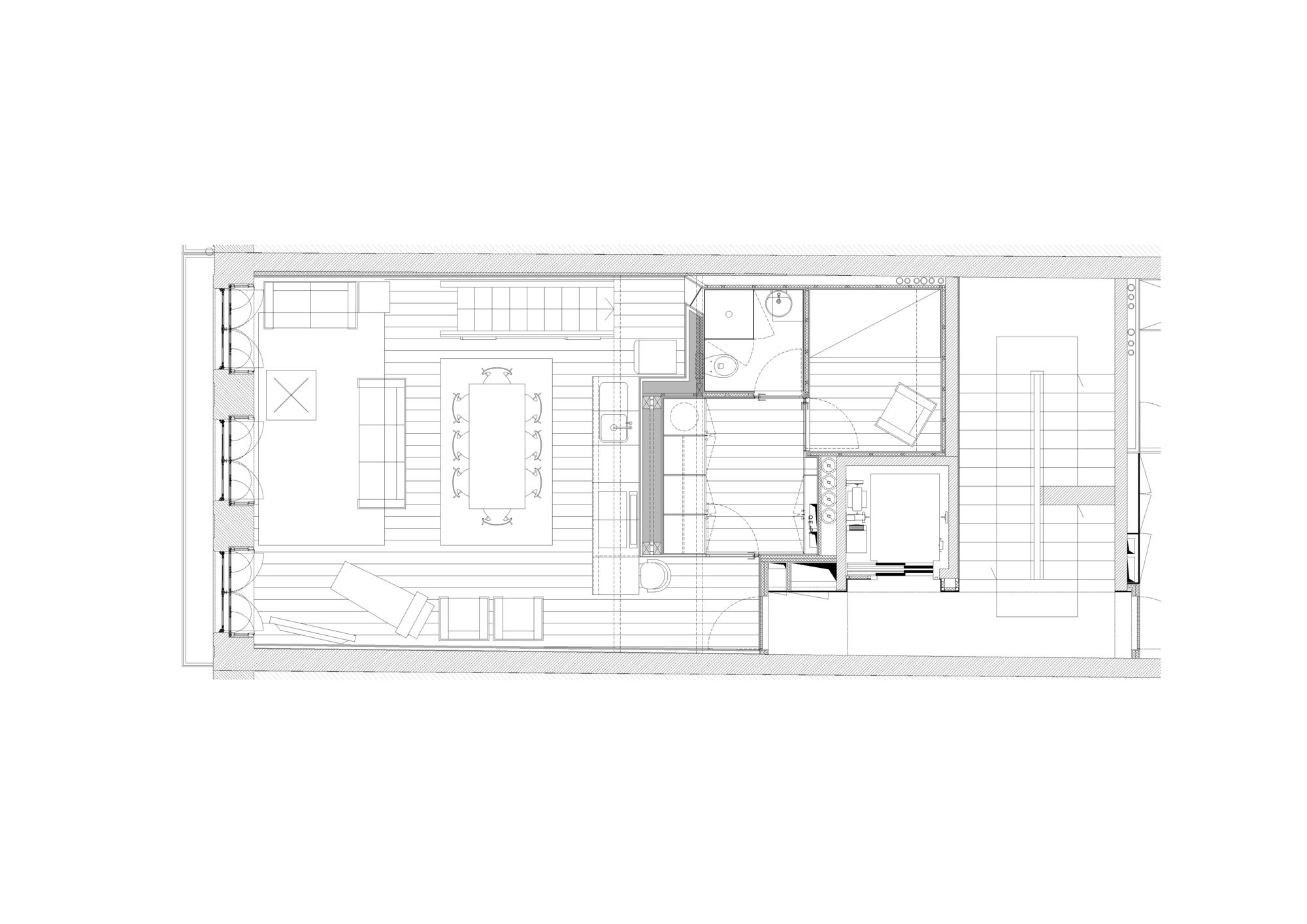
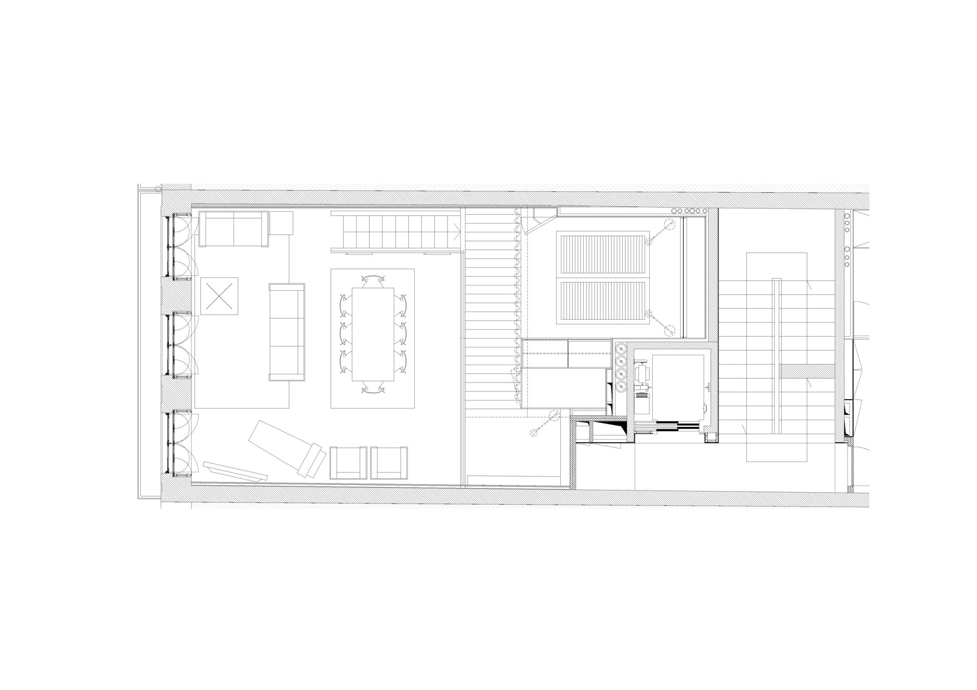
Downtown Studio, This project consists in the transformation of a small apartment inserted in a building of the XIX century located in the historical center of Porto. Given the small dimension of the space and the customer’s specifications to increase the useful area, the proposal is based on the design of a mezzanine over the central space, taking advantage of the high ceilings characteristic of the constructions of this period. This intermediate floor thus integrates a bedroom, an additional and open space over the living room, and above all private and separate. The lower floor develops into the living and dining room, which also includes the kitchen. The remaining service spaces like the bathroom and storage are concentrated in the surplus area, interior and under the bedroom.
In terms of language, the project seeks to respect the history of the building, both by the predominance of wood and by the reinterpretation of some specific elements of the architecture of this time, namely the window shutters and the high skirtings. In addition, the design of the ceiling stands out on the mezzanine because goes back to the image of the Portuguese vernacular house. The “house within the house” is the concept of this project and the desire to enhance the space of this apartment with the domestic comfort characteristic of a detached house.
Project Info
Architects: Luís Peixoto
Country: Portugal, Porto
Area: 807 ft²
Year: 2018
Photographs: Arménio Teixeira
Manufacturers Investwood, Margres, Flaminia, Primus Vitória, Sanindusa: Investwood
Engineer: Eng Serra Moura, Eng. Rui Marrana
Builder: Grupo M Caetano
Clients: Gonçalo Paciência
Team: Rodrigo Gorjão Henriques, Luciana Rocha
















