Dockley Apartments, Anglo-Dutch architecture practice, Studio Woodroffe Papa, and Bordeaux-based Poggi Architecture have completed a mixed-use scheme on Dockley Road in the London Borough of Southwark for developer Matching Green. With a distinct visual presence, the 111-unit residential scheme provides a European take on housing design for the capital and the rest of the UK.
Occupying a former industrial site, surrounded by housing estates and a railway viaduct, the scheme incorporates private, shared ownership and social housing tenures. A mixture of shops, restaurants, and cafes, along with artisan food producers and wholesalers are located at ground level and in the adjacent railway arch, which makes up part of the wider regeneration of the railway arches along Southwark’s ‘Low Line’.
In contrast to the boxy tower blocks typically found in mid-rise, high-density UK housing developments, Dockley Apartments has a strong visual presence that combines undulating geometries of balconies with a stepped building form. The development ranges from four to nine stories, with varying heights responding to the site’s surrounding context. Dark brick at ground level is combined with a steel rain-screen façade at the upper levels and gives a nod to the area’s industrial heritage.
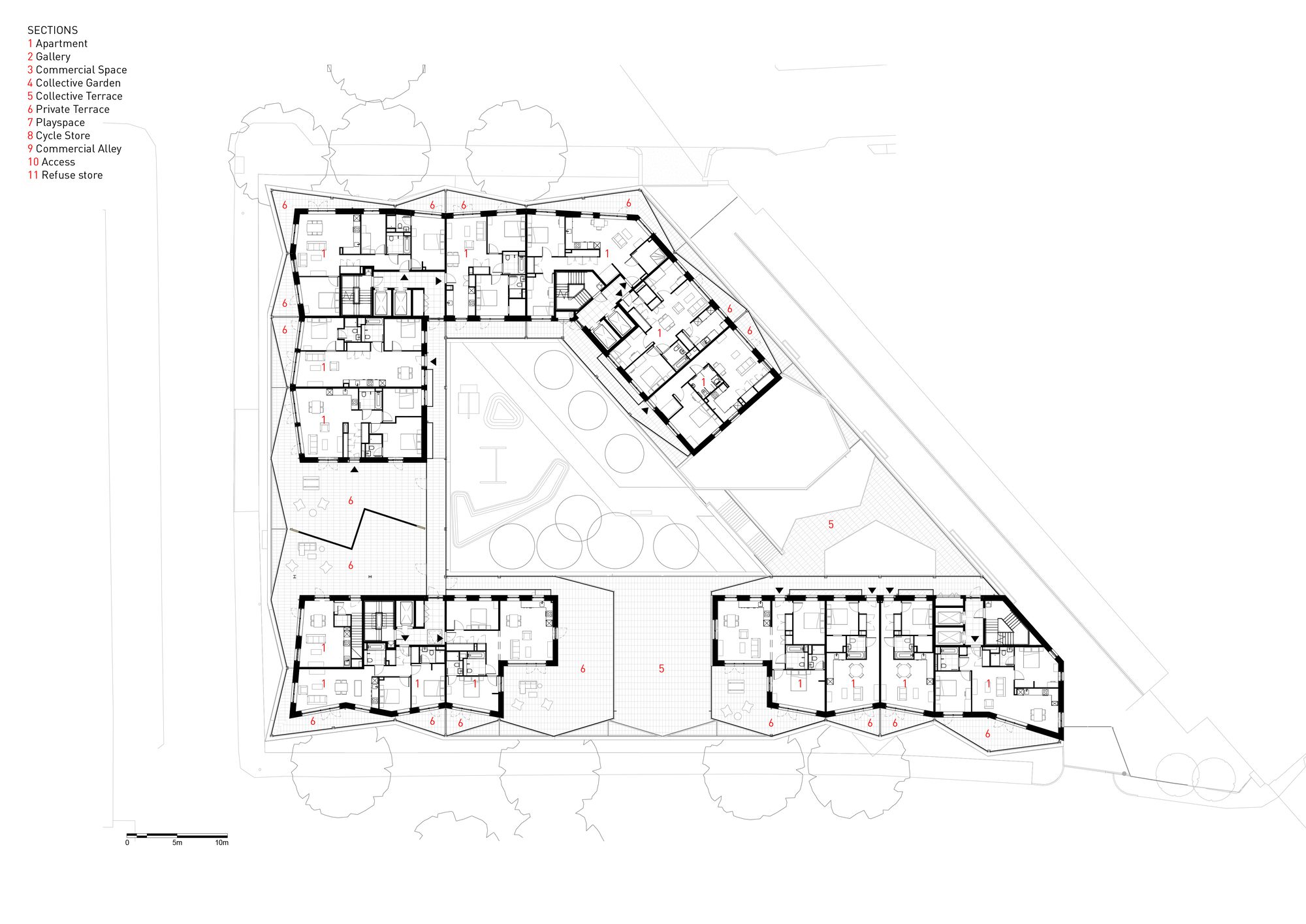
Comprised of a combination of 1, 2, and 3-bed units, all residents benefit from large, shaded balconies and naturally ventilated dual-aspect apartments. Drawing on European collective housing where significant design attention is given to communal space, the new development provides generous outdoor amenity space that delivers social impact and a sense of well-being for its residents. The residential units are arranged around a shared courtyard that includes dedicated children’s play spaces. Residents access their homes from wide galleries that circulate and overlook the communal courtyard and extend onto roof terraces on the first, fourth, and fifth levels which have planting and benches.
With a national conversation on delivering high-quality housing becoming increasingly necessary, Dockley Apartments offers a timely intervention for the capital, acting as an exemplar for how to achieve collective living in urban housing schemes that emphasize community-building, well-being, and social value.
Project Info
Architects: Studio Woodroffe Papa
Country: United Kingdom, London
Area: 10678 m²
Year: 2022
Photographs: Tim Crocker
Director / Team Leader: Jonathan Woodroffe
Director: Dominic Papa
Project Architect: Tristan Kelly, Frank Provoost
Architect: Alina McConnochie, Charlie Palmer
Client: Matching Green
Acoustic Consultant: Hann Tucker
Fire Consultant: JGA
Principal Designer: Vey Consulting
Archeology: AOC Archaelogy Group
Approved Building Inspector: Butler & Young































Sophie Tremblay is a Montreal-based architectural editor and designer with a focus on sustainable urban development. A McGill University architecture graduate, she began her career in adaptive reuse, blending modern design with historical structures. As a Project Editor at Arch2O, she curates stories that connect traditional practice with forward-thinking design. Her writing highlights architecture's role in community engagement and social impact. Sophie has contributed to Canadian Architect and continues to collaborate with local studios on community-driven projects throughout Quebec, maintaining a hands-on approach that informs both her design sensibility and editorial perspective.





