Dense Composition | Aedas

Aedas’ “Dense Composition” project in Hong Kong’s Mongkok district explores innovative high-density urban design, balancing population growth with modern infrastructure and architectural harmony.

Dense Composition

© Aedas

The design proposes a vertical composition that integrates residential, commercial, and recreational spaces within a compact footprint. Aedas approached the challenge by stacking functions vertically, creating a self-sustaining community that reflects Hong Kong’s fast-paced urban life. The structure embraces transparency and green terraces to enhance natural light and ventilation, offering visual relief in one of the world’s most compact urban environments.

Dense Composition

© Aedas

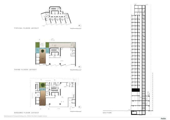
Aedas have therefore come up with a living space solution: to design serviced apartments and build in heights in order to find a way to tackle with the dense population. This decision is based on the designers’ need to also create a balance between the contemporary over-demand and the traditional approach towards architecture in the post-war years. The studios’ design rationale stems from the fact that in post-war time it has been common to build iron balconies without any legal permission in Mongkok for the residents to gain a view over the city scape.

Dense Composition

© Aedas

Therefore, the purpose of Aedas’ contextualization of the original ‘designing’ of the habitat is to transpose and transcend into contemporary means. Therefore, the structure spanning across 614 sq m has a customised and irregular-shaped protrusion for each apartment thus providing the inhabitants to have clear views over the city.The design focuses on a sustainable approach as well and this is derived from the tradition of people creating various home gardens on their balconies. The appropriation of the tradition is developed by Aedas as a vertical green wall which would enhance the life-style and well-being of the occupants and benefit to the local area’s climate and environment. The green wall is incorporated and inserted into the building’s main façade which demonstrates a sense of balance achieved between nature and man-built environments.

Dense Composition

© Aedas

In overall, the Aedas team have managed to achieve a sense of balance on a couple of levels: building an intervention in height for a harmonious cityscape outlook; and integrating sustainable design within the vastly built environment.

Project info:
Architects: Aedas
Country: China, Hong Kong
Area: 5514.0 m2
Year: 2013
Photographs: Aedas

 Aedas
Arch2O.com
Logo
Send this to a friend