Datta Vihara Shrine, The relocation of the existing shrine due to a new residential project presented an opportunity to design a space that seamlessly integrates tradition with contemporary needs. The given 400 sqft site was envisioned not merely as a shrine to Lord Datta, a local deity, but as a vibrant community space, fostering connection and togetherness.
Initially, the client envisioned a traditional design deeply rooted in historical temple architecture. However, through thoughtful discussions and collaboration, the vision expanded to embrace a contemporary approach. The result is a shrine that respects its spiritual roots while accommodating the evolving needs of society. The design transcends the standard temple layout, integrating elements that promote community engagement alongside spiritual reflection.
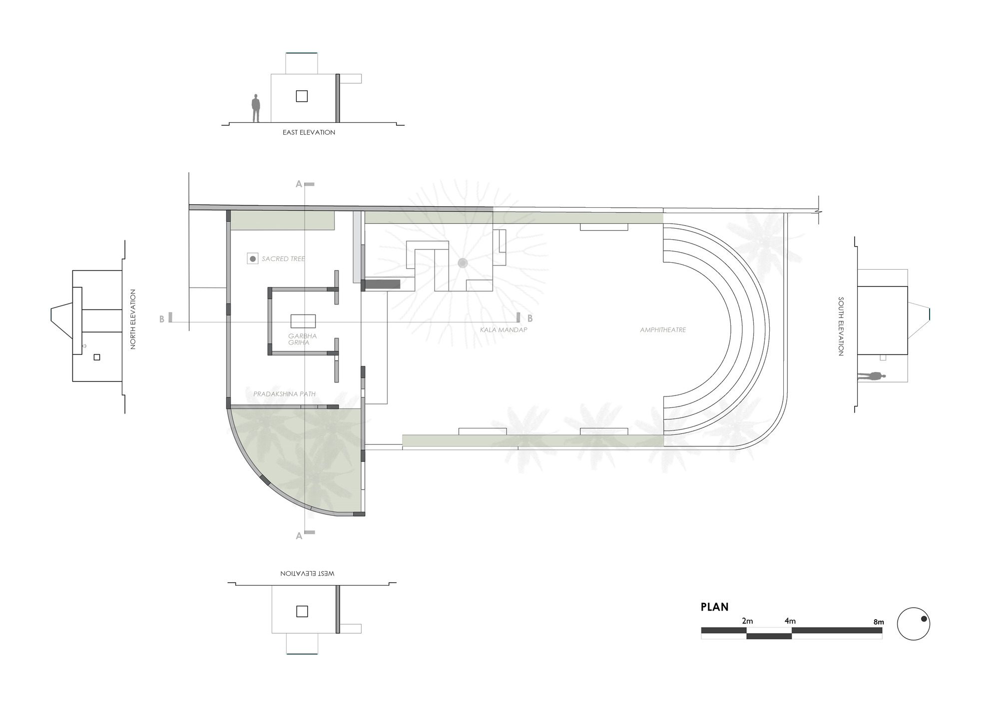
The design adopts a contemporary approach to attract people of all age groups while respecting the essence of a traditional Hindu shrine. The structure’s form draws inspiration from classical elements like the garbhagriha (sanctum sanctorum), mandapa (assembly hall), and pradakshina path (circumambulatory path), reinterpreting them with modern aesthetics. A shikhara (spire) with a skylight crowns the shrine, allowing natural light to illuminate the deity, creating a serene and spiritually uplifting ambiance.
Extending beyond the temple, a large open area with an amphitheater enhances the space’s functionality. This feature enables community events, cultural gatherings, and spiritual discourses, fostering social harmony. To root the design in its local context, Maharashtrian architectural elements were thoughtfully incorporated. The otta (platform), par (threshold), and osari (veranda-like space) were used to create seating around a tree, adding a touch of tradition while offering a shaded retreat for visitors.
The entire structure is textured with yellow lime plaster, reminiscent of chandan (sandalwood), enhancing its tactile and visual appeal. This choice not only aligns with the shrine’s sacred character but also connects it to the cultural identity of the region.
Materiality plays a crucial role in achieving the design’s harmonious aesthetic. The use of a striking yellow lends the shrine warmth and modernity, while basalt flooring provides a grounding, timeless appeal. These choices ensure that the shrine blends seamlessly with its natural surroundings while offering a contemporary charm that appeals to a broader audience. Overall, the design transforms the shrine into a multifaceted space—a spiritual, cultural, and social hub that bridges tradition and modernity while nurturing community spirit.
Project Info
Architects: Karan Darda Architects
Country: India, Pune
Area: 1000 ft²
Year: 2025
Photographs: Abhishek Chavhan – Architectural captures
Project Architect: Rahul priyadarshi, Anuja
Client: Kamalraj Group



























Tags: 2025Abhishek Chavhan – Architectural capturesConcreteDatta Vihara ShrineFSIndiaKaran Darda ArchitectsPune






