Dallas Public Library Lochwood Branch | MSR Design

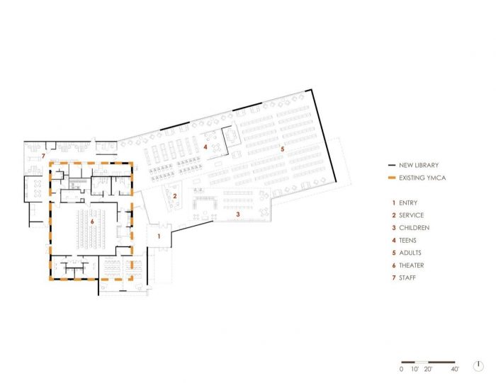
Designed by MSR Design, The site for the Dallas Public Library Lochwood Branch is bound by a strip mall, apartment complex, and residential neighborhood, which presented significant contextual opportunities. The design centers on addressing each context, as well as the library’s programming needs, through directing and screening views and considering varied levels of scale.

© Charles Davis Smith – AIA

The zinc-clad library hovers above a glass base, a contrast to the solid form of a black box theater (within the old YMCA, a resource-saving reuse strategy). Views are carefully considered to focus on the tree canopy and foreground landscape, avoiding less favorable context and providing privacy to neighboring homes. Open sightlines provide easy wayfinding for patrons and supervision for staff. The new library’s dynamic design elements and massing offer a distinct, refreshing contrast to the banal retail and residential buildings in the neighborhood.

floor plan

On-site stormwater management.
Native, drought-tolerant landscape.
Heat island mitigation.
Regional and recycled building materials.
High-efficiency envelop and HVAC systems.
Daylight harvesting.
Light pollution reduction.
Energy purchased from renewable sources.
Natural ventilation and high indoor air quality.
Water-saving fixtures.

© Charles Davis Smith – AIA

Project Info:
Architects: MSR Design
Location: Dallas, Texas, USA
Associate Architect: FKP Architects, Inc.
Mechanical And Electrical Engineers: M.E.P. Consulting Engineers, Inc.
Structural Engineer: Datum Gojer Engineers, LLC
Civil Engineer: Pacheco Koch Consulting Engineers, Inc.
Landscape Architect: Talley Associates, Inc.
General Contractor: J.C. Commercial
Area: 20000.0 m2
Project Year: 2009
Photographs: Charles Davis Smith – AIA
Project Name: Dallas Public Library Lochwood Branch

MSR Design
Arch2O.com
Logo
Send this to a friend