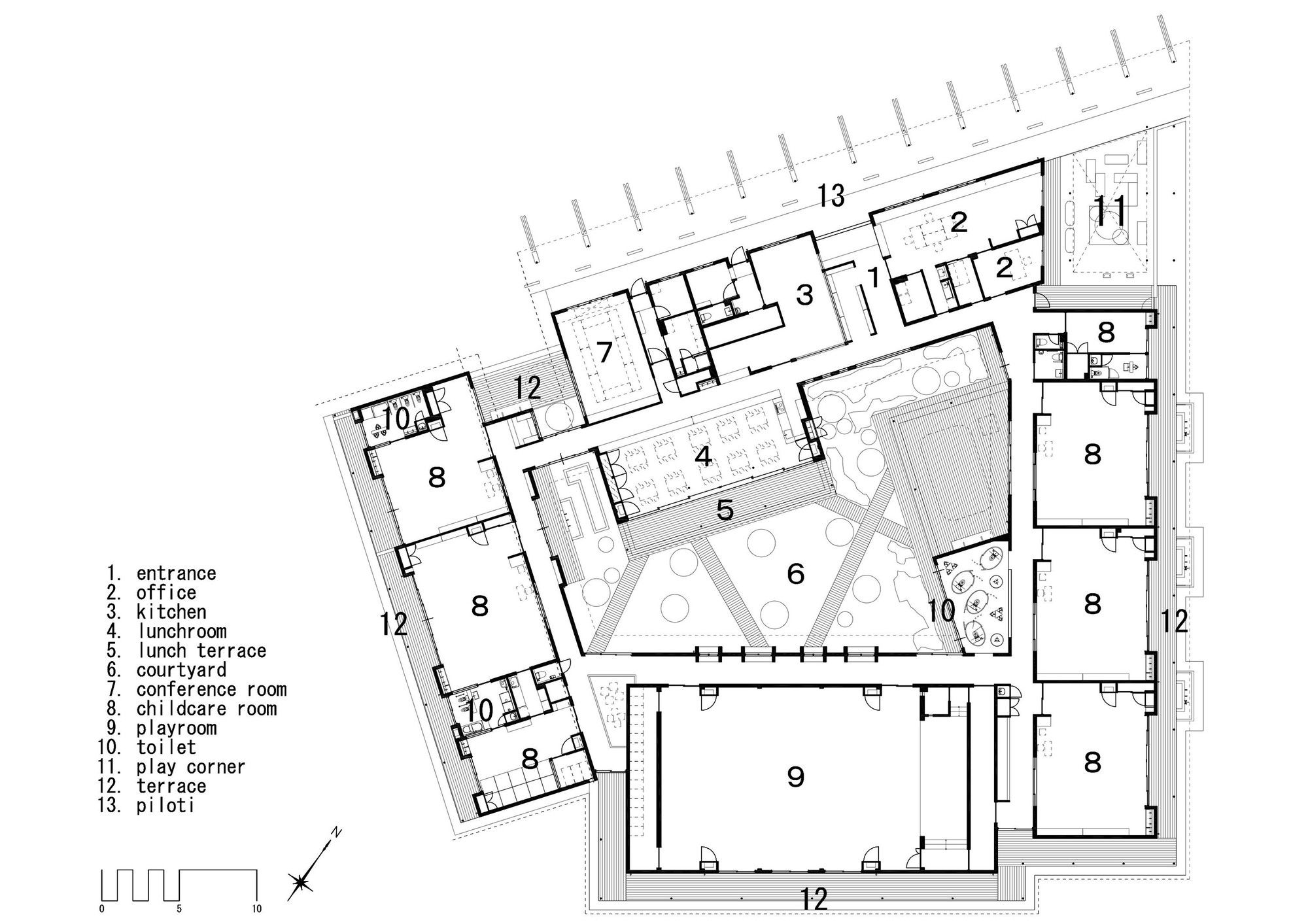
D.S Nursery was designed by HIBINOSEKKEI + Youji no Shiro, The site is surrounded by rice field where the wind blows through well. This is one of the areas with much quantity of wind-generated electricity in Japan, and this project is based on the concept of “wind”.
Planning is layout corridor of the ring shape as an image that winds around and each room volume as a blade of the windmill.
Consequently, even while maintaining the independence, there is a sense of unity through the corridor and courtyard.
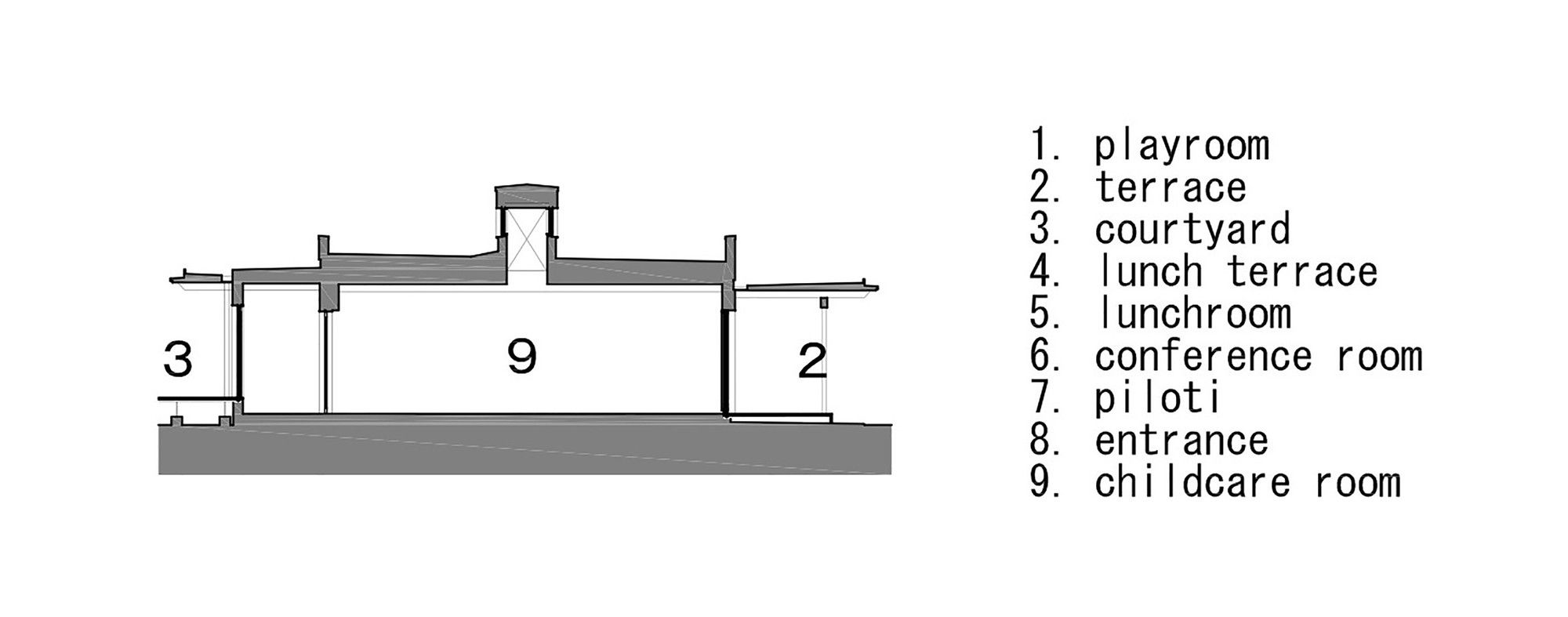
And it secures natural lighting and ventilation by the opening of the high-side windows of classrooms and playroom, and windows of the corridor, which is not to depend on the machine. It is timber and one-story building, and it has low canopies outer perimeter of the building. There is a wood deck terrace under the canopy, and it is possible to use as semi-outdoor space by a large opening of the classroom.
Where children use is shown the timber beams and it expresses that it is timber building. Even out of those, lunch room is created a state close to the natural environment by timber fitting of large opening and terrace connect with full of a green courtyard. Children enjoy lunchtime in this comfortable space.
The green courtyard can be seen and accessed from any place is planned as a place where children create play and discover small from various planting.
In addition, there is a children’s toilet with a large glass window face to the courtyard. It is bright and fun space that children want to go. There is also an effect that does not smell by ultraviolet rays that enters always.
Project Info:
Architects: HIBINOSEKKEI, Youji no Shiro
Location: Ibaraki, Japan
Area: 1464.0 sqm
Photographs: Studio Bauhaus
Project Name: D.S Nursery



























