Courtyard House | The Purple Ink Studio

The client’s brief saw a strong interest in a “Courtyard House”. Taking the courtyard as a focal point, the entire architecture and the landscape conceptualization revolved around using the feature as a climate responsive design advantage.The house is conceptualized as a performative architecture and landscape design with a carefully interwoven built-form that strongly responds to the site context.

courtesy of The Purple Ink Studio

Design description:

The design process was initiated by understanding the climatology of the surroundings.
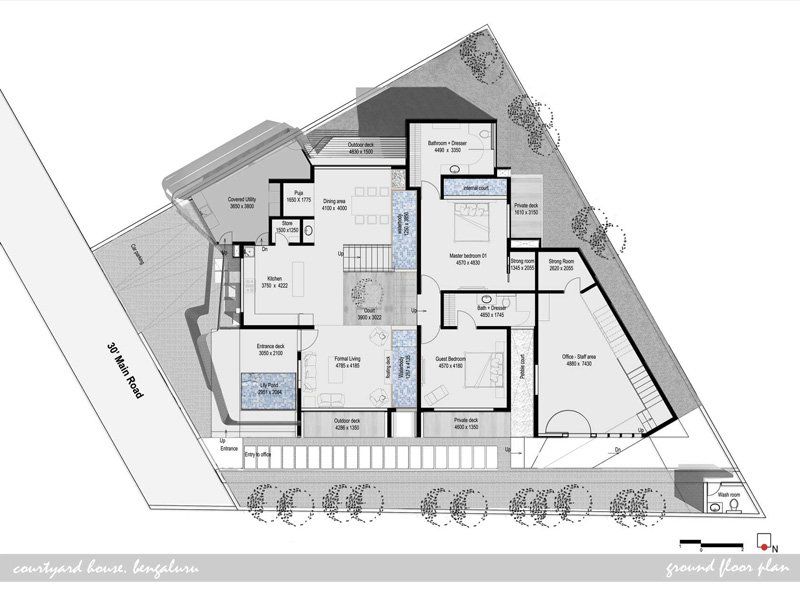
The site is east facing and has a vast public green space on the North side. The landscape scheme is conceptualized on generating continuity with the surroundings and drawing the lines into the interiors of the building and connecting it with the courtyard which houses a sculptural tree.Based on the climatologically factors, the building is rotated towards the northern sides (to have maximum fenestration avoiding the harsh rays of the sun during the day) and a continuous water channel is introduced in the direction of the prevailing winds which aids in maintaining the micro-climate of the interiors. This also creates a strong connect between the landscape spaces on the south and the north sides. The centrally placed courtyard provides light to all the spaces and also provides air movement due to induced ventilation through the openings on the walls. The greens planned within the site, the water channel and the courtyard with a tree form a strong ecological system making the building less dependent on mechanical (re)sources and keeping a check on the energy consumption.The green space is not limited to the exteriors of the building only but also dominates the spatial structure of the interior layout.

courtesy of The Purple Ink Studio-plan

All the common areas of the house which surround the courtyard like the living, dining and the kitchen areas which are the day-units are treated as exterior spaces to seem as extensions of the landscape areas into the interiors. The internal court serves a dual purpose of being a climatological feature and a strong aesthetic element.The vegetation palette of the landscape design is planned to cover the entire site beyond the building outline and also grows over the structure to soften the overall built form. The planting is structured as a 3 layered system with ground covers, shrubs and trees which helps in maintaining the biodiversity of the entire site. The planting palette concentrates on productive greens making the entire landscape experience interactive with the user all year round.

courtesy of The Purple Ink Studio

The distribution of planted and open spaces is a response to the functionality of the space in association with the interior spaces.The landscape spaces that are extensions of the interiors are all designed with sculpted earth covered with greens making the spaces interactive. The site edge buffer planting on the northern side is planned with fruiting trees and placed such that the view of the surrounding green space is uninterrupted from the interiors of the higher floors. The mid-level planting is completely planned with flowering shrubs to cater to the religious needs of the users. The dining and the kitchen areas open up to a vegetable patch which is personalized and would be dynamic with seasonal variations.

courtesy of The Purple Ink Studio

Maiar Mansour
Show full profile Maiar Mansour

Maiar Mansour is an editor at Arch2O with a unique lens shaped by her background in architecture, visual arts, and human-centered design. A graduate of the Faculty of Fine Arts, Maiar discovered her passion for UI/UX through civil society work, storytelling workshops, and freelance design for arts events. Her editorial approach blends emotional intelligence with a strong visual sensibility, guided by a belief in storytelling and design coherence. With training from ITI and Udacity and hands-on experience as a UI/UX designer, she brings fresh perspectives on how environments shape human behavior, emotion, and interaction in design.

Arch2O.com
Logo