Coral House | Sidney Quintela Architecture + Urban Planning
Coral House, Located on Praia do Forte, on the northern coast of Bahia, Casa Coral is a project designed by architect Sidney Quintela that accurately translates the concept of contemporary tropical architecture. With 501m² distributed over two floors, the residence was conceived to accommodate an extensive family during their leisure moments, uniting comfort, functionality, and a full relationship with the coastal landscape.
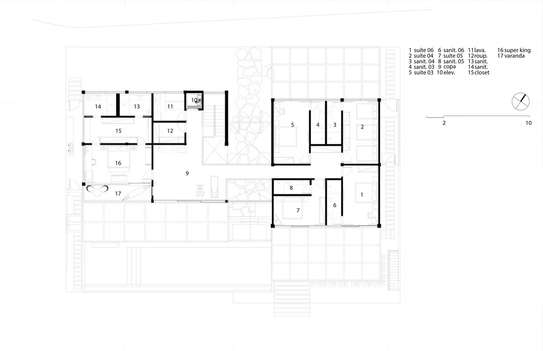
The main challenge of the project was to meet the needs of the residents, who desired multiple suites and the maximum number of rooms with a view of the sea. The office’s response was a linear and strategic layout: the rooms were distributed side by side, facing the beach, with large openings that ensure views and cross ventilation. The residence features seven suites — two on the ground floor and five on the upper floor — as well as spacious social areas integrated with the verandas, which open to the landscaping and the pool. The master suite, on the upper floor, boasts a sea view, a walk-in closet, and separate bathrooms for the couple.
The selection of materials aims to create a dialogue with the surroundings: facades in beige tones reminiscent of sand, the use of natural wood, stones, and finishes with a burnt cement texture. In the social areas and pool, quartzite promotes visual continuity. The choice of these materials reinforces the integration with the landscape and gives the house a rustic elegance. The structure features large spans, glass panels, and wooden frames with shutters, solutions that allow for visual fluidity, the utilization of natural light, and thermal control.
The cabinetry was designed with discretion and functionality, being more prominent in areas such as the kitchen and gourmet space. The furniture blends contemporary Brazilian design pieces with rustic elements, objects brought from travels, and works by northeastern artists, aligning with the architectural proposal and maintaining a cozy atmosphere. The verandas with pergolas and palm thatch, the pivoting doors in double-height, and the lush landscaping complete the tropical resort vibe.
Casa Coral is equipped with photovoltaic panels, becoming self-sufficient in electric energy. The wide frames, made by Demuner, promote thermal comfort by reducing the need for artificial cooling.
With a striking signature and respect for the natural surroundings, Sidney Quintela delivers at Casa Coral a project that embodies the values of contemporary living: uncomplicated sophistication, integration with the environment, and affection in every space.
Project Info
Architects:Sidney Quintela Architecture + Urban Planning
Country: Brazil, Praia do Forte
Area: 501 m²
Year: 2023
Photographs:Gabriela Daltro





















