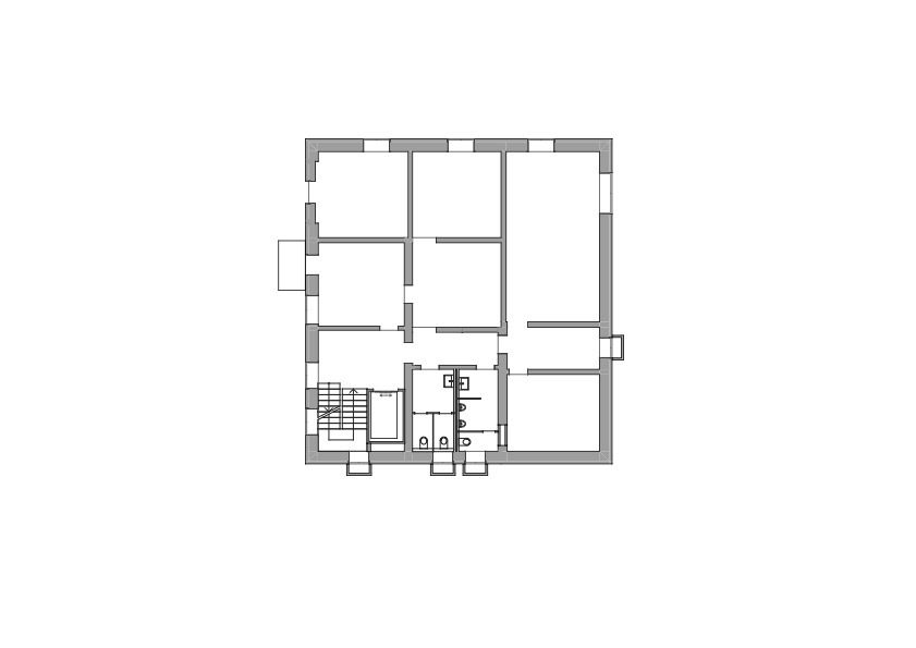
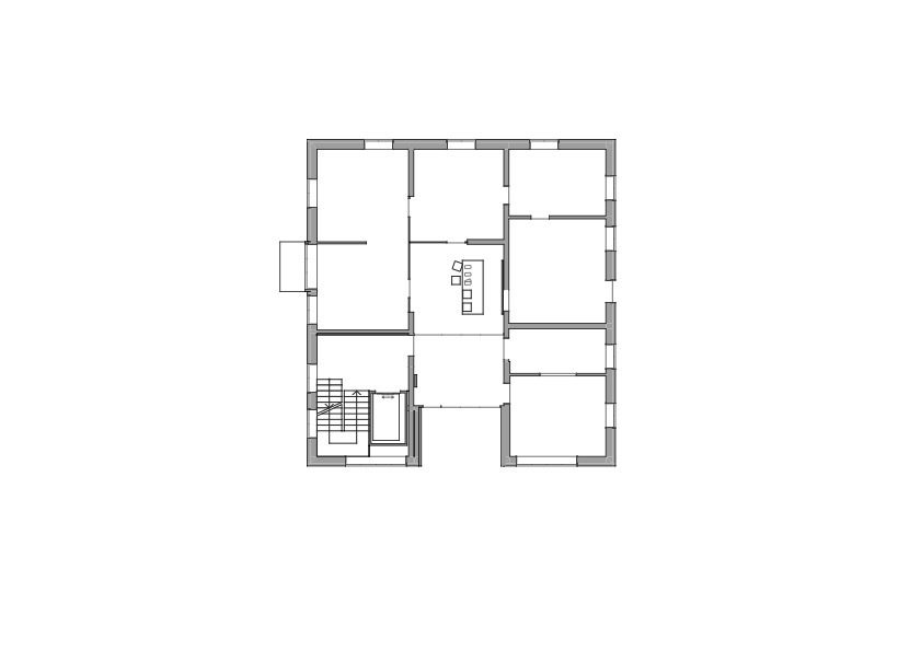
Community Center Langen bei Bregenz, Provided that no land was built on, a restructuring of the center was developed in phases as part of a study.
Starting with the extension of the kindergarten as a conversion in the same building, the restructuring ends with the relocation of the music club to a new attic and the conversion of the community center.
The existing roof will be extended by one storey for the extension. The span provided by the existing building is achieved using trusses. These also form the interior.
The addition of extra storeys contrasts with the refurbished façade in its abstraction. The conversion includes barrier-free access and an enlargement of the meeting room.
Project Info
Architects: MWArchitekten
Country: Austria, Langen bei Bregenz
Area: 800 m²
Year: 2025
Photographs: Dominic Kummer
Technical Team: Robert Gentner
Office Lead Architects: Lukas Peter Mähr
Design Team: MWArchitekten





























Tags: 2025AustriaCommunity Center Langen bei BregenzDominic KummerLangen Bei BregenzMWArchitektenWood
Sophie Tremblay is a Montreal-based architectural editor and designer with a focus on sustainable urban development. A McGill University architecture graduate, she began her career in adaptive reuse, blending modern design with historical structures. As a Project Editor at Arch2O, she curates stories that connect traditional practice with forward-thinking design. Her writing highlights architecture's role in community engagement and social impact. Sophie has contributed to Canadian Architect and continues to collaborate with local studios on community-driven projects throughout Quebec, maintaining a hands-on approach that informs both her design sensibility and editorial perspective.
