Commercial Space in Minato | ROOVICE

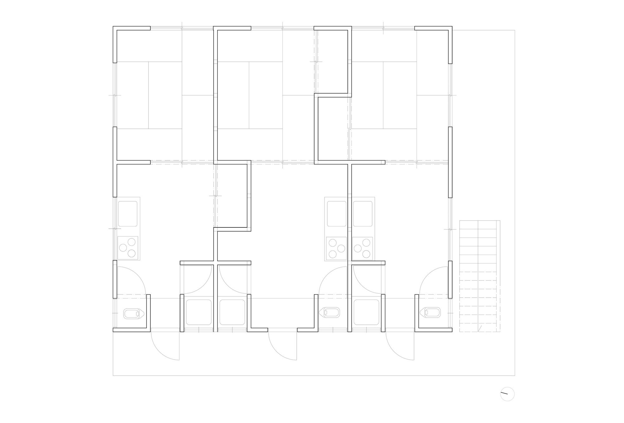
Commercial Space in Minato, Transformation of a 1960s Wooden Apartment Building in Tokyo’s Minato Ward into a Commercial Rental Property. In the heart of Tokyo, Minato Ward, a traditional wooden apartment building, originally comprising six separate units, has been reimagined into a single cohesive commercial space. This architectural transformation involved a complete internal renovation, where all interior walls were demolished to create an open and unified living environment.

© Akira Nakamura1

© Akira Nakamura

Enhancing Light and Space on the Ground Floor – The ground floor, which previously suffered from poor natural lighting and a somewhat gloomy atmosphere, was carefully redesigned to maximize the use of available light. While preserving as many of the original windows as possible, the renovation focused on finishes that would allow even the smallest amounts of light to enhance the space. Ceiling boards were removed to raise the ceiling height and a knotty red pine wood flooring was laid. The wet areas were subtly defined with round-shaped PVC tiles flooring, complemented by curved curtains that echo the same form, creating a gentle and inviting atmosphere in these functional spaces. A new wooden staircase was constructed to provide internal access to the second floor.

© Akira Nakamura2

© Akira Nakamura

One of the most significant changes was made to the entrance. Previously set back and dark, the entrance was relocated to a position closer to the approach, making it more accessible and user-friendly. The new entrance area with a lowered floor, as per Japanese tradition, was covered with mortar flooring with a smooth trowel finish and expanded to accommodate bicycles, skateboards, and other items, ensuring ample space for tenants’ active lifestyles.

© Akira Nakamura3

© Akira Nakamura

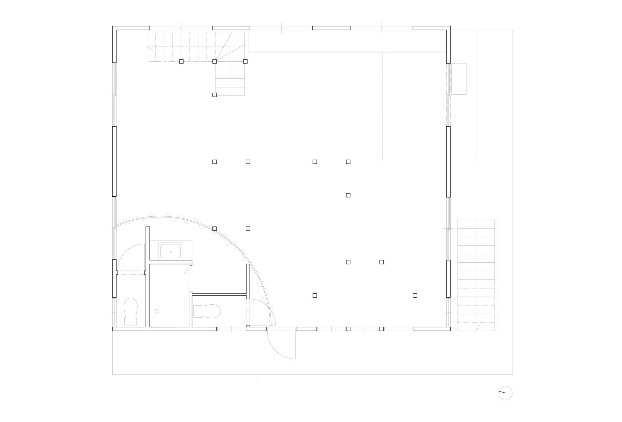
Exposing Natural Elements on the Second Floor – On the second floor, the ceiling coverage was removed, revealing the charm of the original roof boards. To preserve and highlight this feature, external insulation materials were used for the roof, allowing the natural beauty of the wood to remain visible. This thoughtful approach creates a warm and rustic atmosphere. Along with the partition walls, several of the original columns were removed to create a more open and expansive space. To ensure structural integrity, reinforcement beams were strategically added. The removed columns were ingeniously repurposed, and carefully restored to serve as supports for a modern kitchen counter, which is boldly positioned at the center of the room. This integration of old and new elements adds a Roovice-like character, blending history with contemporary design.

© Akira Nakamura4

© Akira Nakamura

Removing the walls to create a single room revealed the varying sizes of the original windows. When paired with the application of lauan plywood boards on the walls, this resulted in a playful patchwork effect. The same wood was used for the flooring, this time with a glossy urethane clear coating. To maintain the room’s integrity and atmosphere, even the light over the kitchen counter and the light switches were custom-made from lauan. The original external staircase was retained, allowing flexibility in the use of the space. This enables the building to function with separate entrances for the upper and lower floors, catering to a variety of potential uses. This renovation project in Shirokanedai is an example of how conventional outdated architecture can be transformed to meet contemporary needs. By preserving and enhancing key elements of the original structure, while introducing thoughtful modern touches, the building has been successfully transformed into a unique and functional rental property that respects its past while embracing the future.

Project Info
Architects: ROOVICE
Country: Minato City, Japan
Area: 148 m²
Year: 2023
Photographs: Akira Nakamura
Manufacturers Electrolux, LIXIL, Tajima, Toto, toolbox: Electrolux

Sophie Tremblay
Show full profile Sophie Tremblay

Sophie Tremblay is a Montreal-based architectural editor and designer with a focus on sustainable urban development. A McGill University architecture graduate, she began her career in adaptive reuse, blending modern design with historical structures. As a Project Editor at Arch2O, she curates stories that connect traditional practice with forward-thinking design. Her writing highlights architecture's role in community engagement and social impact. Sophie has contributed to Canadian Architect and continues to collaborate with local studios on community-driven projects throughout Quebec, maintaining a hands-on approach that informs both her design sensibility and editorial perspective.

Arch2O.com
Logo
Send this to a friend