COBE won the 1st prize in competition in 2014 | KUA University Square

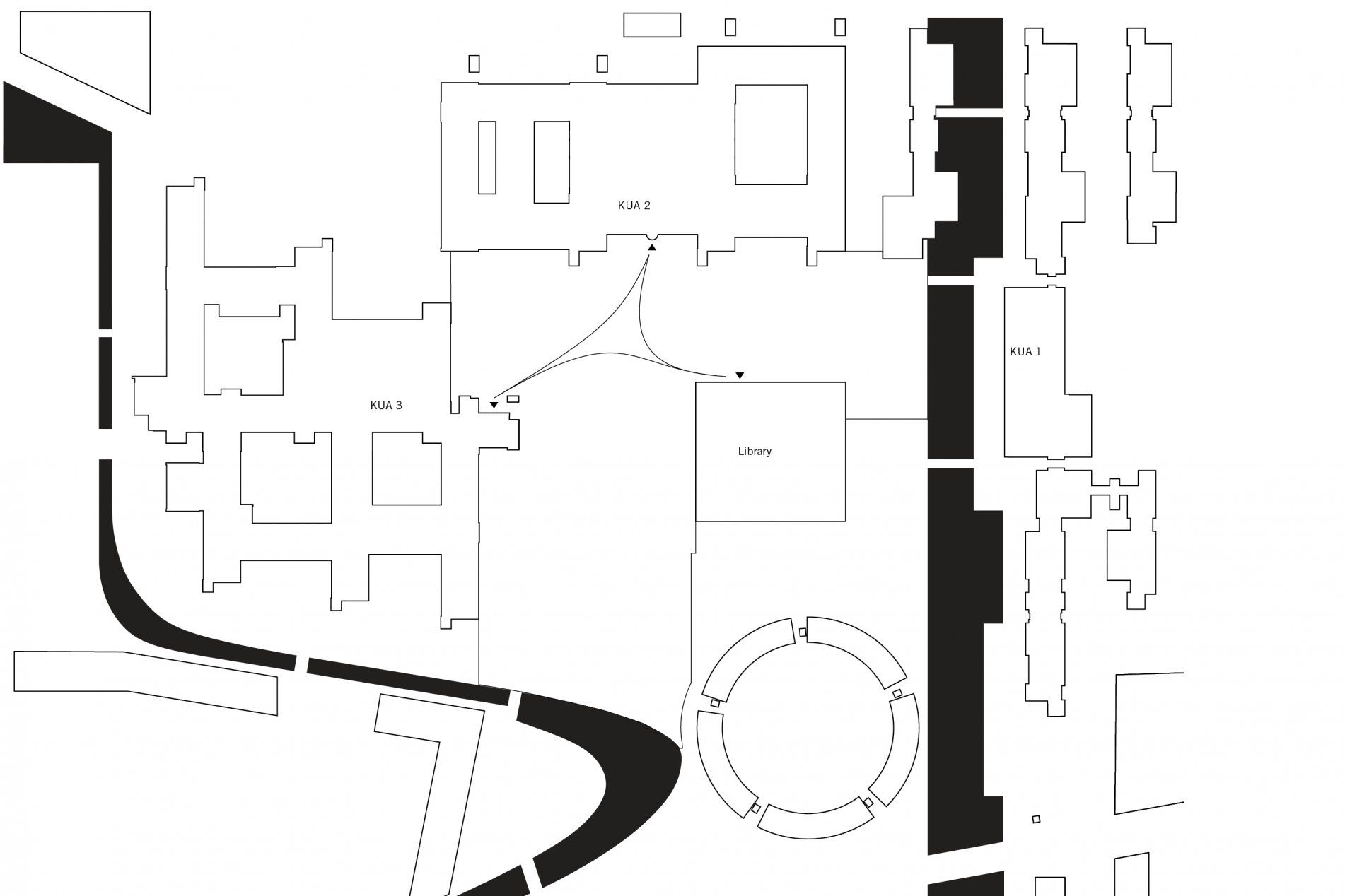
KUA University Square is a new urban space and student’s campus for the University of Copenhagen in Amager (KUA). With its approximately 20.000 m2, KUA University Square will be one of the biggest public squares in Copenhagen. The new square is located between the newly built university buildings of KUA and the nature reserve Amager Fælled. The urban space of the university in North is connected to Amager Fælled in South through a gradual transition, making KUA University Square a hybrid of both park and square in one. The square is laid out as an urban carpet floating over three bicycle parking hills, making room for 2.070 parking spaces both over and under the hills. Between the three hills, the heart of the new campus is located as a central meeting place, connecting the three main entrances of the university buildings. The new KUA University Square will be a well-functioning campus square, offering a vast variety of urban spaces, highly accessible for all users.

Courtesy of COBE

The main challenges were to create a space for the very social, urban functions of a university square; to provide anadequate solution for the massive amount of bicycles; and to create a fine transition between the urbanity of auniversity square and the remoteness of the nature reserve Amager Fælled

The new campus square with its adjacent greenery and bicycle hills has a surface that floats like a fluctuating urbancarpet

Courtesy of COBE

The bicycle hills are integrated in this fluctuating urban carpet, creating covered bicycle parking underneath

Three types of bicycle parking are created – bicycle hills and two types of bicycle beds. Both uncovered and covered andslightly lowered in the ground. This creates the possibility of either walking on top of them, sitting along side themor merely parking your bike.

Courtesy of COBE

Project Info:
Architects: COBE
Collaborators: EKJ, CN3, Vind-Vind
Location: Copenhagen, Denmark
Client: The A. P. Møller Foundation
Program: New urban space for the University of Copenhagen in Amager (KUA)
Size: 19.100 m²
Status: 1st prize in competition in 2014, completed in 2017
Team: Dan Stubbergaard, Caroline Nagel, Maria Aufegger, Karoline Liedtke, Matilda Andersson, Birk Folke Daugaard, Christian Sander, Ben James, Joachim Makholm Michelsen, Ludvig Holtenäs

COBE
Arch2O.com
Logo
Send this to a friend