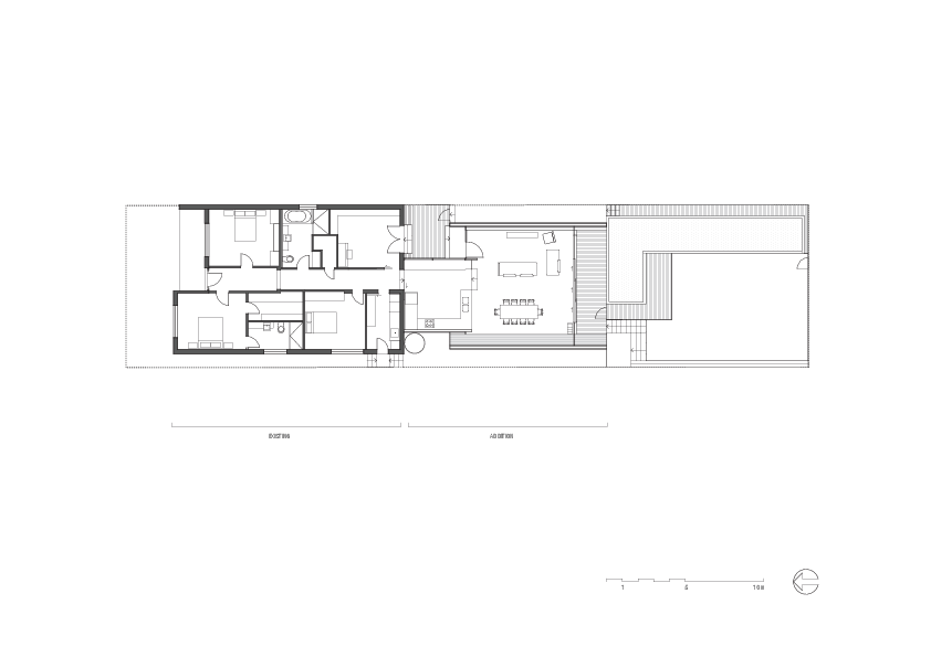
The Cloud House is an addition and renovation to a double-fronted Edwardian house in Fitzroy North. Over the course of close to a century, this house has received several additions and modifications.
McBride Charles Ryan’s work for the Cloud House is designed in three parts. This allows for a sequence of distinct and unexpected episodes, with glimpses previewing oncoming spaces and experiences as you move through the home.
The street facade has been left to demonstrate the clients’ respect for the evolution of the character of the area and the modest street alteration belies the extent of the comprehensive internal renovation work. The spaces within the original structure are largely white in color, united by exotic floral hallway carpet. This journey through space is followed by encountering a disintegrated red-colored ‘box’. This is the kitchen, at the heart of the property, which acts as a bridge linking the major spaces. A cloud-shaped extrusion is the unexpected final space. Following the form of a child-like impression of a cloud, it is a playful addition where family and friends can eat and have fun surrounded by the curved form.
The new living addition faces due south while allowing controlled north sun into the living area and providing effective cross ventilation. The form of the ‘cloud’ conforms to setback regulations without appearing obviously determined by them. The extrusion creates a dramatic interior language where walls merge seamlessly with the floor and ceiling. The craftsmanship is remarkable throughout; it has a sense of care one typically associates with the work of a cooper or wheelwright. While the geometry is playful, the extrusion is essentially a contemporary barrel vault. It is our hope that this cloud has a ‘silver lining’.
Project Info:
Architects: McBride Charles Ryan
Location: Fitzroy North, Australia
Design Team: Rob McBride, Debbie-Lyn Ryan, Marie Chen, Cathryn Panaterri, Ben Inman, Gabriella Muto
Extension Area: 70 sqm
Area: 220.0 sqm
Project Year: 2012
Project Name: Cloud House
All Images Courtesy Of McBride Charles Ryan


















Tags: 2012AustraliaCloud HouseFitzroy NorthgeometryGlassMcBride Charles RyanRenovationSteelStructureVentilationWood
