City of Santa Monica Parking Structure #6 | Behnisch Architekten + Studio Jantzen
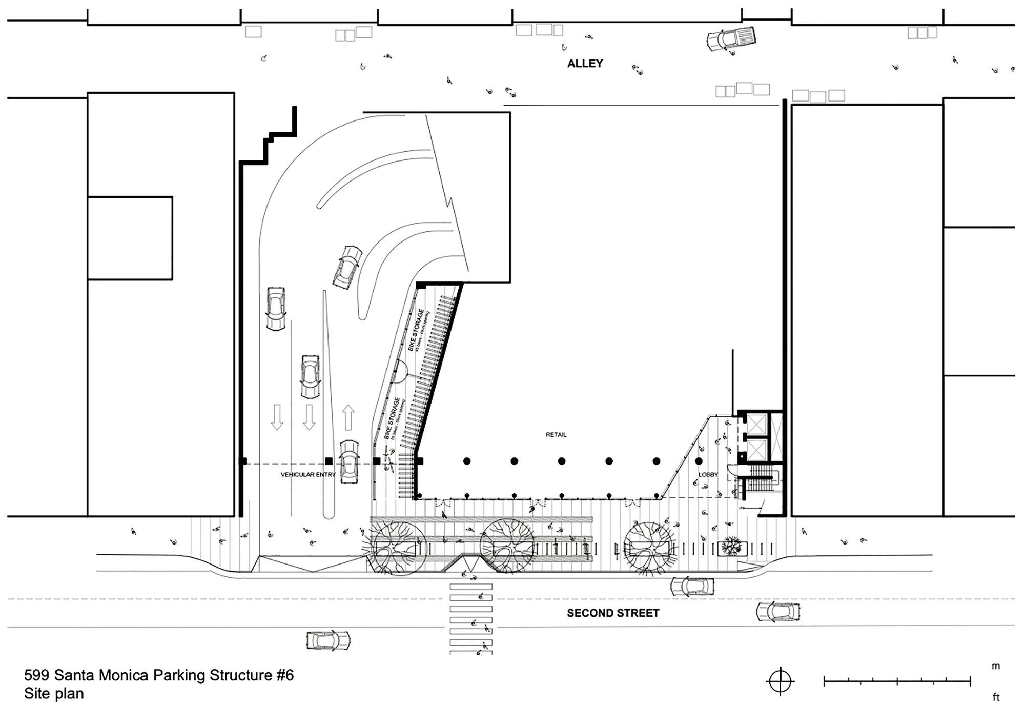
City of Santa Monica Parking Structure #6, CoSM Parking Structure #6 is a public parking structure in downtown Santa Monica serving several major local and tourist destinations. At Second Street, the public realm is a dynamic overlap of retail, pedestrians, bikers, motorists, landscaping, and opportunities to sit and rest.
This structure will be unique, however, in that the public realm does not stop at the ground floor, but continues up along the entire building face. The dynamic circulation zone at the façade invites all parking patrons to make their way to Second Street. This reduces way-finding confusion which plagues most parking garages.
Patrons cascade up and down an exterior diagonal stair which weaves in and out of the plane of the façade. The façade is pulled away at the diagonal stair, bringing the movement of people to the fore. This serves a twofold purpose: first, to ensure safety invisibility, and second, offering unique ocean views.
The façade functions as a light-enhancement screen which is carefully crafted to bring light deep into the building structure, while eliminating harsh glare at the edge. This screen is composed of metal panels which are folded outwards to catch and redirect high angle sunlight into the depths of the structure.
The portion which remains unfolded is perforated to allow for the passage of low angle light directly into the garage and to provide a high degree of visual transparency. This combination allows for a greater amount of light to enter the garage over a longer period.
From the street, the highly transparent façade appears busy with the passage of people, and the constant ever-changing backdrop of cars. The façade not only provides a functional lighting aspect for the parking structure, it also creates a strong identity, enlivening the streetscape.
Project Info:
Architects: Behnisch Architekten, Studio Jantzen
Location: California, United States
Design Architect: Christof Jantzen
Area: 2250.0 sqm
Manufacturers: Cookson, Otis
Parking Consultant: International Parking Design
Structural Engineer: Culp & Tanner
Shoring Engineer: Burnett & Young
MEP Engineer: Levine Seegel
Civil Engineer: Incledon Consulting Group
Façade Consultants: DVV Associates, Odian Engineering
LEED: Brightworks, Gaia Development
Artist: Mike Ross
Owner: City of Santa Monica
Year: 2013
Type: Car Parking
Photographs: David Matthiessen, Stefan Behnisch, C. Matthiessen

















Tags: 2013Behnisch ArchitektenC. MatthiessenCaliforniaCar ParkingConcreteDavid MatthiessenPhotographySteelStefan BehnischStudio JantzenUnited States
Hadeer Shahin is the Built Projects Editor at Arch2O, where she curates innovative architectural works from around the globe. With a background in architecture from Alexandria University and hands-on experience in design and digital content, she bridges the gap between technical precision and editorial vision. Hadeer’s keen eye for spatial storytelling and her passion for contemporary design trends make her a vital contributor to Arch2O’s mission of highlighting excellence in the built environment.







