Circulo Mercantil Industrial Sports Center | Manuel Quijano Vallejo
Circulo Mercantil Industrial Sports Center is the outcome of many works, asked by Sevilla´s Circulo Mercantil Industrial, being carried out on its sports area. These installations, which were inaugurated back to 1970, had hardly had any improvements through all these years. Therefore, the managing board agreed to scheme a plan to modernize this essential area within the club.
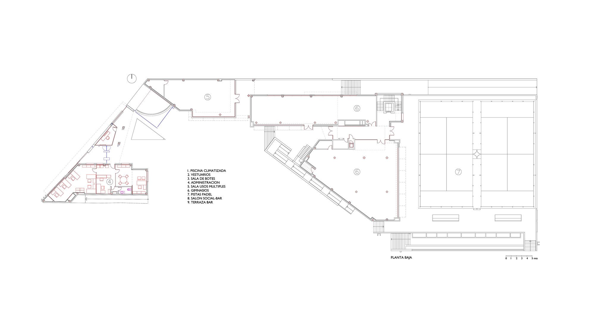
The project includes not only a new planning for the north parcel but also a multipurpose building construction. Previously, this north parcel was occupied by both a wasteland area and various unrelated and obsolete buildings which were located away from the river. This new project seeks to establish a building parallel to the river which creates a space looking out onto the river.
Due to its different requirements (i.e. new Club access, administration area, multipurpose rooms, sports and social areas), the building cannot be constrained by any recognized architectural typology. The final design is the consequence of dealing with parcel´s conditions, location and scheme for development.
It is designed as a rationalist architectural project avoiding any superfluous embellishment and prevailing simple geometric forms which convey practicality and functionality.
Its location, between the Guadalquivir banks and facing Maria-Luisa Park, is an essential factor to the approach of this new design. Therefore, the new edifice is completely open towards the river thanks to an impressive glass façade.
On the first floor of the north façade, above parcel´s enclosure height and emulating Andalusia architecture with the typical “cierro” construction, an outstanding oriel is designed with views towards the unique Seville’s city Centre.
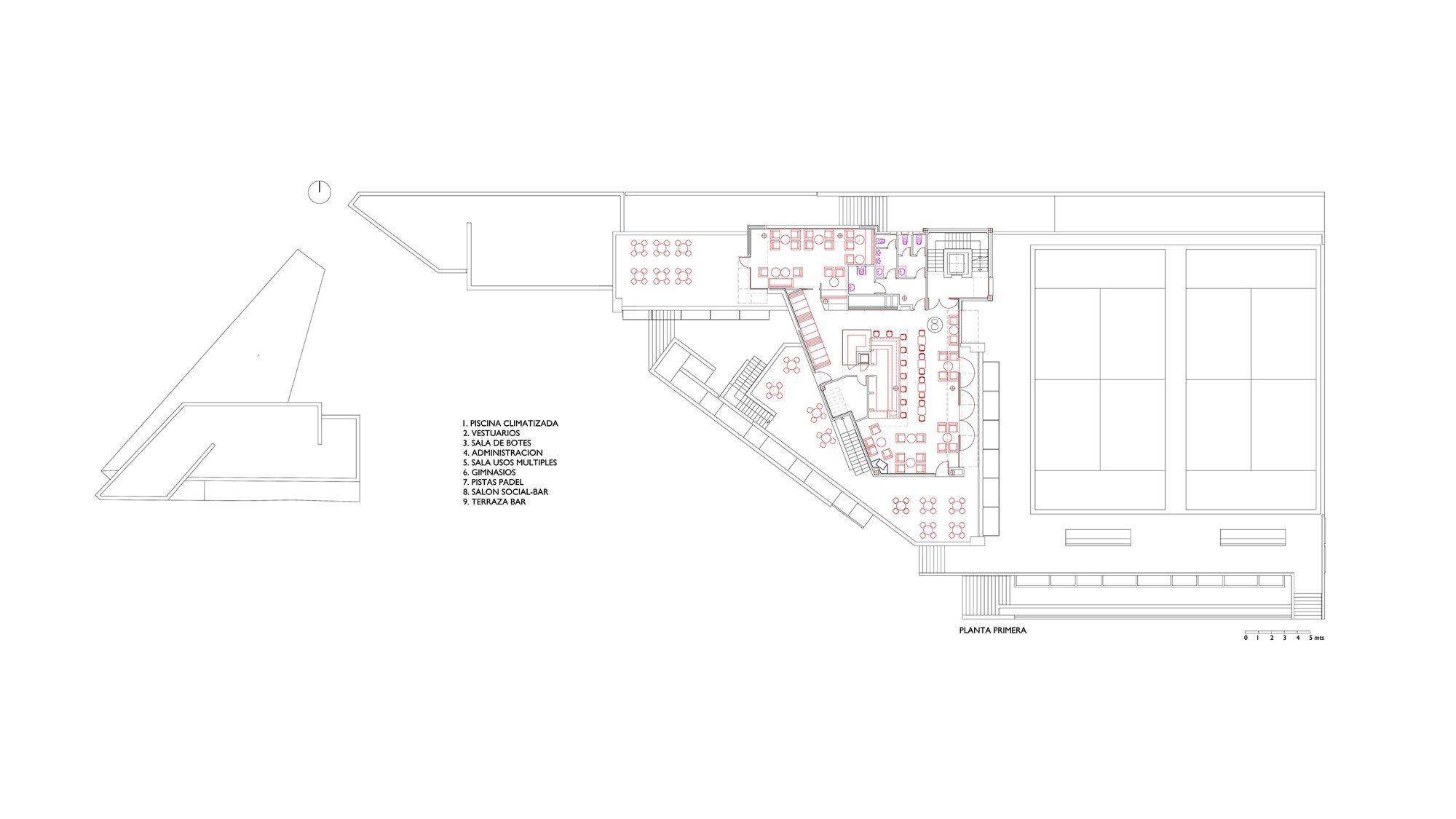
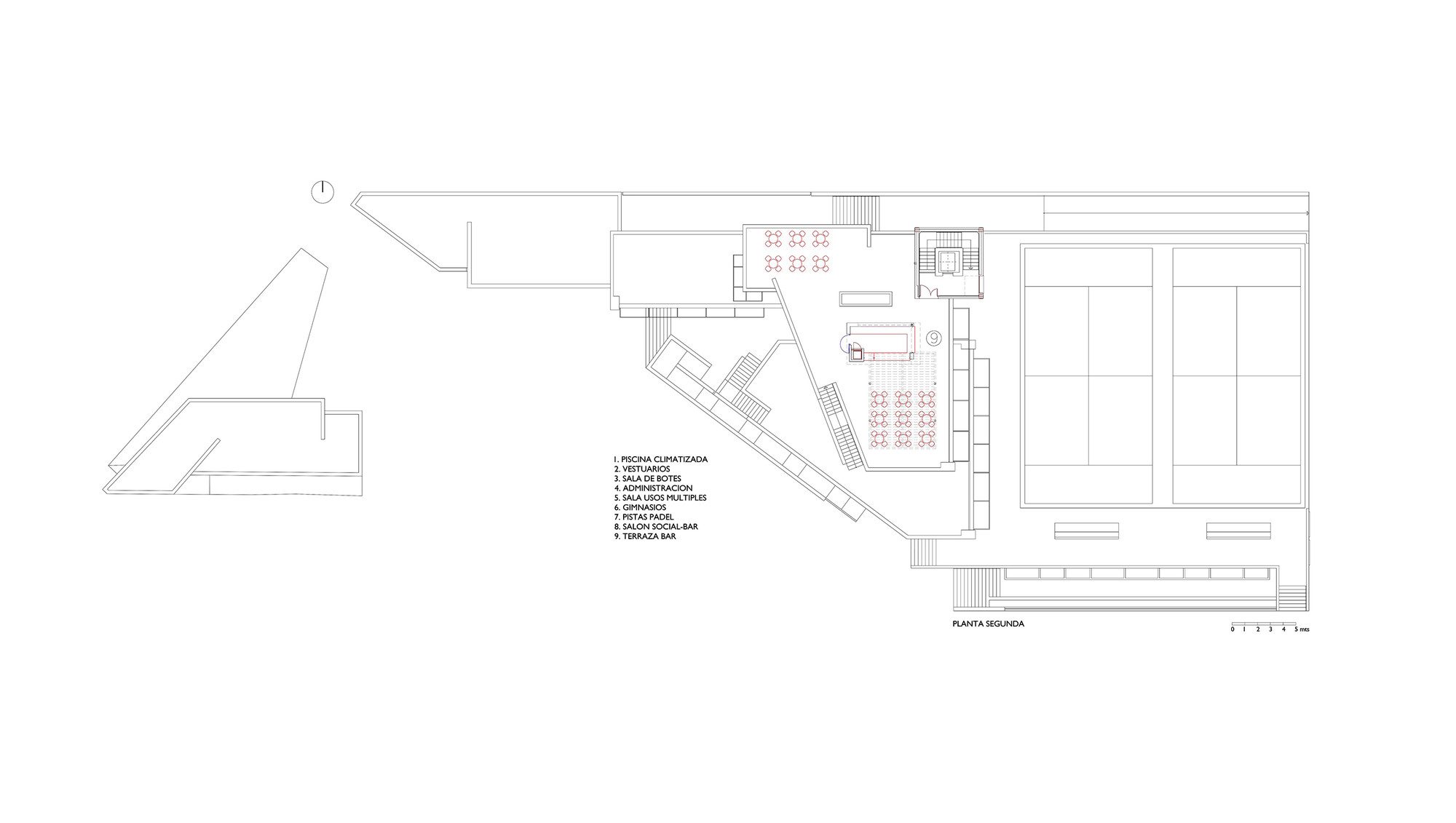
The transition between the new building and the current social one, has been worked out by placing the highest area close to the north median and stepping down through different decreasing enclosures until they reach the existing construction. This action would allow us to take advantage of the numerous terraces featured along the building connected through external staircases.
One of the main project´s aims is to be environmentally friendly with an outstanding energy conservation. The building is covered with components which enable the construction to provide an excellent thermal isolation. The vast glass surfaces are located on the north and south, except for the east façade. Solar protections are designed according to regulations.
A special design is incorporated concerning the air-conditioning installation and hot water production provides the building with a highly efficient energy conservation. Geothermal is used in the air conditioning through two wells, extraction and injection, reaching out phreatic level. This facility will permit us to not use any machinery on the floor, leaving all space available for the club members´ enjoyment.
The new entrance to the club is designed as a unique piece conveying a powerful image easily recognizable from Presidente Adolfo Suarez Avenue. In order to fulfill this idea, a stunning porch is built with a horizontal plane flying over the façade line and leaning on one corner of the Management Edifice while the other is folding itself to seek ground support. This entire block is covered with dark grey composite panel which is further echoed in other building areas.
Concerning the façade implementation towards the river, the new building is integrated by providing a modern architectural image, not only because of its correct scale within the environment but also with both its simple forms and light colors, almost white, all over the placated facade.
Project Info
Architects: Manuel Quijano Vallejo
Country: Spain, Sevilla
Area: 2141 m²
Year: 2014
Photographs: Javier Orive
Technical Architect: Alejandro Pallares Manrique
Delineation: Rafael Maguillo Gago
Works Director: Manuel Quijano Vallejo
Execution Director: Alejandro Pallares Manrique



































Isabelle Laurent is a Built Projects Editor at Arch2O, recognized for her editorial insight and passion for contemporary architecture. She holds a Master’s in Architectural Theory from École Nationale Supérieure d’Architecture de Paris-Belleville. Before joining Arch2O in 2016, she worked in a Paris-based architectural office and taught as a faculty adjunct at the École Spéciale d’Architecture in Paris. Isabelle focuses on curating projects around sustainability, adaptive reuse, and urban resilience. With a background in design and communication, she brings clarity to complex ideas and plays a key role in shaping Arch2O’s editorial











