The Chile 893 building is located in the city of General Roca, Rio Negro, in an old industrial area of the city. Considering the corner location of the 20-meter by 20-meter lot, the ground floor of the building offers an open space to the public life of the city, eliminating the public-private fragmentation and favoring the simultaneous use of both. This layout promotes encounters for both residents and neighbors.
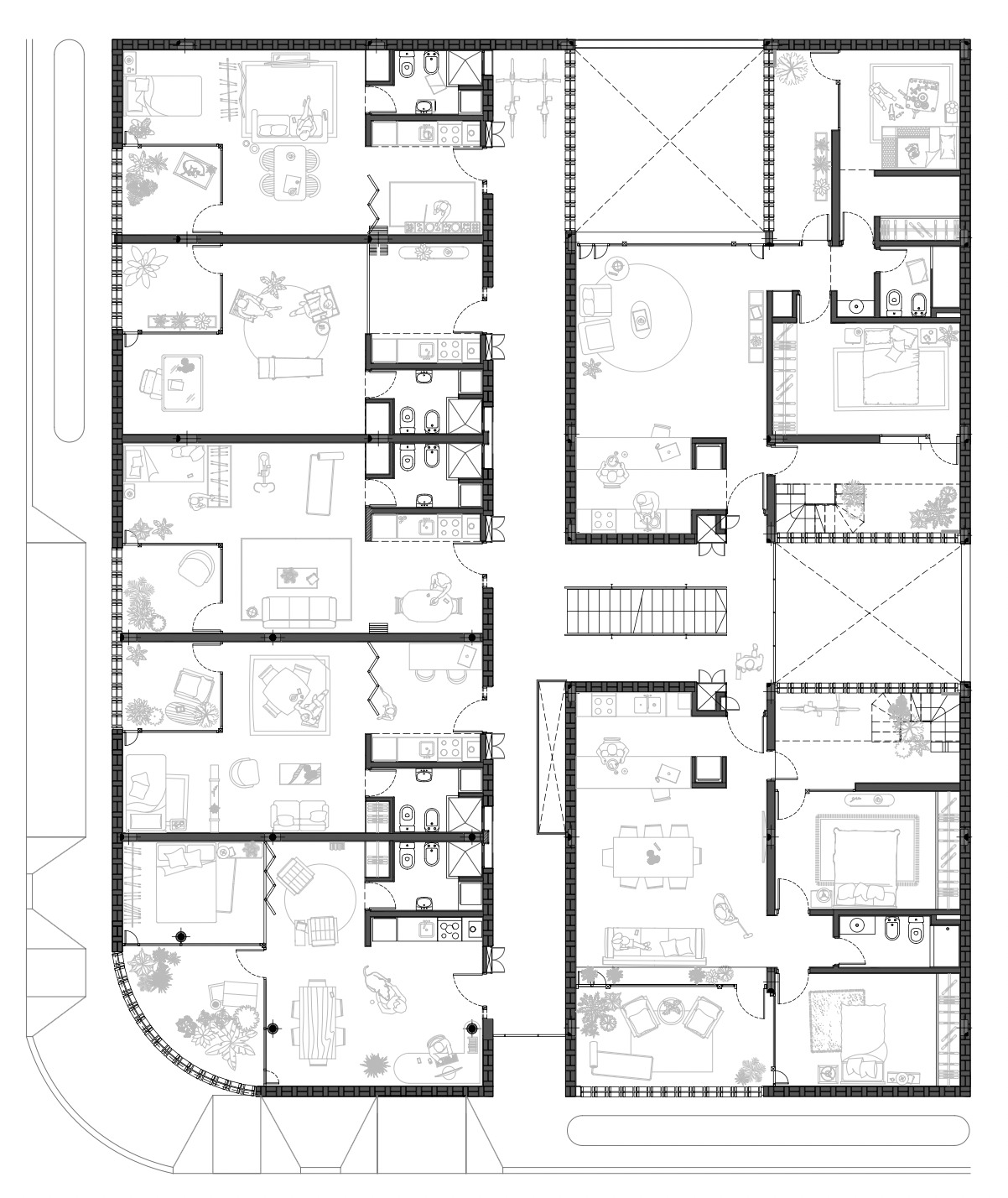
The functional units of the building are organized around two internal courtyards to favor sunlight and cooperate with energy well-being through passive energy. The vertical arrangement of the building follows a classical logic of base, development, and crowning, where the base and crowning have a similar material and functional function, being both public spaces for the inhabitants of the building and the neighbors of the city.
The building has a public terrace equipped with grills, in addition to two private terraces. This situation puts the user in a new relationship with the landscape, as the vision is 360 degrees, achieving views of the topography of the hills, and valuing the territory of the area.
Following the premise of “exteriors within interiors,” the functional units are planned in such a way that the spaces are directly linked to patio-balconies, benefiting the relationship between the exterior and the interior in most areas.
The housing units are designed to allow flexibility of uses, adapting to the needs and preferences of its inhabitants, where foldable divisions unfold to modify spaces as needed. These units attempt to provide solutions to the diversity of uses of multiple family structures, a combinatorial way of being inhabited.
The predominant use of brick as a material is due to its local availability and the familiarity of the workforce with this construction technique. The brick is developed on the exterior, being a skin that covers the outside of the units and “disassembles” as sunshades on the balconies, considering that the lot has its longest face exposed to the west. Screening has been used as a regulating device for this orientation, giving character to the entire construction.
Project Info
Architects: Arq. Natalia Leves
Country: Argentina
Area: 1450 m²
Year: 2022
Photographs: German Curihuinca
Project Lead: Natalia Leves
Site Supervision: Natalia Leves
Structural Engineering: INGESUD
Contractor: INGESUD
Collaborator: Camila Lopez
Interior Design Collaborator: Yenien Salas
Manufacturers: PreNova


















Isabelle Laurent is a Built Projects Editor at Arch2O, recognized for her editorial insight and passion for contemporary architecture. She holds a Master’s in Architectural Theory from École Nationale Supérieure d’Architecture de Paris-Belleville. Before joining Arch2O in 2016, she worked in a Paris-based architectural office and taught as a faculty adjunct at the École Spéciale d’Architecture in Paris. Isabelle focuses on curating projects around sustainability, adaptive reuse, and urban resilience. With a background in design and communication, she brings clarity to complex ideas and plays a key role in shaping Arch2O’s editorial

