Chibougamau-Chapais Air Terminal | EVOQ + ARTCAD architects
The Eeyou Istchee James Bay region is served by the Chibougamau-Chapais airport. It serves a wide area that includes the towns of Chibougamau, Chapais, and Oujé-Bougoumou. A new terminal building was deemed necessary to accommodate the expanding passenger traffic. The new terminal was designed to create a seamless passenger experience while also expressing the ambitions and culture of the communities it serves.
The airport serves freight, medical evacuations, forest firefighting activities, and flying passengers. These services must be maintained continuously, which presents considerable difficulty during construction. Rigorous planning, construction phasing, and meticulous site selection for the new terminal allowed operations to continue within the current terminal while work was underway and the airport tarmac to be expanded once the new terminal was operational.
Chibougamau-Chapais Airport’s Design Concept
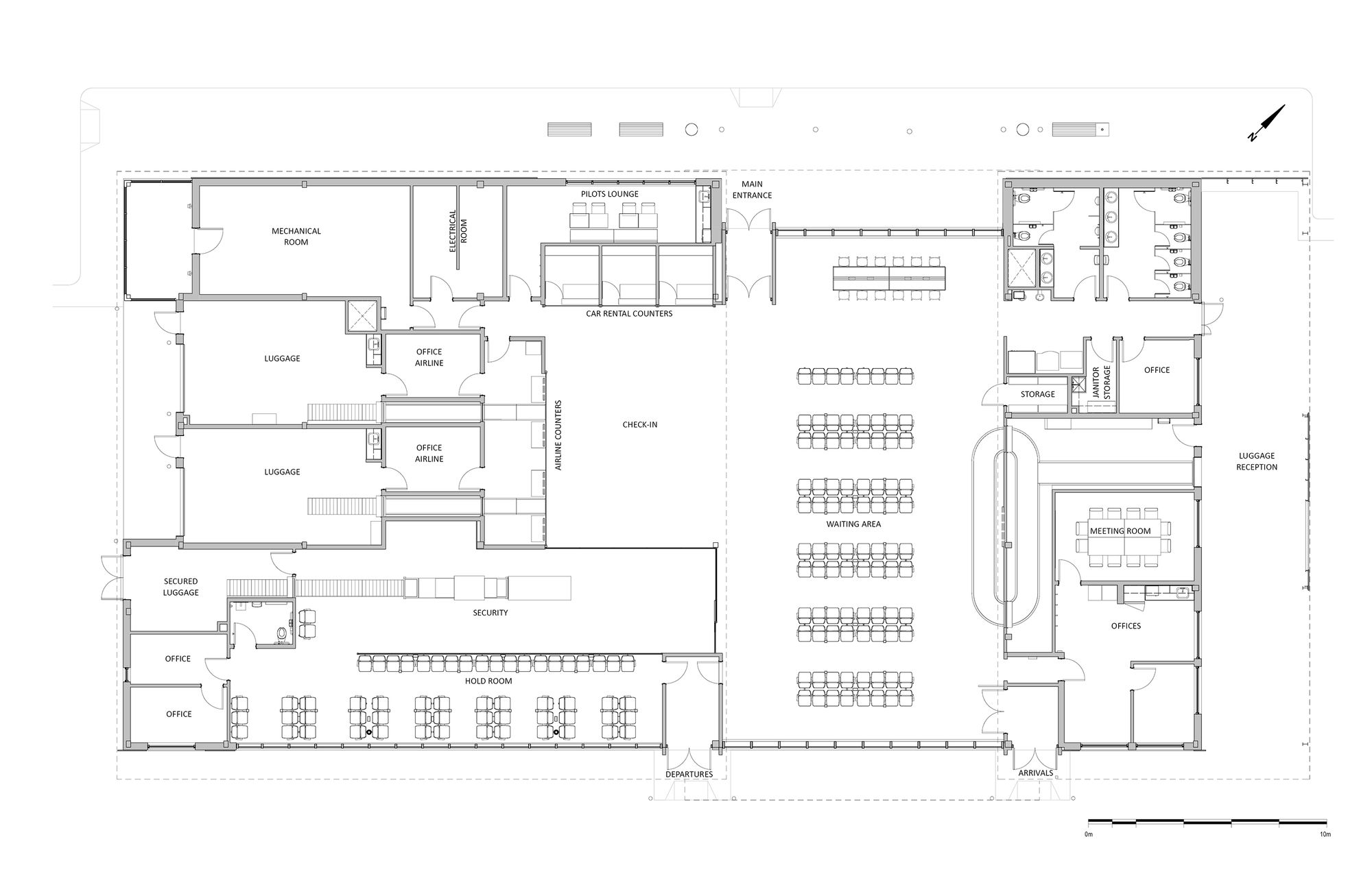
The new construction has two low structures on either side of a glass concourse. The latter is a focal center for travelers, connecting all terminal functions and services, making them easily visible and accessible. Its layout creates visual continuity from the parking lot to the runway. Waiting passengers can keep an eye on their jet on the tarmac, while others can watch the pick-up and drop-off zone.
The continuous use of materials and lighting treatment while transitioning from inside to outside spaces adds to the fluidity. The outer façade contains the airport’s name in Cree and French and Emmanuelle Gendron’s artwork that has been artfully interwoven into the transparency of the timber curtain walls, paying homage to the Eeyou Istchee region. A committee comprised of members from the communities of Chibougamau, Chapais, and Oujé-Bougoumou chose Gendron’s work.
The terminal’s architecture highlights locally produced wood, notably high-performance goods such as glulam and cross-laminated timber (CLT) structural slabs, emphasizing its proximity to the boreal forest. The waiting space is bounded on three sides by timber curtain walls, which are capped by a raised ceiling that creates a south-facing clerestory. The roof is made out of engineered wood and steel components. Stressed CLT panels stretch 12m and are supported at each end by wood columns strengthened with high-strength steel rods that connect the center to the extremities.
The combined structural structure permits huge spans, creating an open public space. The system also allows for lower roof thickness through its broad overhangs while contributing to the interior shading strategy. The curtain walls give natural light, enhance energy efficiency, and aid in structural bracing, while the clerestory serves as a load-bearing axis, reducing the need for a structural beam. This simple, extremely efficient approach highlights the project’s main design concepts: transparency, lightness, comfort, and functionality.
Project Info:
Area: 1030 m²
Year: 2022
Photographs: Maxime Brouillet
Manufacturers: Swisspearl, ARCONAS, BESISTA, IC2 – UNICEL Architectural / RAICO, Nordic Structures
Contractor: Construction Unibec
Architecture: Alain Fournier, Joël Sirard, Sami Tannoury, Kim An Truong, Alexandre Jean-Bergeron, François Belleau, Karine Dieujuste, Huayna Sanchez Alfaro, Éric Leblanc, Louis Babin-St-Jean, Eloïse Barry, Catherine Fontaine, Alexis Charbonneau, Pierre Bouchard, Geneviève René, Edith Dennis-Larocque
Artist: Emmanuelle Gendron
City: Chibougamau
Country: Canada




























