Cherry Orchard Residence | Bureau XII
Cherry Orchard Residence designed by Bureau XII, The restoration and extension of the existing pre- 1945 era building aim to provide a guest house with a restaurant and recreation zone as a supplement of the property’s natural setting and future sports facilities.
The site for the project is located on eleven acres of orchard land nestled between the Iskar River and Vitosha Mountain, 12 kilometers from the city center of Sofia. The owners purchased the plot with an existing pre- 1945 era building, which was used as a military quarter by the German and Russian Armies due to its strategic location. The program requirements are to extend the existing building with a newly built structure providing space for guest rooms, kitchen with restaurant saloon, lounge, recreation zone, gym and small spa unit.
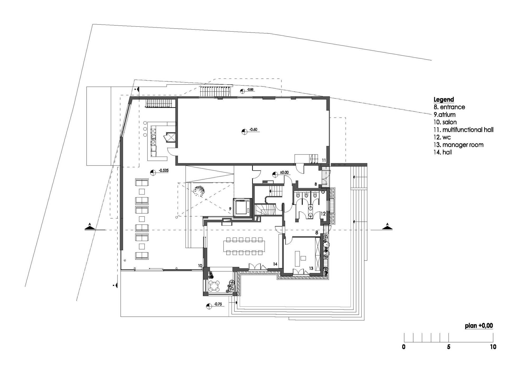
The program envisages the uniqueness of the location, the relation to nature and the planned future sports facilities. The old house with its simple look and facades, tiled alpine roof and deep eaves express the familiar image of a mountain home. The monolithic building with its strong presence in the property, surrounded by age-old trees demands a sensitive design approach. The newly created volume is connected through new openings in the existing façade merging the interior spaces between old and new. A two-story atrium with glazed roof provides daylight to the central part of the ground floor and a panoramic elevator is going to the top terrace. The façades of the old and new buildings have the same plaster structure and white color, therefore, the disposition between old and new is displayed by the volume composition.
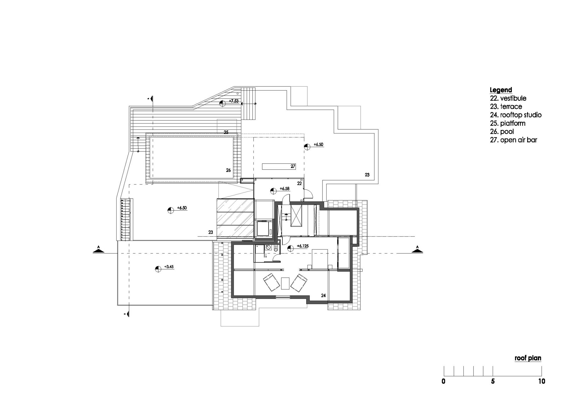
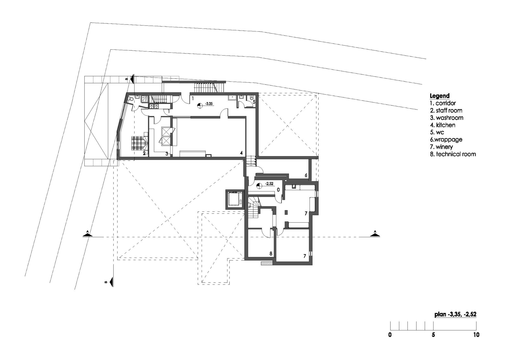
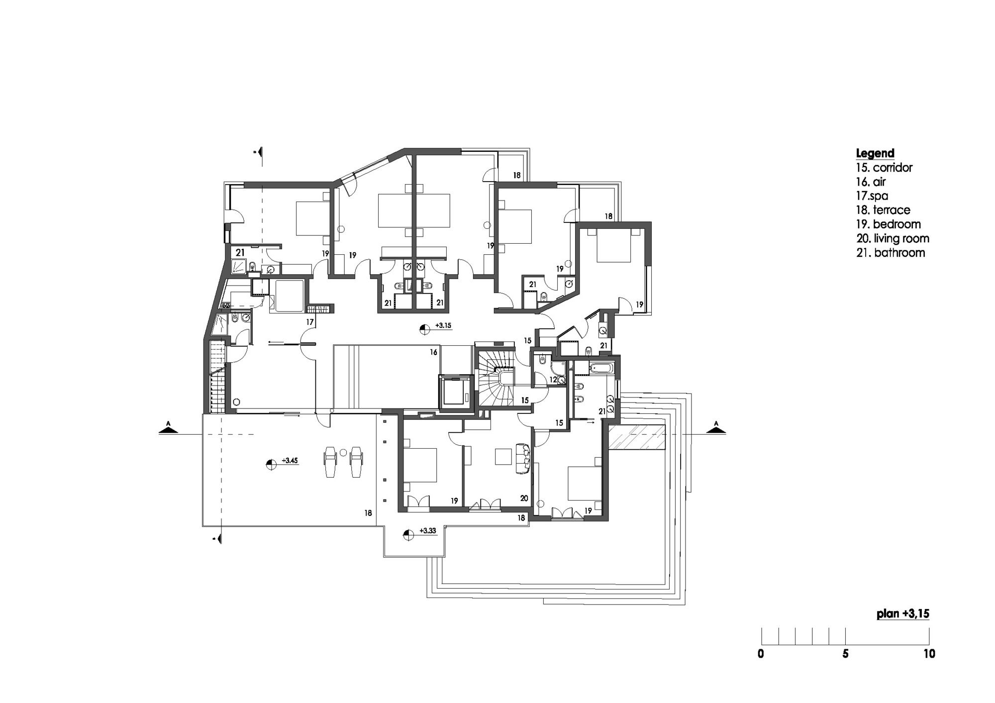
On its north side, the new building has two levels. The second one accommodates the guest rooms and partly cantilevered it extends towards the green surrounding. On the south side is located the “salon” – a large bright room, wide open with sliding façade glazing which provides views towards the adjacent garden. This multifunctional area is foreseen for different scenarios such as restaurant, event place, conference room etc. On the second floor over the atrium is located a small gym with spa facilities and a large terrace on two levels. On top of the building is located a small “Belvedere” open-air bar and swimming pool with amazing view to Vitosha mountain. In the basement are situated the wine cellar and the kitchen. The interior of the old building is leaning on historical materials.
wooden floorings, brick walls, terrazzo stairs and corridors, the attic is refurbished and the old roof’s wooden structure is fully restored. In the new extension natural materials like wood, exposed concrete and steel suggest continuity and provide an environment for different scenarios.
Product Description: The generous glazing of the extension building is done with Reynaers Aluminum system CP155. The south façade has a large scale (300x300cm CP155 LS) lift and slide element allowing to merge the inner space with the adjacent garden. The sliding glass door has a weight of around 400 kg nevertheless the door is easy to handle. According to the manufacturer, this should be the largest lift and slide system mounted in Bulgaria.
Project Info:
Architects: Bureau XII
Location: Sofia, Bulgaria
Architects in Charge: Peter Torniov, Milena Filcheva
Area: 1206.0 m2
Project Year: 2016
Photographs: George Palov, Tsvetomir Dzhermanov
Manufacturers: Reynaers Aluminium, Baumit, Isover
Project Name: Cherry Orchard Residence
























Tags: AtriumBulgariaBureau XIIGeorge PalovGymOld OrchardOrchardReynaers AluminiumSofiaStructureSwimming PoolTsvetomir Dzhermanov





