Changzhou Culture Center
The new building complex includes a number of museums such as an art museum, a science and technology museum and a library, together with service facilities supporting the center for culture in the Xinbei district of the city.The design reflects elements of Changzhou’s southern Chinese culture and the city’s prominent water features.
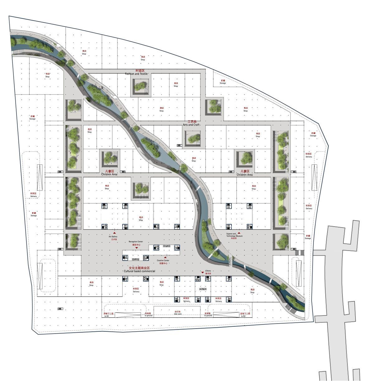
The building modules – which cantilever bridge-like in a large arc – consist of six 45 metre-high pavilions which vary significantly inside with their different architectural functions, but form a visual whole from the outside. The space between the art gallery to the east and the science and technology museum to the west forms the public plaza in the center of Changzhou. With its water features and generous landscaping, it provides an inviting ambiance and serves as a meeting point in the district.On the 256,000 square meter basement floor are an underground car park as well as numerous shop and retail areas which are lit by lightwells and which are directly connected with the cultural facilities.
A water course on the lower level running diagonally through the 100,000 square meter site links all the modules together and acts as a source of lighting for the restaurants in the basement.With its material and color, the façade picks up on the regional building tradition: staggered gray slate creates a solid external impression which is contrasted by the bright surfaces with white elements and transparent glass façades on the inside of the buildings.The Culture Center will play an important role in shaping the new city center and its development, and it reflects Changzhou’s tradition carried over into the modern metropolis. The large roof spreads across the six culture pavilions and is used to define the public space for Changzhou’s citizens.
Project Info
Architects: gmp architekten
Location: Changzhou, China
Partner: wei wu
Competition Team: Martin Friedrich, Sebastian Schmidt, Kong Bu Hong, Jiang lan lan, Yao ya, Zhang zhen, gao shu san, dominika gnatowicz, sa xiaodong
Structural Design: schlaich bergermann and partners
Landscape Design: wes & partners
Client: changzhou jinling investment and construction co., ltd
Gross Floor area: 365,000 m²
Type: Cultural Center









