Chamboirat House | COVE Architectes

This project aimed to transform an ancient farmhouse into a family home in Chamboirat, a small hamlet in Auvergne’s countryside. This two-century-old barn was a common agricultural heritage in this part of France. Once inside, we discovered what made this place exceptional: 9-meter-high stone masonry walls, a complex wooden framework, and fantastic volumes. The whole place showcased remarkable materiality. When our client shared with us his wish to turn it into a home where he could gather his family for years to come, we agreed that this intervention should primarily respect the distinctive character of the place.

Chamboirat

© Charles Bouchaïb

To achieve this, we prioritized careful and subtle rehabilitation, favoring the continuation of its built culture over disruptive actions. This is why we emphasized the use of minimally processed local materials and artisanal techniques, inspired by the craftsmanship employed in the original construction of the building two hundred years ago. The walls were thus stabilized through lime chainings and selective repairs using cut stones. The existing framework, preserved down to the struts, was complemented by new oak beams, rafters, and planks, treated to ensure a unified appearance between the old and new parts.

Chamboirat

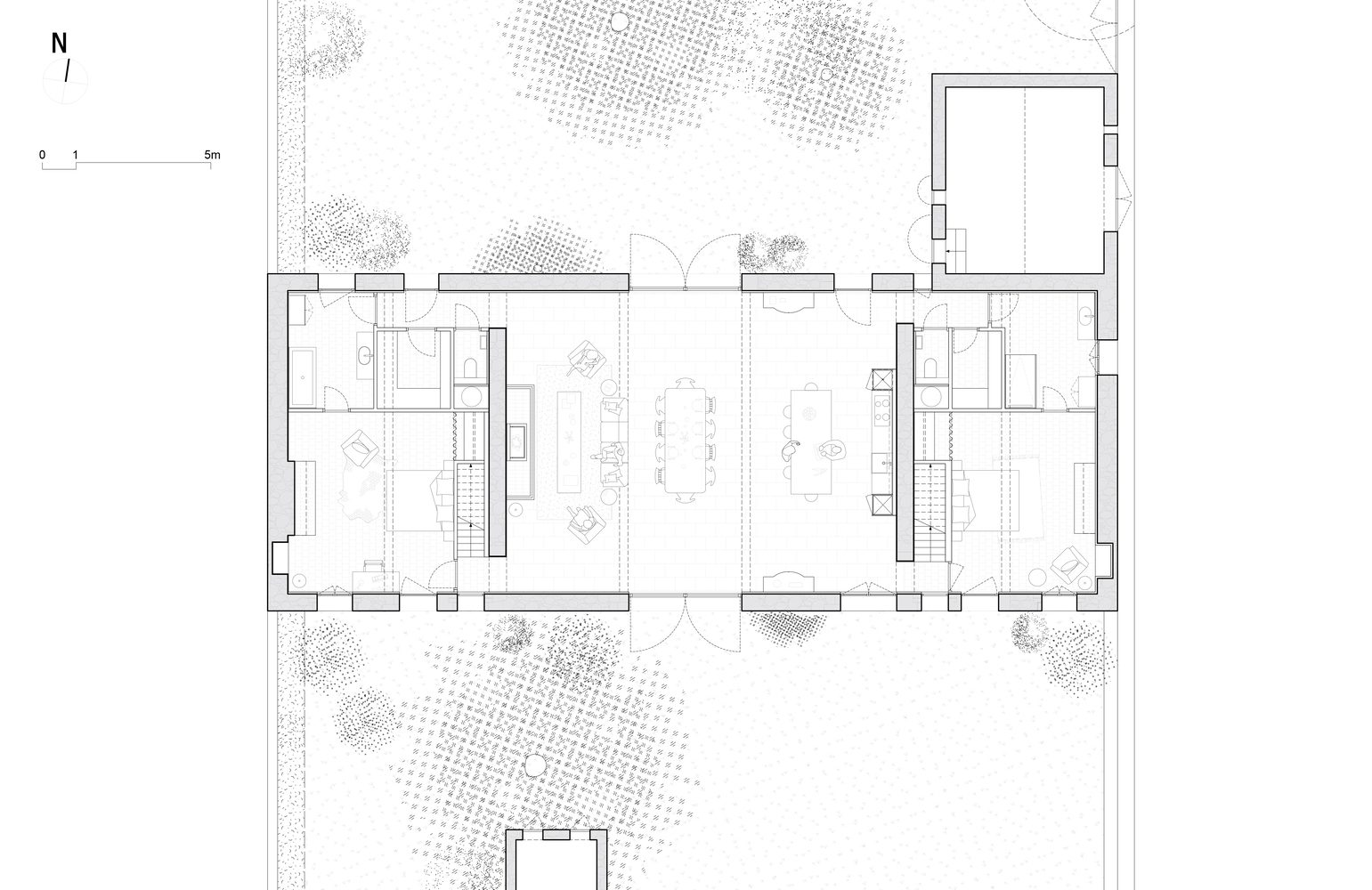
Ground Floor Plan – Completed State

The replacement of the roof tiles allowed for the integration of external insulation, making all the structural elements of the framework visible from the inside. A hemp concrete slab was installed over a ventilated crawl space and combined with breathable coverings (natural stone and terracotta tiles), allowing the floors to stop blocking the moisture that had previously risen into the facade walls. Once dry, these stone walls were coated with insulation made from lime and hemp and finished with a lime-sand mix. This resulted in healthy walls that provided better hygrothermal comfort inside while showcasing a raw and warm surface.

Chamboirat

Model

Transforming this farm building into a gathering place required creating a large central space where the whole family could come together. We therefore removed the stable wall that divided the central area in two, allowing for an open volume that encompasses the shared spaces: kitchen, dining room, and living room. To open this area to the back garden, we created a large opening in the north facade, mirroring the existing gateway on the south facade. This new aperture was constructed with cut stone jambs and large solid oak lintels. Outside, the only modifications to the facades were the addition of white wooden shutters and glazed oak windows, while the existing outer coatings and exposed stones were intentionally left as they were. A range of targeted actions allowed us to provide the edifice with longevity and comfort without betraying its nature.

Project Info:

 COVE Architectes
Arch2O.com
Logo
Send this to a friend