CATL Zero-Carbon Teahouse Xiadang | HATCH Architects
To tackle the global climate crisis and achieve China’s “dual-carbon” goals, CATL has shifted its focus from the remarkable achievements in the field of new energy batteries to creating green, intelligent, and livable urban environments. The Möbius strip, a symbol of perpetual cycles, inspired the teahouse’s design. Unlike passive energy-saving techniques, this project actively empowers the building with advanced new energy and intelligent interconnectivity technologies.
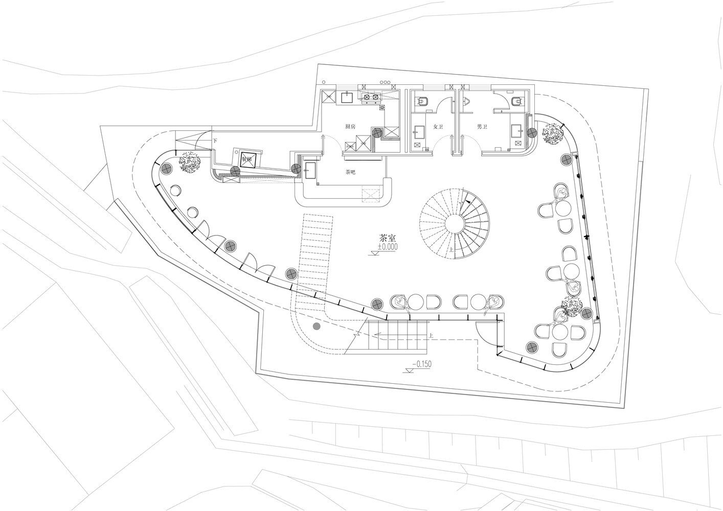
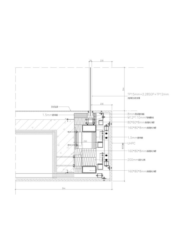
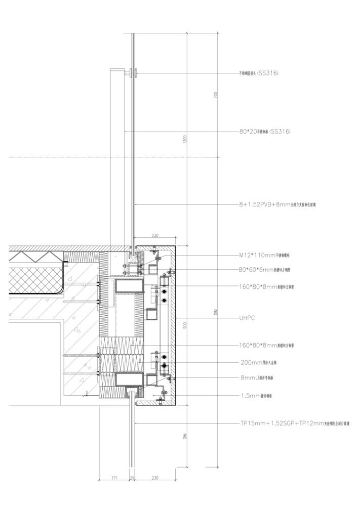
The entire structure utilizes BIPV (Building Integrated Photovoltaics), enabling full-cycle green power supply within limited space. The precision of photovoltaic panel alignment with the roof’s curves ensures visual harmony. With materials like ultra-clear glass and UHPC (Ultra-High-Performance Concrete), the design achieves transparency and energy efficiency.
Meanwhile, the intelligent charging station at the foot of the mountain provides bi-directional car-to-grid functionality, enabling vehicles to discharge power back to the teahouse. This maximizes energy use efficiency. With an annual power output of approximately 55,000 kWh, the teahouse reduces CO₂ emissions by about 54.8 tons, equivalent to planting 3,000 trees every year.
The zero-carbon teahouse stands out against the surrounding rural architecture, creating sharp contrasts in materials, colors, and textures. However, as visitors ascend the spiraling pathway to the rooftop, they are greeted by an unparalleled sense of harmony.
The two-story structure comprises a tea bar, tea culture exchange area, and a scenic leisure space, each offering spectacular views. The elegant curves run through the entire space, seamlessly integrating the architecture with the interior design and ensuring the unity of the overall concept. The panoramic glass walls allow villagers and visitors to view each other, forming a mutual appreciation.
HATCH co-founder David Wei remarked, “The zero-carbon teahouse is not just a trendy building; it serves as a connector that tightly links the surrounding villages, distant mountains, renewable energy, tourist experiences, and local lifestyles into a cohesive narrative of sustainable mountain living.”
Project Info:
-
Architects: HATCH Architects
- Country: Ningde, China
- Area: 467 m²
- Year: 2024
-
Photographs: Fangfang Tian
-
Manufacturers: Amazing Energy Technology (Hangzhou) Co., Wuhu Dingfu Landscape Material Co., Ltd.
-
Lead Architects: David Wei



































