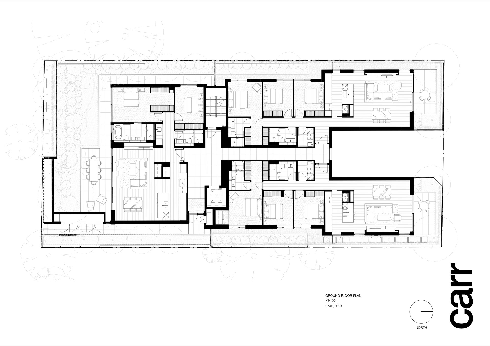
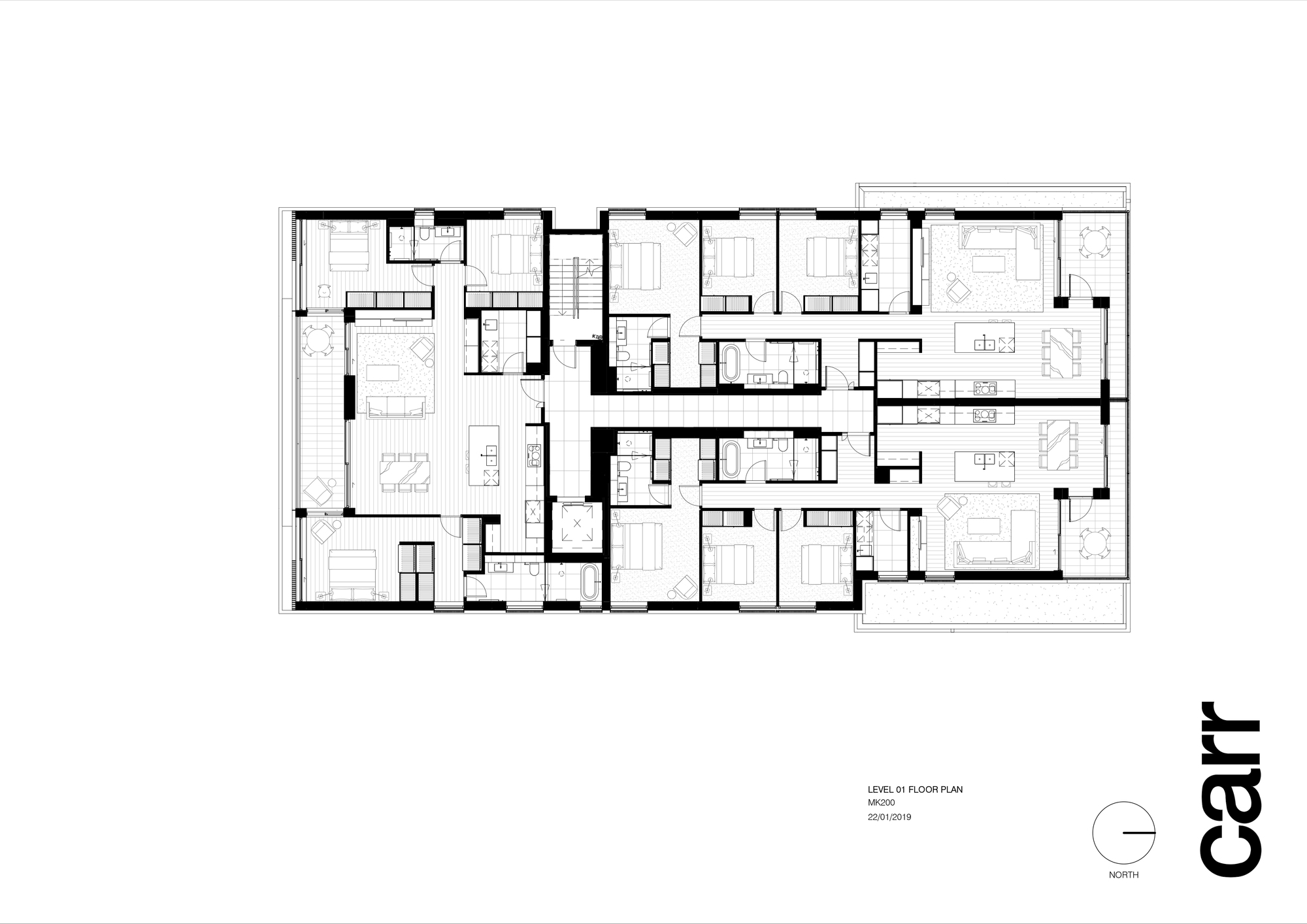
Set in the Melbourne suburb of Toorak, Carter is a small-scale multi-residential project featuring eight apartments – each generous in their size for comfortable living. From the street, Carter Toorak blends harmoniously to the scale of the surrounding suburb, while a strong linear-banded concrete façade provides order and sets the tone. Ample greenery has then been integrated to soften the boldness of the concrete. Scale and proportion on Carter Toorak were key considerations in ensuring the project would sit comfortably in the existing urban fabric.
The monochromatic palette of concrete and bronze metal speaks to a contemporary yet timeless aesthetic. Carr was appointed to work across both the architecture and the interiors, which has resulted in an effortless cohesion from inside to out. Each of the residences has been carefully crafted with a sophisticated touch, ensuring that the building will endure.
The interiors are defined by a sense of calm, which is evident in the neutral palette. “By combining natural finishes like timber, marble, and glass, the interiors of Carter bring a layered complexity that still feels harmonious,” says Carr director Chris McCue.
The natural stone stands out as a luxurious feature in the kitchen, bathrooms, and fireplaces, while cabinetry is offset by bronze touches. Greenery and connection to nature were important consideration at Carter and a flowing indoor-outdoor relationship has been created through floor to ceiling windows and verdant landscaping, carried out in partnership with Acre. From the street through to each apartment, Carter Toorak is a project that brings liveability in an utterly contemporary building.
Project Info
Architects: Carr
Year: 2020
Country: Toorak, Australia
Photographs: Timothy Kaye
Manufacturers: Miele, Axus, Dulux, George Fethers, Havwoods, Lord White, Rockcote
Landscape: Acre
Design Team: Chris McCue, Samantha Stefanou, Lucy Cuthbertson, Christine Green, Lawrence Rocha, Zoe Buchanan
Clients: Grange ROC Property


















Isabelle Laurent is a Built Projects Editor at Arch2O, recognized for her editorial insight and passion for contemporary architecture. She holds a Master’s in Architectural Theory from École Nationale Supérieure d’Architecture de Paris-Belleville. Before joining Arch2O in 2016, she worked in a Paris-based architectural office and taught as a faculty adjunct at the École Spéciale d’Architecture in Paris. Isabelle focuses on curating projects around sustainability, adaptive reuse, and urban resilience. With a background in design and communication, she brings clarity to complex ideas and plays a key role in shaping Arch2O’s editorial

