The design team of EDGE Studio worked with the Carnegie Library of Pittsburgh to fully renovate the existing 1967 facility and provide an addition which facilitates a complete reorganization of library services.
The existing building was completely transformed by removing its un-insulated, single glazed envelope and expanding the structure to enlarge the facility and provide a greater visual presence when approached from all nearby streets. The new exterior wall of Carnegie Library of Pittsburgh assembly helps to provide for a highly sustainable building with a thermally superior envelope.
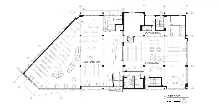
The interior space was reorganized to locate all of the main Carnegie library of Pittsburgh services, including adult, teen and children’s department services on a single floor with maximum staff sight lines to minimize staffing requirements. Accessibility, both physical and visual, is important to the visitor experience.
A welcoming environment to a diverse customer base and strong wayfinding so that all visitors can orient themselves to the space immediately upon entry ensures that services are readily perceived.
Project Info :
Architects : EDGE Studio
Project Year : 2010
Photographs : Ed Massery
Project Location : Pittsburgh, PA, USA
Area : 33,000 sf renovation / 9,000 sf
Project Team Anne Chen AIA LEED AP, Jonathan Eggert AIA, Amanda Markovic, Stephen Mrdjenovich, Matthew Manzo












Tags: Carnegie LibraryCarnegie Library of PittsburghCultural ArchitectureEDGE StudioLibraryPittsburghPublic LibraryUnited StatesUSA
