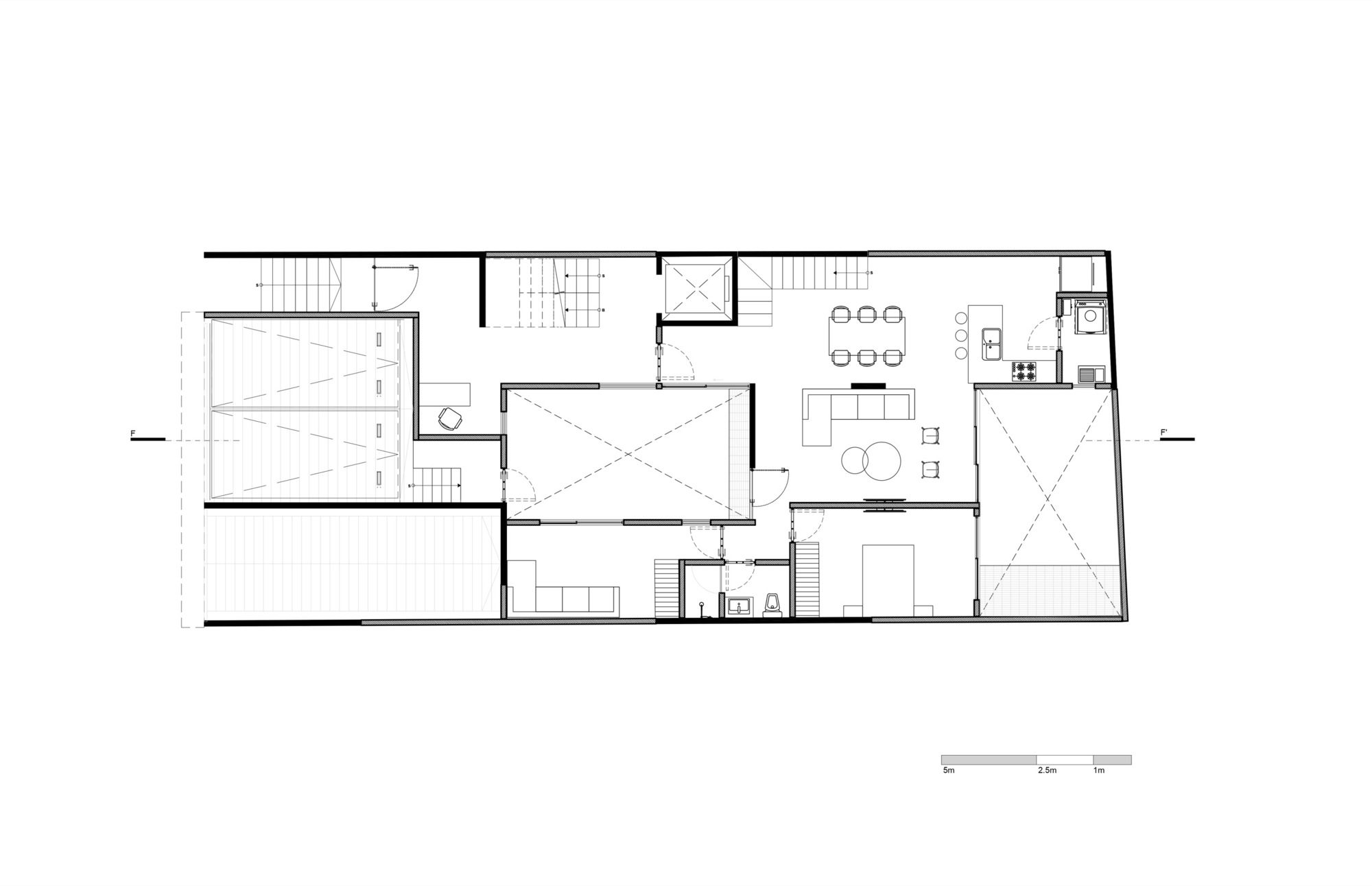
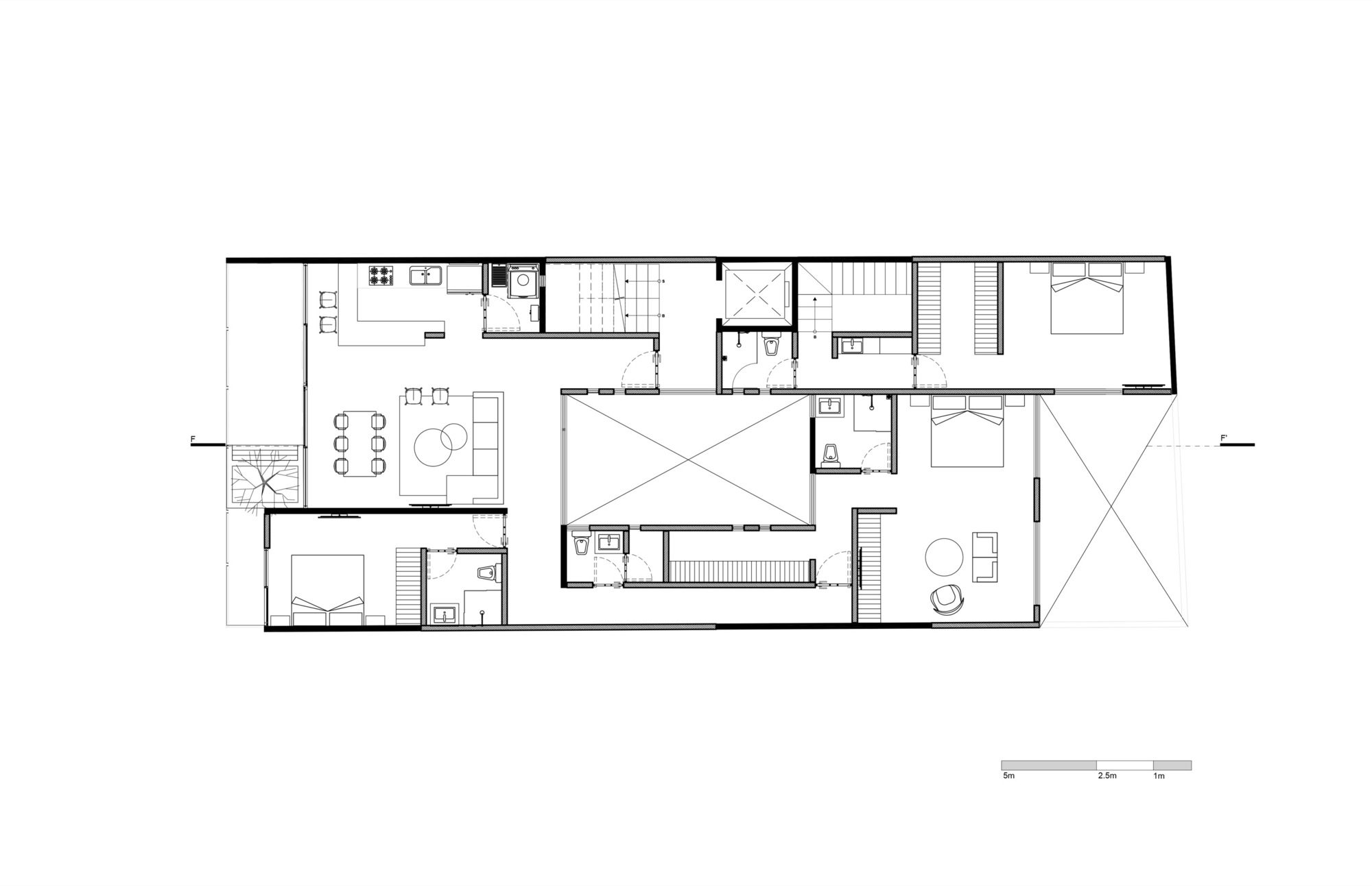
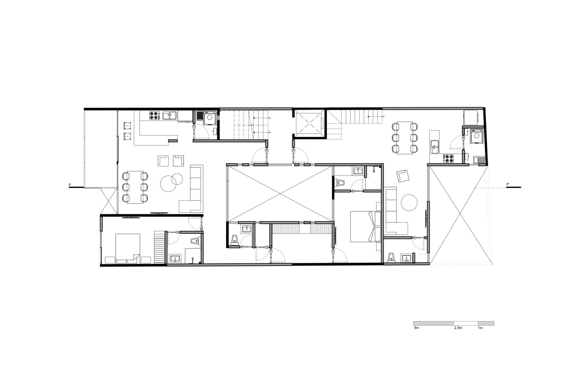
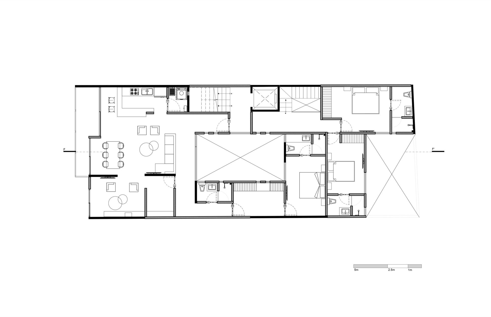
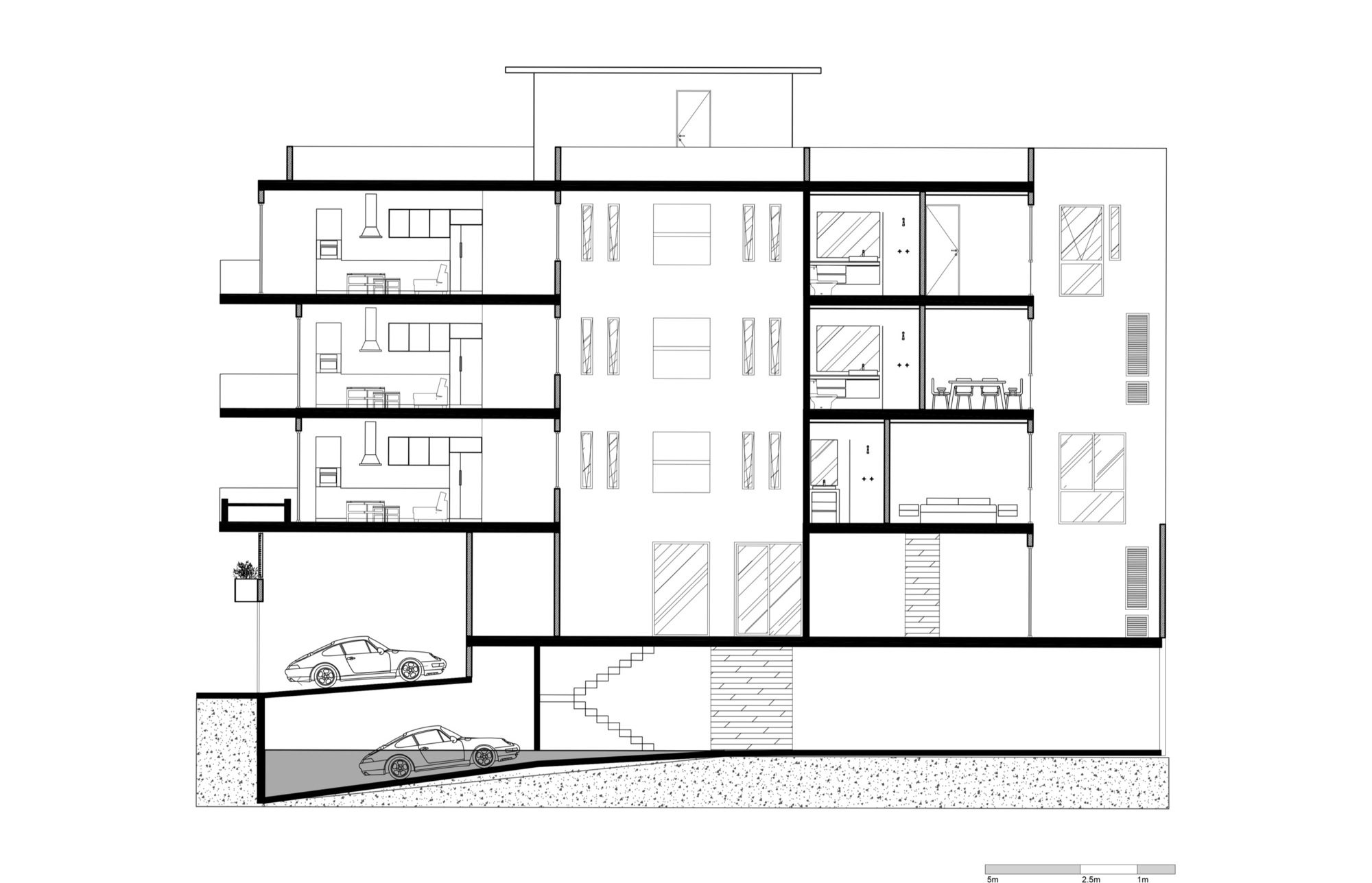
Capulin 59 Residential Building is a boutique residential building located in one of the best areas in Colonia del Valle, Mexico City. The 240 sqm land where the property was built, located in front of a small park, has a rectangular shape with 10 meters street front.
The building comprises 5 apartment units, 3 facing the exterior and 2 interior townhouses with private terraces.
The façade of the building is irregular and is divided by a tree planted in one of the apartments that reaches a double height. Materials include: black steel, marble, concrete, wood, and greenery.
Low maintenance materials such as concrete and marble are essential for this conceptualization and match well with the lightning, structure, and simplicity of the interior design.
Project Info
Architects: ArquiPartners
Country: Mexico, Ciudad de México
Area: 900 m²
Year: 2018
Photographs: Mauricio Salas + Cesar Castañedo
Other Participants / Collaborators: Omar Rodríguez Paredes, Victor Reyes Arenas
Collaborators Architects: Diego Ortiz Franyuti, Herreria
Structural Project: Ing. Sergio Barrios Bautista, Clinker
Architects In Charge: Rubén Rodríguez Paredes, Omar Rodriguez Paredes, Diego Diaz Cebado, Marisol Dorantes Castro



















Tags: 2018ArquiPartnersCapulin 59 Residential BuildingCiudad de MéxicoMauricio Salas + Cesar CastañedoMexico
Anastasia Andreieva is an accomplished Architectural Projects Editor at Arch2O, bringing a unique blend of linguistic expertise and design enthusiasm to the team. Born and raised in Ukraine, she holds a Master’s degree in Languages from Taras Shevchenko National University of Kyiv. Her deep passion for architecture and visual storytelling led her to transition from translation and editorial roles into the world of design media. With a keen eye for conceptual clarity and narrative structure, Anastasia curates and presents global architectural projects with precision and flair. She is particularly drawn to parametric and digital design, cultural context, and emerging voices in architecture. When I’m not analyzing the latest architectural trends, you’ll probably find me searching for hidden gems in cityscapes or appreciating the beauty of well-crafted spaces. After all, great design—like great connections—can be found in the most unexpected places. Speaking of connections, because architecture isn’t the only thing that brings people together.
