Captial International Exhibition and Convention Center | Zaha Hadid Architects + BIAD

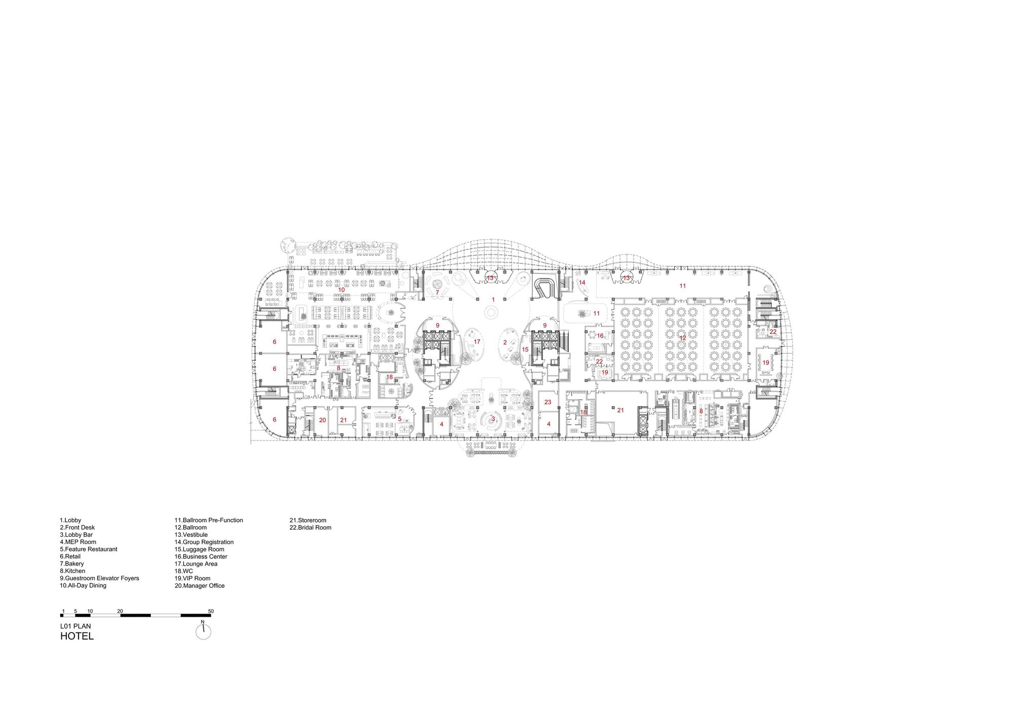
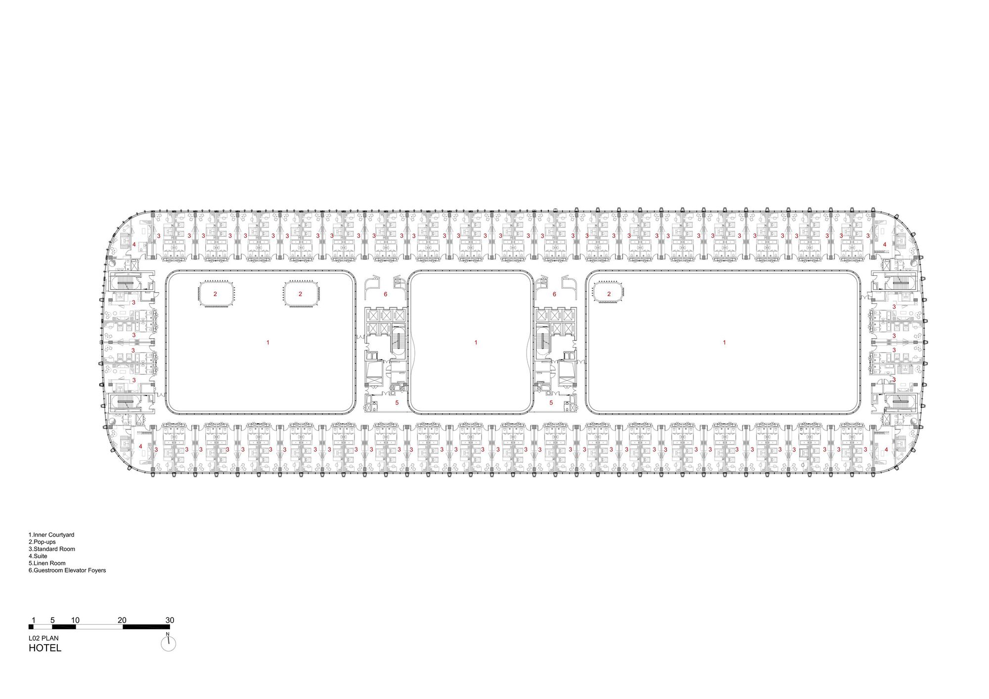
CIECC “Captial International Exhibition and Convention Center” expands Beijing’s existing exhibition venue to over 611,000 sqm. Providing nine new exhibition halls, three reception halls, a conference center for 9,000 delegates and a hotel with 410 rooms. CIECC’s modular fabrication and construction minimized the center’s development time, investment and operational costs.

Captial International Exhibition and Convention Center

© Virgile Simon Bertrand

A leading center of commerce, culture and government, Beijing has seen significant growth in the city’s service and digital technology industries. This continued expansion of Beijing’s corporate sectors has increased demand for the city to host conventions, international conferences and industry expos attended by delegates from throughout China and around the world.

Captial International Exhibition and Convention Center

© Virgile Simon Bertrand

Meeting this growth, the new Capital International Exhibition & Convention Center (CIECC) by Zaha Hadid Architects is Beijing’s largest and most advanced exhibition and convention venue; expanding the city’s existing facility to over 611,000 sq. m with nine new exhibition halls as well as three new reception halls, a conference center for 9,000 delegates and a hotel with 410 rooms.

Captial International Exhibition and Convention Center

Typical Floor Plan Hotel 2

Located on Line 15 of the Beijing Subway network within the city’s Shunyi District adjacent to Capital International Airport, the CIECC’s central north-south axis serves as the primary connector between the nine exhibition halls; providing navigational clarity, maximum flexibility and efficiency, as well as creating a central courtyard and gathering place within sheltered outdoor event spaces and landscaped gardens.

Captial International Exhibition and Convention Center

© Virgile Simon Bertrand

Conceived as ‘ribbons’ that weave together all the new facilities, bridges above this central courtyard also connect the exhibition halls, conference center and hotel, to provide indoor circulation between event spaces. The conference center and hotel are located to the north of the site, defining a new public square for exhibitions and events. The movement of people, goods, and vehicles throughout the CIECC is divided into three distinct routes to aid circulation, provide optimal adaptability and avoid disruption to different concurring events.

Captial International Exhibition and Convention Center

© Virgile Simon Bertrand

The CIECC’s composite roof system of symmetric geometries creates an insulated, lightweight, large-span structure providing column-free spaces that can be quickly adapted to changes in exhibitions and nature of use. This modular fabrication and construction minimized the center’s development time, investment, and operational costs. The center’s fluid architectural language and pleated, deep copper-colored façade incorporating large, recessed windows, have been designed to balance the CIECC’s immense industrial scale and materiality.

Captial International Exhibition and Convention Center

© Virgile Simon Bertrand

Achieving the highest certification of China’s Green Building Program, the center uses smart building management systems with hybrid ventilation, ensuring optimum natural ventilation supported by high-efficiency HVAC equipment to enhance indoor air quality and minimize energy consumption. Rainwater collection throughout CIECC’s extensive footprint, grey water recycling, and photovoltaics for on-site energy generation will reduce water and energy demand from the city’s municipal supply.

Captial International Exhibition and Convention Center

© Virgile Simon Bertrand

Project Info:

  • Country: China
  • Year: 2025
  • Structural Engineers: Beijing Institute of Architectural Design
  • MEP Consultants: Beijing Institute of Architectural Design
  • Transport Consultant: Parking Management Organisation
  • Landscape Consultant: Ecoland
  • Design: Patrik Schumacher
  • Zha Project Directors: atoshi Ohashi, Paulo Flores
  • Zha Project Associates: Di Ding, Martin Pfleger, Clara Martins
  • Zha Project Leads: Leo Alves, I-Chun Lin, Eduardo Camarena, Juan Montiel
  • Zha Site Team: Di Ding, I-Chun Lin
  • Zha Project Team: Satoshi Ohashi, Paulo Flores, Yang Jingwen, Di Ding, Cristiano Ceccato, Martin Pfleger, Clara Martins, Leo Alves, I-Chun Lin, Eduardo Camarena, Juan Montiel, Yihui Wu, Cristina Barrios Cabrera, Chen Lian, Dilara Yurttas, Felix Amiss, Gaoqi Lou, Hao Yang, Haotian Man, Huiyuan Li, Shuaiwei Li, John Kanakas, Kate Hunter, Nessma Al Ghoussein, Qiren Lu, Thomas Bagnoli, Meysam Ehsanian, Yushan Chen, Zhe Zhong, Xinying Zhang
  • Zha Competition Project Directors: Satoshi Ohashi, Paulo Flores
  • Zha Competition Associates: Yang Jingwen, Michail Desyllas
  • Zha Competition Project Architect: Di Ding
  • Zha Competition Team: Satoshi Ohashi, Paulo Flores, Yang Jingwen, Di Ding, Michail Desyllas, Eduardo Camarena, Enoch Kolo, Che-Hung Chien, Felix Amiss, Genci Sulo, I- Chun Lin, Jiaxing Lu, Juan Liu, Mariana Custodio dos Santos, Meng Zhao, Michael On, Nastasja Mitrovic, Nicolas Tornero, Ying Xia, Zheng Xu
  • Local Architect: Beijing Institute of Architectural Design, Beijing BIAD Decoration Engineering and Design CO., LTD (Conference Center Interior), Beijing E.Scene Art Design Co. LTD (Exhibition Interior), Cheng Chung Design (Hotel Interior)
  • Lighting Design: Toryo International Lighting Design Center
  • Site Supervision: CCAT
  • Urban Planning: AECOM
  • Conceptual Scheme And The Design Phase For Deepening The Scheme: ZHA, BIAD, AECOM
  • Preliminary Design And Construction Drawing Design: BIAD
  • General Contractor : China Construction Second Engineering Bureau Ltd., Beijing Construction Engineering Group
  • Executive Architect: Beijing Institute of Architectural Design
  • Façade Engineering: China Academy of Building Research
  • Fire Engineer: Tianjin Taida Fire Science and Technology LTD
BIAD
Arch2O.com
Logo
Send this to a friend