Cangzhou Mingzhu International Clothing Industry Characteristic Town’s Service Community | y.ad studio
Cangzhou Mingzhu International Clothing Industry Characteristic Town’s Service Community
Project Background
After the Beijing-Tianjin-Hebei Integrated Development Outline Plan was upgraded to China’s national development plan, Beijing’s non-capital functions have been transferred outwards, with the clothing wholesale and processing industries bearing the brunt. Under such background, Cangzhou Dongsu Group took advantage of Cangzhou’s geographical advantages to invest in the construction of Mingzhu Trade City and Mingzhu International Clothing Industry Characteristic Town. The whole industry chain has undertaken the pressure from Beijing’s Clothing Industry and even transformed and upgraded on top of it, trying to create a new business operation model that integrates design and development, production and processing, wholesale and retail, warehousing and logistics, e-commerce, entertainment and leisure.
This project is located in the Mingzhu International Clothing Industry Characteristic Town of Cangdong Economic Development Zone. The project has been fully launched. It has undertaken the entire industrial chain of R&D, design, processing, and sales of Beijing clothing industry. At the same time, it has also established a clothing research institute and a clothing design institute. Cangdong Development Zone has obvious advantages in this process because there is a lot of unused and undeveloped saline land and it has very convenient transportation. The entire town is dominated by the clothing industry featuring the smart manufacturing. The goal is to form a professional clothing industry cluster that integrates industry aggregation and services, industrial park development, clothing design research and development, one-stop sourcing of materials and accessories, financial services,logistics services, marketing services, branding, and exhibition services.
Proper Design Principles
In the initial site survey, the client took us to the site and some completed projects. The client was against relying on too much purely decorations or expensive materials to create spaces and scenes like some other typical real estate projects. They did not want us to deliberately build an “internet-famous spot” or “landmark” by creating catchy architectural form or spaces. Instead, the client team hoped us to approach the design based on functionality and actual situations while avoiding excessive pursuit of perfectionism of materials or craftsmanship. We were asked to figure out an appropriate solution, and to define the space through the design, aesthetic and atmosphere. They also imagined this building as a “starting point” to create an open, friendly, natural and attractive public space for communication, leisure and exhibition, which can then extend to the entire industrial park. These ideas are perfectly aligned with the design philosophy of our studio. We adhere to and practice the design principles of “staying thrifty, restraint and integrated, pursuing reality, daily life and natural beauty, and ensuring proper design based on actual conditions”.
Open Space/ Three-dimensional Co
mmunity
There was an existing R&D office building in the southwest corner of the site, which had re-shaped the site from the original square to an L-shaped one. Therefore, we needed to not only consider the formal relationship between the existing building and new buildings, but also take care of the circulation between them. Since the volume and height of the existing building are not small, we placed the tallest volume in the corresponding northeast corner to balance the overall architectural form of the entire building cluster.
In terms of spatial organization, we stacked the functional spaces, living communities and supporting services with an open entry as connection. We intended to create a three-dimensional composite space, where commercial, exhibition, working, living and leisure functions can be integrated into one so as to achieve an ideal scenario of coexistence.
Inward Courtyard / Solid vs. Void
To avoid making the whole building cluster too bulky, we tried to construct the space through stagger and intersection of volumes and meanwhile, create many courtyards and open spaces between the building masses. The shift of the solid and void functions as the thread of the spatial narrative, and the in-between spaces enable natural transition between different functional blocks and courtyards.
Light, Shadows and Structure
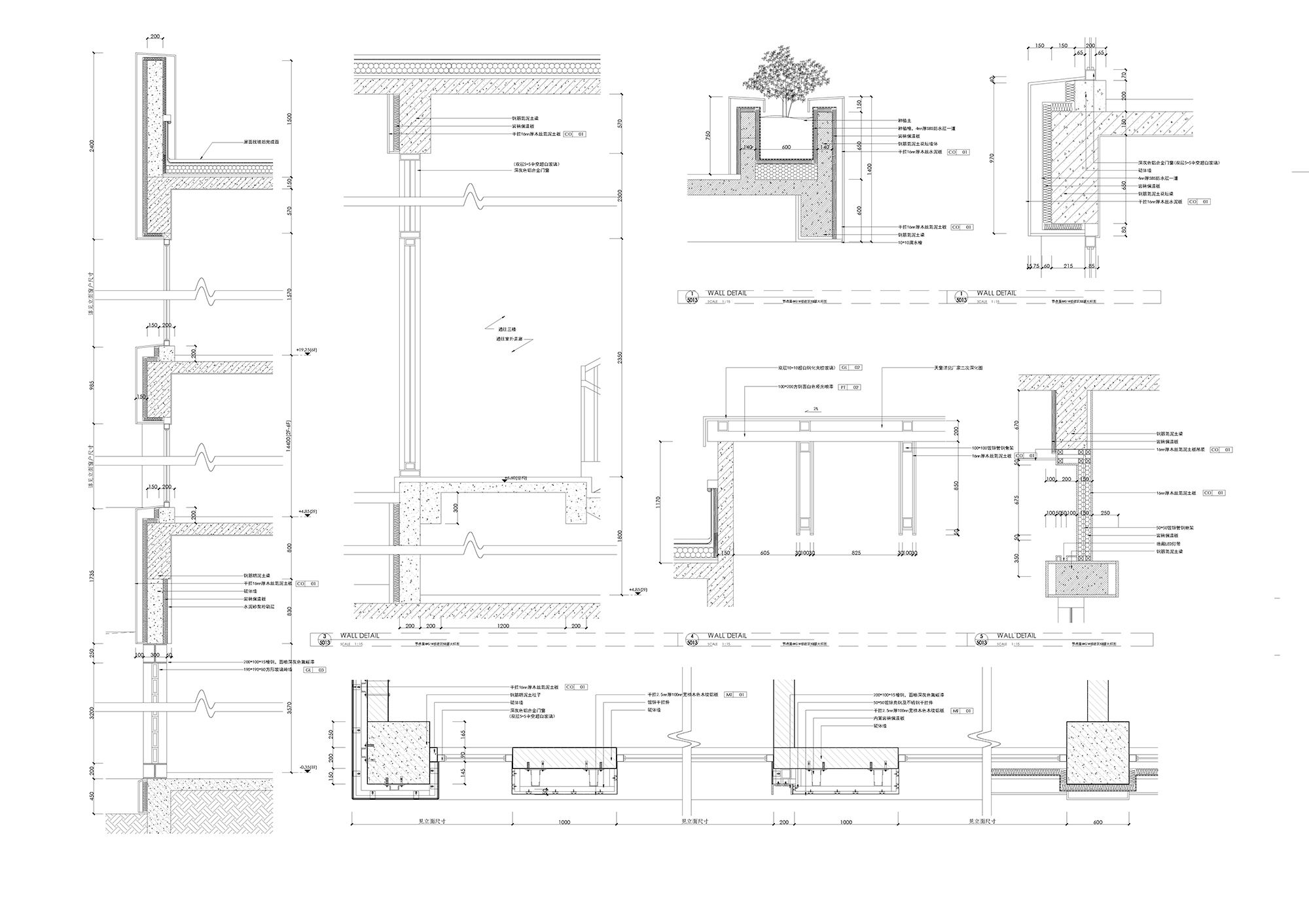
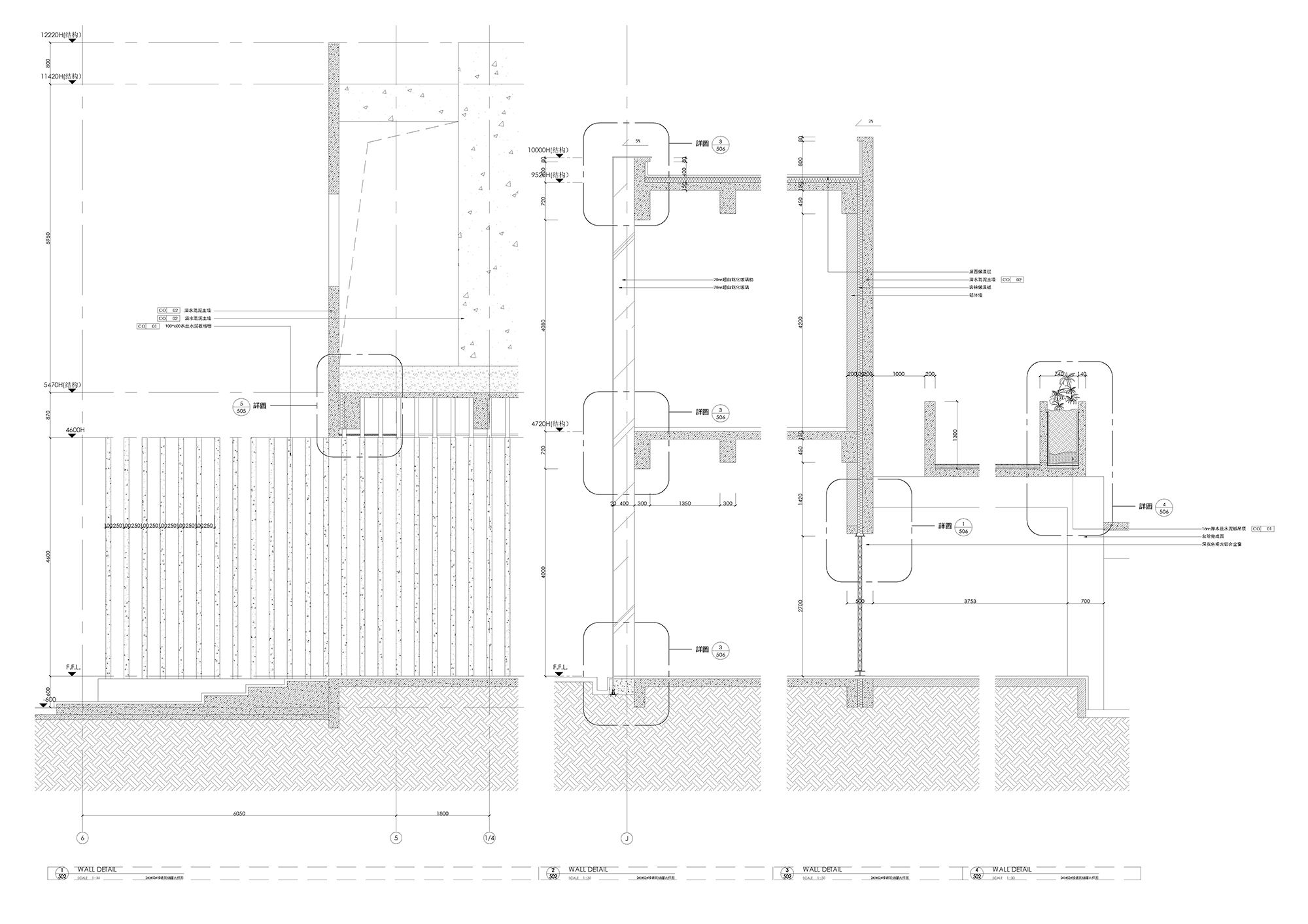
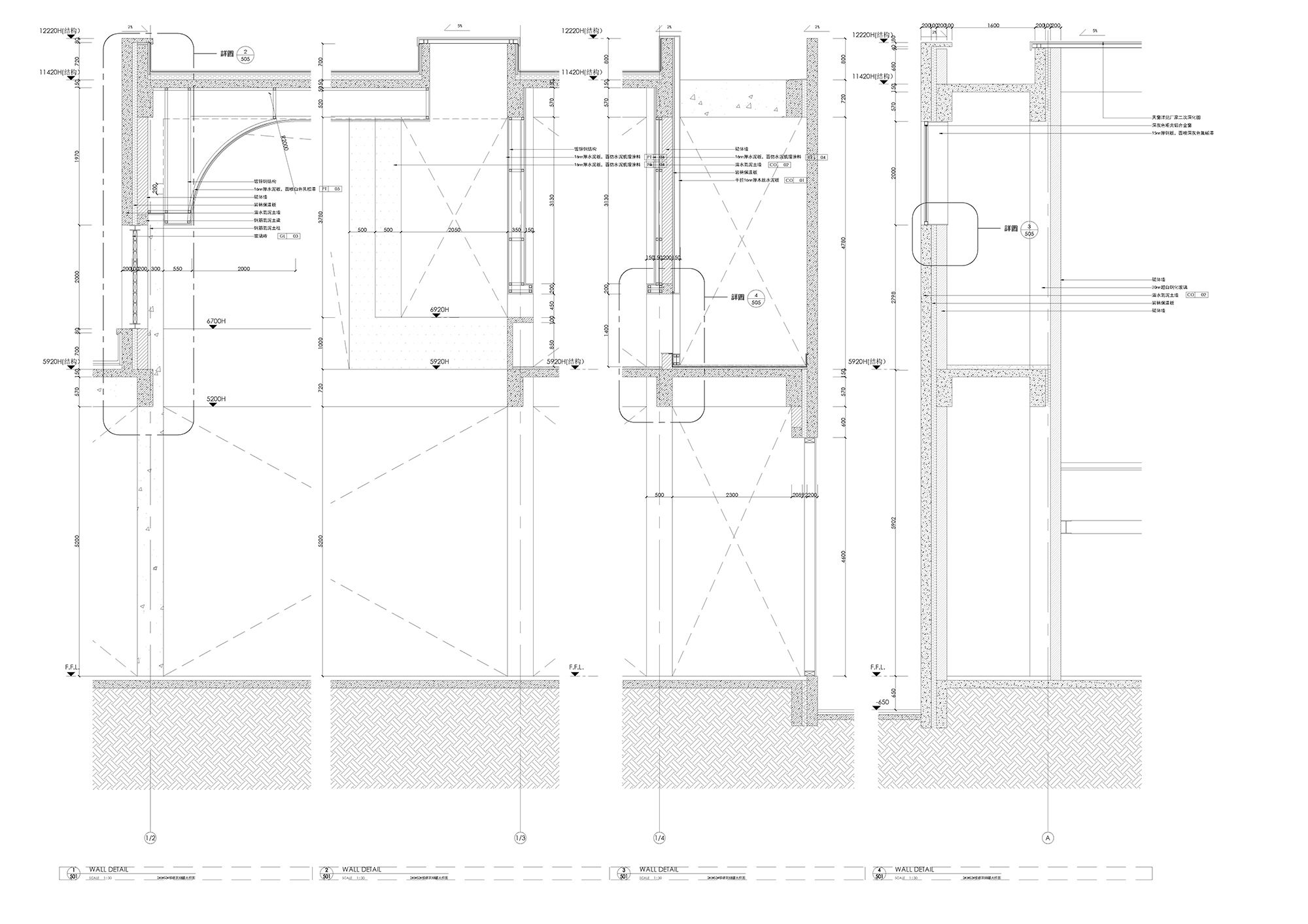
Reality is an important concept that we wanted to implement throughout the design. We abandoned the excessive decoration and pursued the true presentation of materials and spaces. We also tried to make sure the process was as clear as possible from the functional space distribution in the early stage to the final construction to prevent waste from modification or duplication. Starting from selecting simple and modest materials such as fair-faced concrete, we also wanted to avoid too many decorative surfaces so that one-time molding can be achieved. Due to the overall design of the interior and exterior of the building, different types of professions, like structure, MEP and architectural design, can be integrated as much as possible. The structure is almost completely exposed to display its beauty. Natural light and shadows also help shape the space.
Project Info:
Architects: y.ad studio
Location: Cangzhou, China
Area: 26667 m²
Project Year: 2020
Photographs: Lotan Architectural Photography
Manufacturers: Viva, 桃花江, 瑞奥格斯




















































