Bunkeren House, The purpose of the house design is to arrive at a garden and the coastal landscape . The house bookends the garden as the headlands do the beach. The climatic benefit derived of integration with the landscape meant the house is half buried for climatic stability, bushfire protection and increased habitat and biodiversity. The house has hovering platforms of earth and planting. The site is more landscape than house and the robustness of concrete endures the interaction with the surroundings.
The house is cast into an amphitheatre of conglomerate rock on a linear arc. The planning is inspired by the broader headland buttresses and embayment formation of coastal geology.
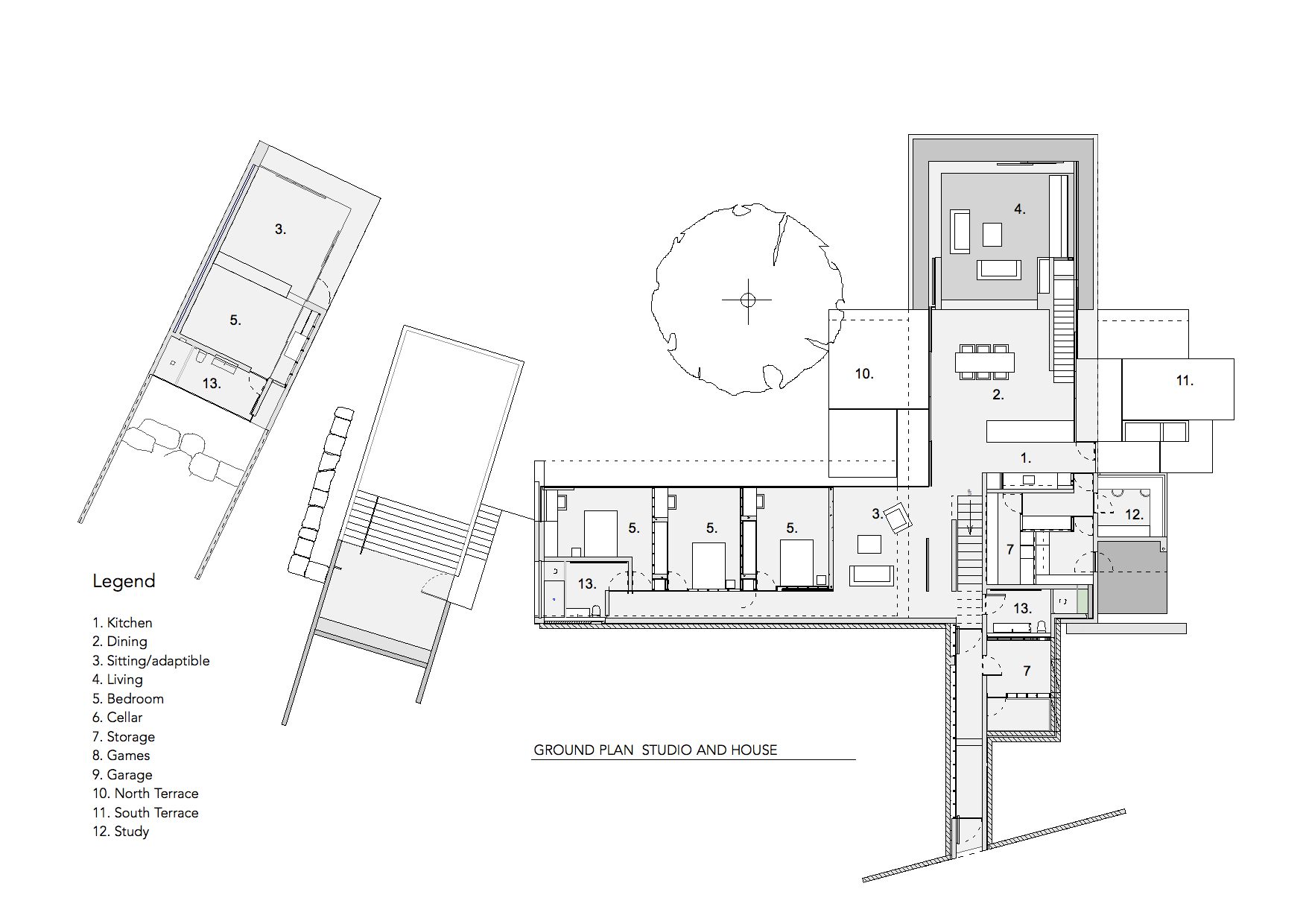
Conceived as a series of raised earthen platforms, the proposal is planned with landscape terminating each axis and with light and ventilation through separation of these platforms from the room volumes by post tensioned concrete cantilevers.
The house is defined by its submersion and integrated into the hillside to allow the coastal headland and embayment formation to dominate the experience of the site. Arrival at the house means arrival at a landscape.
The landscape is planted with 15 endemic species to support wildlife in particular bird life, enabling the natural world to grow over and around the work.
Project Info
Architects: James Stockwell Architect
Country: Australia, Whitebridge
Area: 450 m²
Year: 2022
Photographs: Tony Marshall
Lead Team: James Stockwell
Design Team: Sue Harper
General Constructing: QMF Concrete
Engineering & Consulting > Structural: PMI Engineers





















Anastasia Andreieva is an accomplished Architectural Projects Editor at Arch2O, bringing a unique blend of linguistic expertise and design enthusiasm to the team. Born and raised in Ukraine, she holds a Master’s degree in Languages from Taras Shevchenko National University of Kyiv. Her deep passion for architecture and visual storytelling led her to transition from translation and editorial roles into the world of design media. With a keen eye for conceptual clarity and narrative structure, Anastasia curates and presents global architectural projects with precision and flair. She is particularly drawn to parametric and digital design, cultural context, and emerging voices in architecture. When I’m not analyzing the latest architectural trends, you’ll probably find me searching for hidden gems in cityscapes or appreciating the beauty of well-crafted spaces. After all, great design—like great connections—can be found in the most unexpected places. Speaking of connections, because architecture isn’t the only thing that brings people together.





