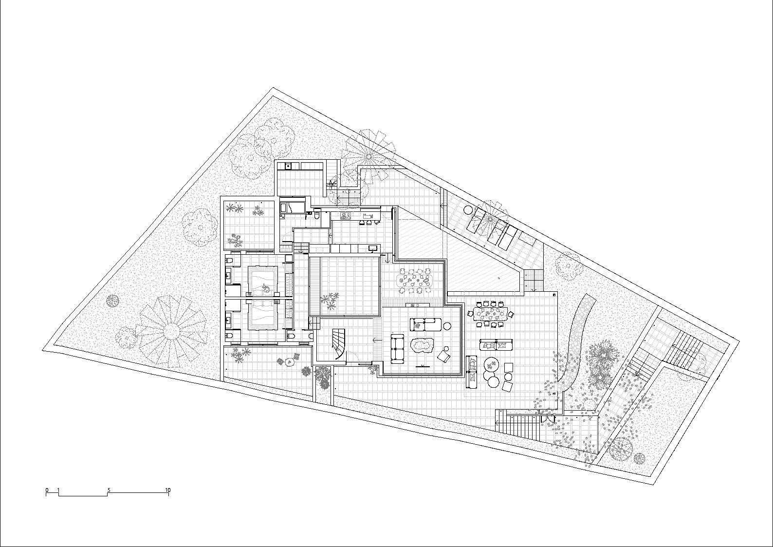
Bundle House, Nestled within an elongated trapezoidal plot, this villa of 350m2 boasts a design that ingeniously navigates the contours of its surroundings to offer unparalleled views of the Mediterranean Sea. Initially challenged by the site’s oblique orientation towards the sea, the architects strategically crafted open corners that unveil breathtaking sunset vistas, transforming initial difficulties into design opportunities. To harmonize with the natural surroundings, the design strategy involved subdividing the extensive program into nine rectangular volumes of varying heights, artfully stepping down the slope and weaving around majestic trees. The stair-like setbacks follow the plot’s trapezoidal shape, creating intimate pockets of privacy in the garden, seamlessly blending indoor and outdoor spaces.
Inside, a central 6×6 meter patio floods the interiors with natural light, bouncing off the double-height ceilings of the surrounding day areas. This courtyard, furnished with a built-in sofa and lounge puffs, serves as a versatile living space, offering shade and cross ventilation in summer and transforming into a wind-sheltered outdoor space during colder months. The innovative design allows for seamless integration of the porch, living area, and patio into a single expansive space, achieved by sliding open two corner full-height windows. Tactically positioned, these openings appear to challenge the laws of gravity, their cantilevered edges extending boldly to offer unfettered sea views as part of the interior experience. Leveraging the double-height geometry of the patio, they induce a natural chimney effect, drawing in fresh air and effectively cooling the interior. Additionally, tall volumes with low-positioned openings promote natural ventilation as warm air ascends, contributing to a comfortable indoor environment.
The architectural expression is defined by exposed concrete beams spanning between sturdy masonry walls and slender metal columns, forming an uninterrupted base of glazed facade that seamlessly links indoor and outdoor spaces. The villa’s geometry is modulated according to its construction technique, with ceramic vaulted ceilings and concrete blocks creating a cohesive design language. The light, sandy-colored facade harmonizes with the surroundings while keeping the interior cool. It is also complemented by local sandstone pavements mirroring the ceiling pattern of joists and vaults.
Indoors, a soft, earthy color palette and natural materials create an inviting atmosphere, with sandstone, ceramic, granite, and wood adding richness to the tactile and visual experience. In contrast to the minimalist facade, the interior showcases an abundance of textures, intricate patterns, and openly displayed construction methods. Upon entering the double-height hall, one is greeted by an abundance of daylight, while a sculptural metal curved stair spirals up, connecting both floors. The ground floor spaces flow effortlessly around the courtyard, while upstairs corridors transform into bright open halls, visually connected to other areas of the house. The ensuite bedrooms exude spaciousness, featuring open washbasins, large mirrors, and fluted-glass cabins for WC and shower. Wardrobes are designed as open cabinets with curtains, adding softness to the interior design and optimizing space utilization.
As the pool seamlessly merges with the architecture, it serves as an integral design feature that encircles the dining area, creating a captivating visual effect akin to dining amidst the tranquil embrace of water. A quirky, staggered stair leads to the rooftop terrace, offering stunning views towards Mallorca Island, completing this architectural masterpiece with a touch of whimsy and charm.
Project Info
Architects: Jennifer Mendez, Blanca Algarra
Country: Spain
Area: 350 m²
Year: 2024
Photographs: Adrià Goula
Manufacturers JUNG, Laufen, Technal, Aquitania Menorca, Bosch, Doméstico Shop, Franke, Roca, Sanycces, Siemens: JUNG
Project Leader: Karl Johan Nyqvist
Custom Made Furniture: Marmoles Sirerol SL






































Isabelle Laurent is a Built Projects Editor at Arch2O, recognized for her editorial insight and passion for contemporary architecture. She holds a Master’s in Architectural Theory from École Nationale Supérieure d’Architecture de Paris-Belleville. Before joining Arch2O in 2016, she worked in a Paris-based architectural office and taught as a faculty adjunct at the École Spéciale d’Architecture in Paris. Isabelle focuses on curating projects around sustainability, adaptive reuse, and urban resilience. With a background in design and communication, she brings clarity to complex ideas and plays a key role in shaping Arch2O’s editorial





