Bosjes Guesthouse & Spa | Meyer & Associates Architects + Urban Designers

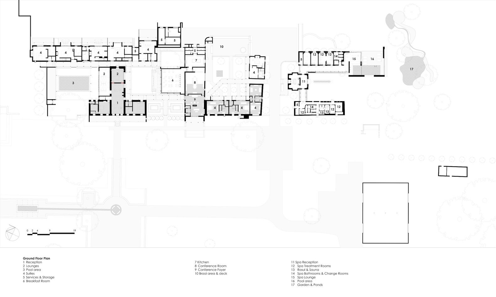
Bosjes Guesthouse and Spa is a reconfiguration of an old Cape Dutch farmstead outside of Worcester in South Africa. It is situated in the wine growing Breede River Valley, an hour and a half’s drive outside of Cape Town. The farm’s attractions also include the Bosjes Chapel designed by Steyn Studio, a restaurant, a large visitors garden, and a garden café and shop designed in collaboration with Steyn Studio. Lower down the farm is also the Botha’s Halte Primary School designed by Meyer & Associates. Dating back to 1790, the Bosjes Farm Herehuis (manor house) sits at the foot of the Waaihoek mountains, with its characteristic Cape Dutch gable addressing the valley. Beside it, arranged along the contour are Schuur (historical barn) and Stalle (historical horse stables) buildings – a typical arrangement of Cape Dutch farms.

Bosjes Guesthouse

© Claire Gunn

To respect the historical Cape Dutch façade, the new additions were positioned behind the farmstead. Spatially, the linear configuration of the historical buildings was extended North and South, together with an arrangement of courtyards that shelter from the region’s harsh winds and allow unobstructed views of the mountains. The historical Herehuis accommodates a new reception and front-of-house functions for the guesthouse, including a library and sun lounge. Several historical elements were protected, such as the old yellowwood Cape Dutch front door, which retains a domestic scale and welcoming aura.

Bosjes Guesthouse

Floor Plan

A wing of guest suites behind the historical Herehuis is clad in dark corrugated sheeting, that defers hierarchically to the white plastered architecture of the Herehuis, and references rural agricultural buildings across the region. The client’s collection of work by South African artists is on display in the public, shared spaces, including specially commissioned works such as the wall-mounted concrete and brass installation, by architect artist Lorenzo Nassimbeni. The Breakfast Room, one of the most public spaces, is expressed as a steel frame glass box sunken under a large coral tree in one of the courtyards, and screened from the suites by planting.

Bosjes Guesthouse

© Claire Gunn

The old Stalle (stables), the end building of the historical complex, was reconfigured and significantly extended to serve as a spa. The extension’s design reinterprets the quiet, low-slung architecture of the original building in a contemporary idiom. References to the building and its typology are made in the treatment rooms’ barn doors, a reconstructed water trough and a klompie (traditional thin brick) clad entrance vault and floors. At the end of the spa’s new wing is a lounge that transitions out into a sheltered courtyard, both of which open up on the Eastern edge to frame the mountains above. A pool runs inside out along the lounge and courtyard’s Western edge, with a low opening that provides swimmers with a view of the mountains across the valley. The spatial progression of the spa terminates in a new indigenous experiential garden with water ponds, designed by celebrated landscape designer Franchesca Watson.

Project Info:

 Meyer & Associates Architects & Urban Designers
Arch2O.com
Logo