Boreas Building, Pichincha Neighborhood is a low-density area of Rosario, in full development and exceptionally located. This urban site is under a master plan (named after the neighborhood), which in order to preserve its heritage and urban scale restricts the maximum heights of new buildings. Asa consequence, apartment building construction is restricted and the existing buildings are started to be rented for other uses pursuant to the new regulations.
The proliferation of dining venues and nightclubs immediately changes the neighborhood appearance and gives it a particularly heterogeneous character as well as an uncertain future.
In this context, an abandoned structure on a garage in use is to be transformed into a rental apartment house with the aim of obtaining the highest revenue possible from an existing construction with a low budget investment. Having in mind the prevailing uncertainty and heterogeneity of these surroundings, we propose an ambiguous and flexible building, taking advantage of the possibilities that the open-plan of the existing structure offers.
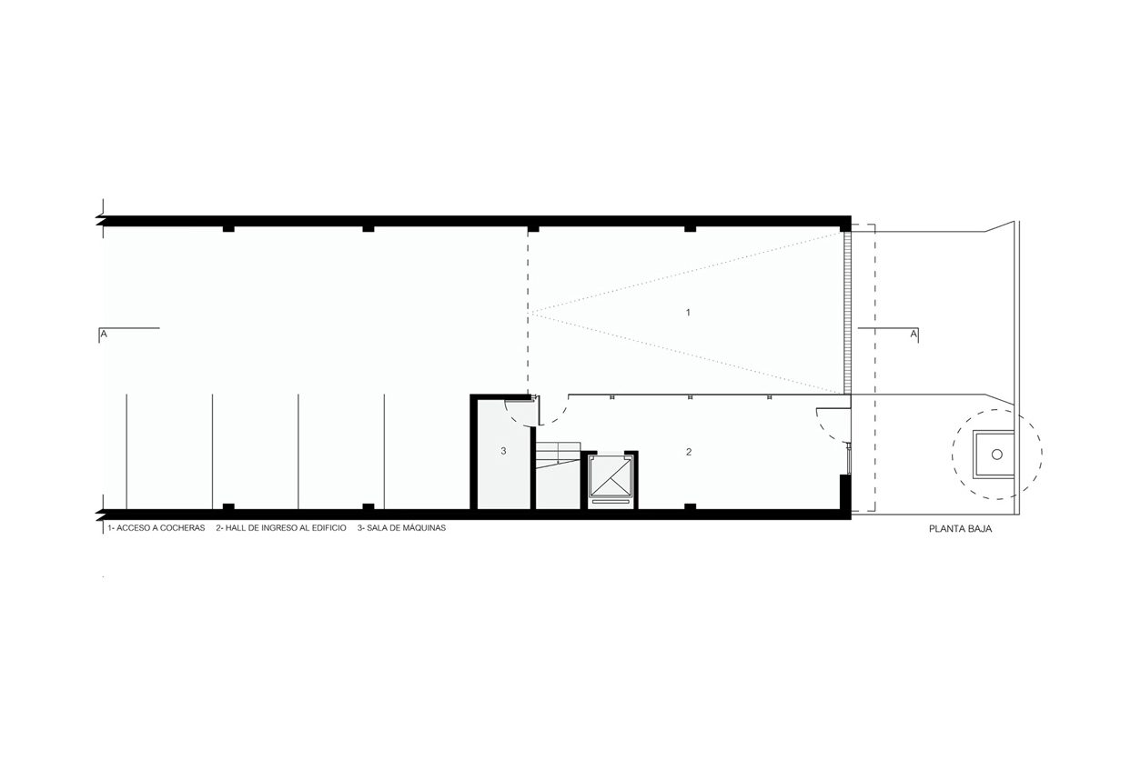
The scheme basement-development-finishing is conformed by adding a mezzanine floor and a metallic casing, making the best use of the existing structure and taking full advantage of the space and height allowed by the zoning plan.
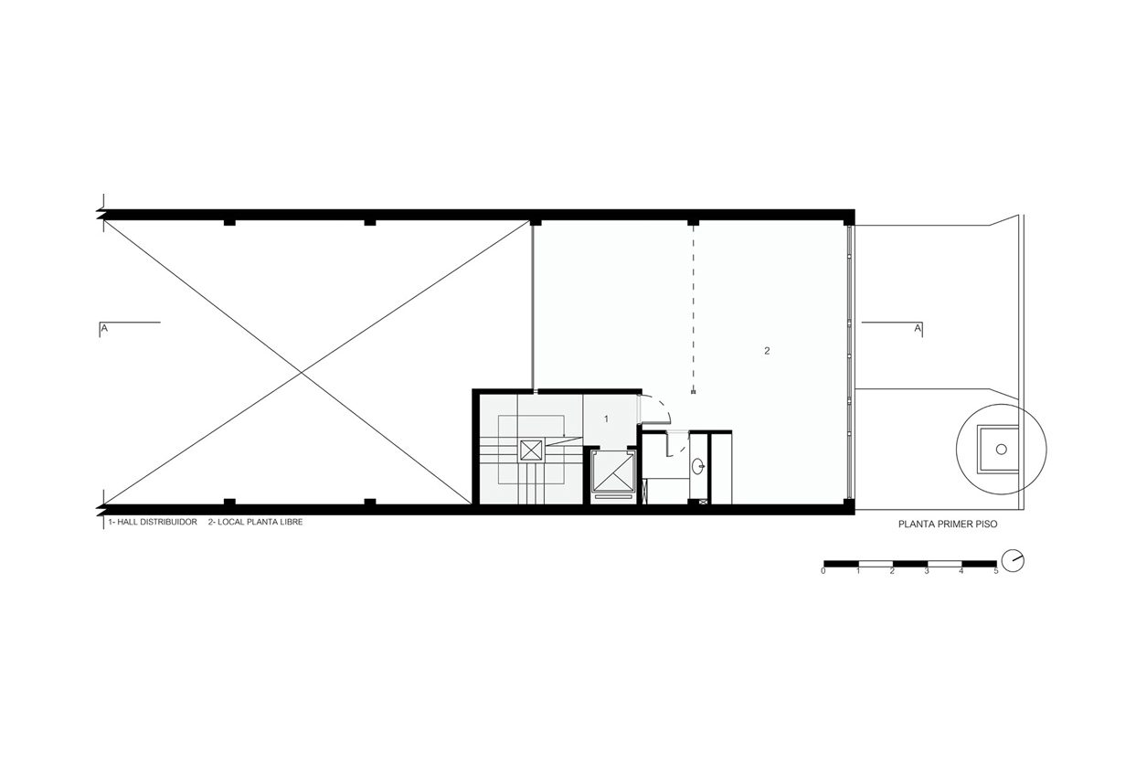
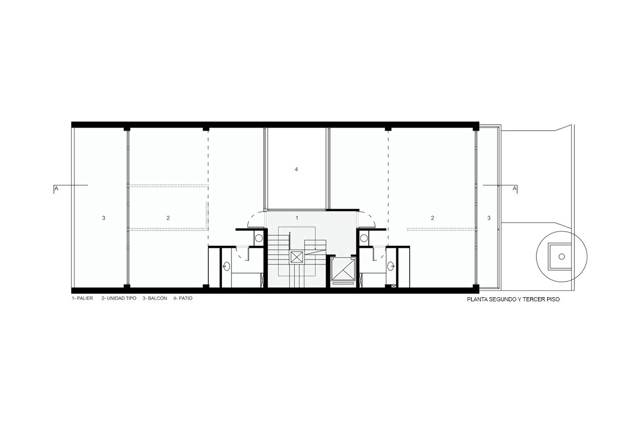
The old building of 8.66 m x 25 m was composed of five structural modules parallel to the street. Due to the existence of major beams there were no columns within the lot.
The central module is deconstructed and chosen to contain the vertical circulation and a court yard which organizes the area, ventilates and gives light to the units and common areas. The building comprises now two units per floor in direct relation to the central court yard. The service spaces as well as installations in each unit are strategically located allowing, by simple operations, different uses of the same space. The open-plan is originally proposed to house offices, but they can be transformed into one or two bedroom apartments adding one or two walls and a door if required by changes in the economic situation.
The hybrid character of the building is reflected in the façade: Reinterpreting the building regulations, it reassembles a “box” which is deconstructed through some movements in every direction. Such movements, from inside the units, generate different interior and exterior relationships, allowing each sector to create its own particularity.
The use of the folded sheet forming the enclosure is the continuity of the new vertical metallic casing and is perforated to create an internal / external duality.
A limited variety of construction materials was used: glass, concrete and metal, all of them exposing on the facade and the common areas, in order to produce a formal material dialogue appealing to the lighting and the spatial quality as an added value to the building.
Project Info
Architects: Estudio Aloras
Country: Argentina, Rosario
Area: 1077 m²
Year: 2014
Photographs: Walter Salcedo
Collaborators: Santiago Bueno
Architect In Charge: Martín Aloras






























Madeline Brooks is a Projects Editor at Arch2O, where she has been shaping and refining architectural content since March 2024. With over a decade of experience in editorial work, she has curated, revised, and published an array of projects covering architecture, urbanism, and public space design. A graduate of the Harvard University Graduate School of Design, Madeline brings a strong academic foundation and a discerning editorial eye to each piece she oversees. Since joining Arch2O, she has played a pivotal role in shaping the platform’s editorial direction, with a focus on sustainability, social relevance, and cutting-edge design. Madeline excels at translating complex architectural ideas into clear, engaging stories that resonate with both industry professionals and general readers. She works closely with architects, designers, and global contributors to ensure every project is presented with clarity, depth, and compelling visual narrative. Her editorial leadership continues to elevate Arch2O’s role in global architectural dialogue.









