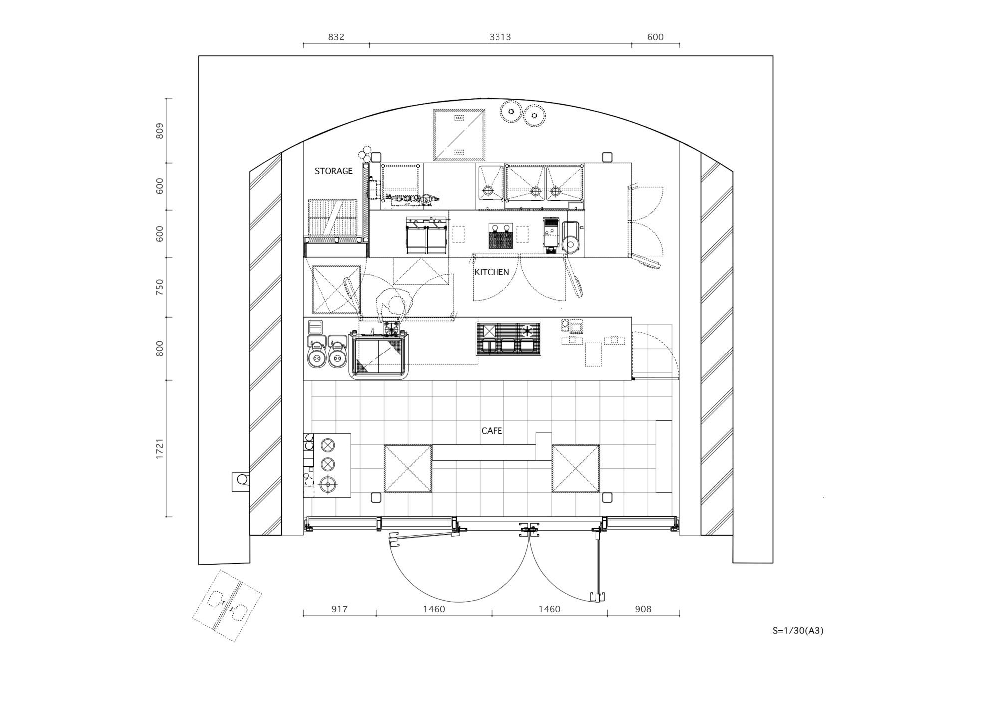
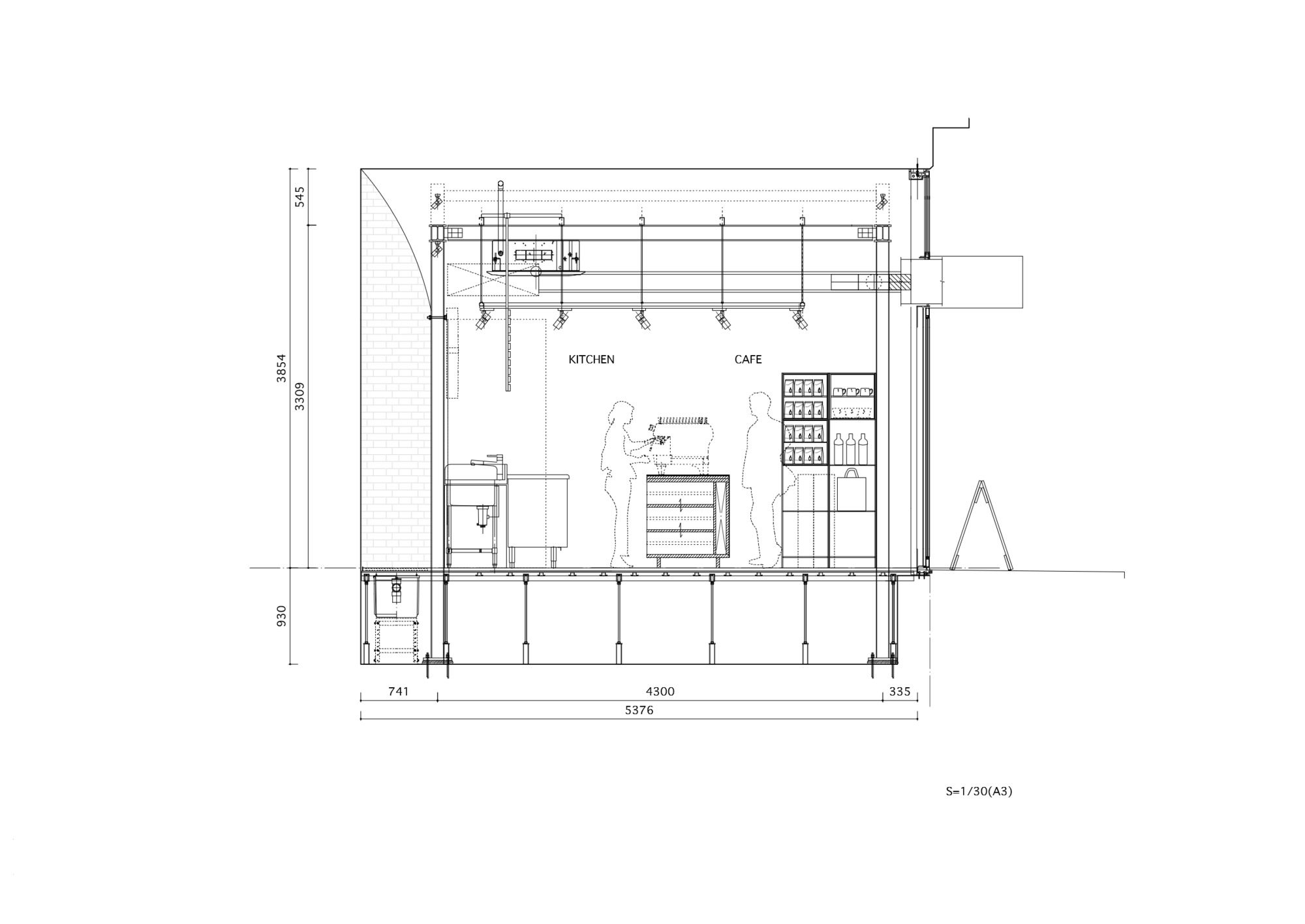
Blue Bottle Coffee Kanda Manseibashi Cafe, This tiny cafe at Kanda Manseibashi is the eleventh store Blue Bottle Coffee opened in Japan. It is their smallest store with a floor area of 25m2 and the first takeout-only cafe without seating inside.
It is situated under a 100-year old railway bridge (for the Chuo Line) constructed of brick. Our design focused on how to integrate the cafe into this attractive existing environment with a long history.
We removed the existing plasterboard finishes on the walls and ceiling and incorporated the exposed structure made of red bricks and concrete in the space.
The white volume constituting a counter is placed as if being wrapped inside the solid structural frame. We hope this tiny cafe will continue to integrate with the city.
Project Info
Architects: Schemata Architects
Country: Japan, Chiyoda City
Area: 24 m²
Year: 2018
Photographs: Takumi Ota
Project Team: Yasunori Nakano
Lead Architects: Jo Nagasaka / Schemata Architects
Lighting Plan: Modulex
Construction: TANK
Acoustic Design: WHITELIGHT.Ltd










Tags: 2018Blue Bottle Coffee Kanda Manseibashi CafeBrickChiyoda CityConcreteJapanSchemata ArchitectsTakumi Ota
Anastasia Andreieva is an accomplished Architectural Projects Editor at Arch2O, bringing a unique blend of linguistic expertise and design enthusiasm to the team. Born and raised in Ukraine, she holds a Master’s degree in Languages from Taras Shevchenko National University of Kyiv. Her deep passion for architecture and visual storytelling led her to transition from translation and editorial roles into the world of design media. With a keen eye for conceptual clarity and narrative structure, Anastasia curates and presents global architectural projects with precision and flair. She is particularly drawn to parametric and digital design, cultural context, and emerging voices in architecture. When I’m not analyzing the latest architectural trends, you’ll probably find me searching for hidden gems in cityscapes or appreciating the beauty of well-crafted spaces. After all, great design—like great connections—can be found in the most unexpected places. Speaking of connections, because architecture isn’t the only thing that brings people together.
