Bill Sorro Community Building | Kennerly Architecture & Planning

Bill Sorro Community Building, The mixed-use Bill Sorro Community reanimates a tough and abandoned South of Market corner with 67 apartments for low-income families, including 14 apartments for developmentally disabled adults, retail, and community space. Located at a prominent San Francisco crossroads in the Sixth Street Lodging-House Historic District, the project involved significant partnerships with the community, including The Manilatown Heritage Foundation, and Urban Solutions, to reflect the historic and unique qualities of the neighborhood as well as the mission of Bill Sorro, an endeared community leader. The building’s design resonates with the neighborhood’s distinctive character, enhances its’ vibrant mix of uses, and preserves affordability in this central, transit-rich location. Bill Sorro residents are within walking distance of major bus and BART lines, Victoria Draves Park, and the Gene Friend Recreation Center.

© Bruce Demonte8

© Bruce Demonte

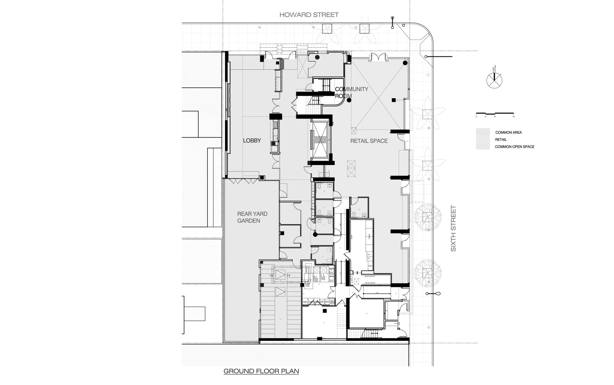
Since housing alone is not enough to create a vibrant affordable neighborhood, the retail storefronts have been leased to two affordable, ethnic eateries supporting the economic development of Sixth Street and extend the existing pattern of tall retail frontages around the corner onto Howard Street. Back of house and infrastructure areas, including trash, water-closets, utilities, and ventilation systems were thoughtfully configured to reduce Tenant Improvement costs yet allow flexibility so economically disadvantaged businesses could afford to operate them.

© Bruce Demonte2

© Bruce Demonte

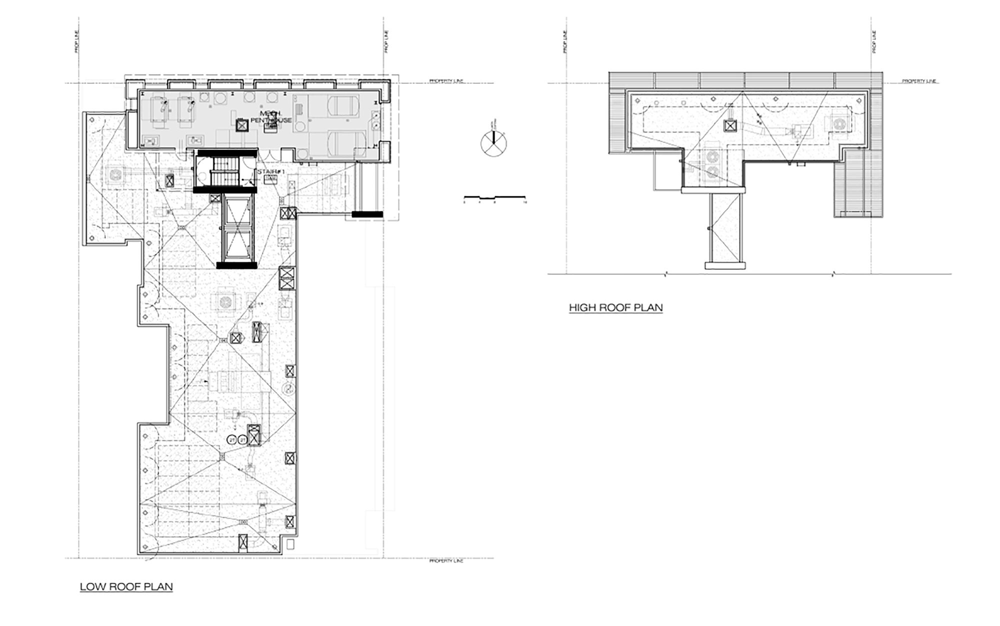
Affordable family housing in the expensive and gentrifying San Francisco Bay Area, is challenged by space constraints and construction cost. As such, dwellings must gracefully accommodate multi-generations and high occupancy levels: 3 persons in a One-bedroom, 5 in a Two-bedroom, and 7 in Three-bedroom units. Additionally, common spaces need to be durable, beautiful, commodious, and multivalent. Bill Sorro Community delivers on all these fronts through creative space planning, a shallow building footprint, and proactive building management. Residential amenities include private balconies, a common roof garden, multiple laundry rooms, day-lit corridors, indoor bike room, landscaped courtyard, and flexible spaces for offices, exercise and community gatherings.

© Bruce Demonte3

© Bruce Demonte

The building is nine-stories and occupies a 10,000 square foot site. Above the double-height corner restaurant space, the building breaks into two volumes that complement the varied building profiles along Sixth Street and reflect the varied apartment sizes within. The taller volume marks the intersection, while the lower volume mediates the scale of its’ low-rise neighbors to the south. The transparent base integrates the eateries, residential lobby and community space, and contrasts the masonry residential volumes above while maintaining a distinct identity and privacy for the residential lobby entrance and residents.

© Bruce Demonte4

© Bruce Demonte

Each of the two primary building volumes in the design is clad in a brick veneer with deep punched window groupings, taking cues from older masonry buildings in the district and along nearby Market Street. The brick is set in courses of different thicknesses offering texture and subtle shadow lines on the Howard Street volume. Soldier courses of brick on the 6th Street volume articulate floors and lintels across window and balcony alcoves. Exposed structural concrete fin-walls bracket these volumes at the blind-walls and at the transition between volumes along 6th Street.

Project Info
Architects: Kennerly Architecture & Planning
Country: United States, San Francisco
Area: 69000 ft²
Year: 2017
Photographs: Bruce Demonte
Manufacturers AutoDesk, Sherwin-Williams, Adobe, Alumawall, Arcadia Custom, Armstrong Ceilings, AutoDesSys, BMI Cobert, Bluebeam, Daltile, Graham Architectural Products, H.C. Muddox, James Hardie, Landscape Forms, Steelcase, Tectura, Torlys, Trimble, Wausau Tiles, Wausau Window and Wall Systems, +1: AutoDesk
Design Team: Owen Kennerly, Sarina Bowen Kennerly, Brian Stryzek
Clients: Mercy Housing California

Kennerly Architecture & Planning
Arch2O.com
Logo