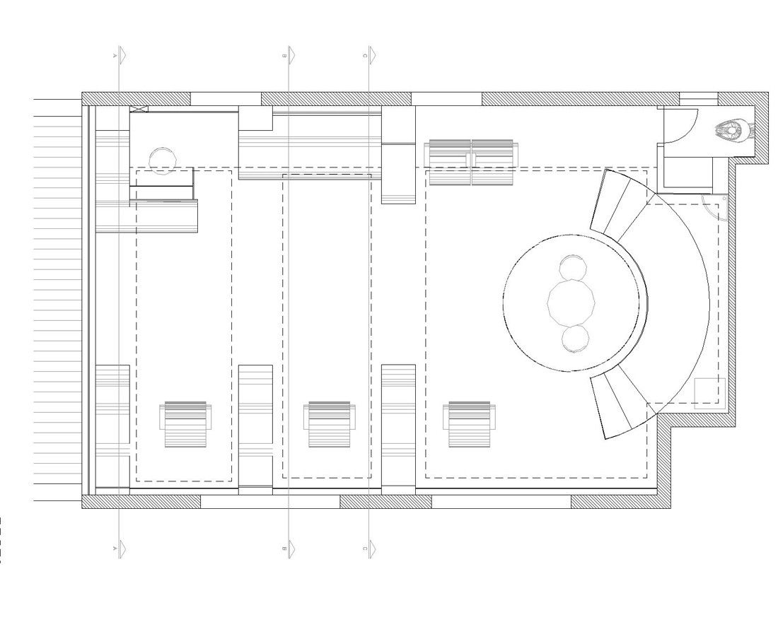
Inspired by the natural way hair grows; from the roots outwards, the design choose the color kitchen as the focal and starting point for the space as that is where all the magic happens. The geometry of the shop was inspired from the manner in which hair curves and sways.
The partitioned walls create three main spaces all of which start with the barber’s work station and then move on to create a hair wash area, the second creates a customer sitting area and the third creates the secretary’s desk. The space is visually dynamic with pops of apple green in a sea of lab white.
By Danya Hakky














Anastasia Andreieva is an accomplished Architectural Projects Editor at Arch2O, bringing a unique blend of linguistic expertise and design enthusiasm to the team. Born and raised in Ukraine, she holds a Master’s degree in Languages from Taras Shevchenko National University of Kyiv. Her deep passion for architecture and visual storytelling led her to transition from translation and editorial roles into the world of design media. With a keen eye for conceptual clarity and narrative structure, Anastasia curates and presents global architectural projects with precision and flair. She is particularly drawn to parametric and digital design, cultural context, and emerging voices in architecture. When I’m not analyzing the latest architectural trends, you’ll probably find me searching for hidden gems in cityscapes or appreciating the beauty of well-crafted spaces. After all, great design—like great connections—can be found in the most unexpected places. Speaking of connections, because architecture isn’t the only thing that brings people together.
