Bachgraben Public Pool Restaurant | MET Architects
Bachgraben Public Pool Restaurant, The Gartenbad Bachgraben public swimming pool was designed by Otto and Walter Senn with engineer Heinz Hossdorf and built in 1962. Its concrete buildings are key examples of post-war modernism and are listed in the Basel-Stadt monument preservation inventory. The service building near the main entrance had seen only partial renovation since its construction and required a full refurbishment. The staff areas no longer met operational needs, and the restaurant had been closed since 2011.
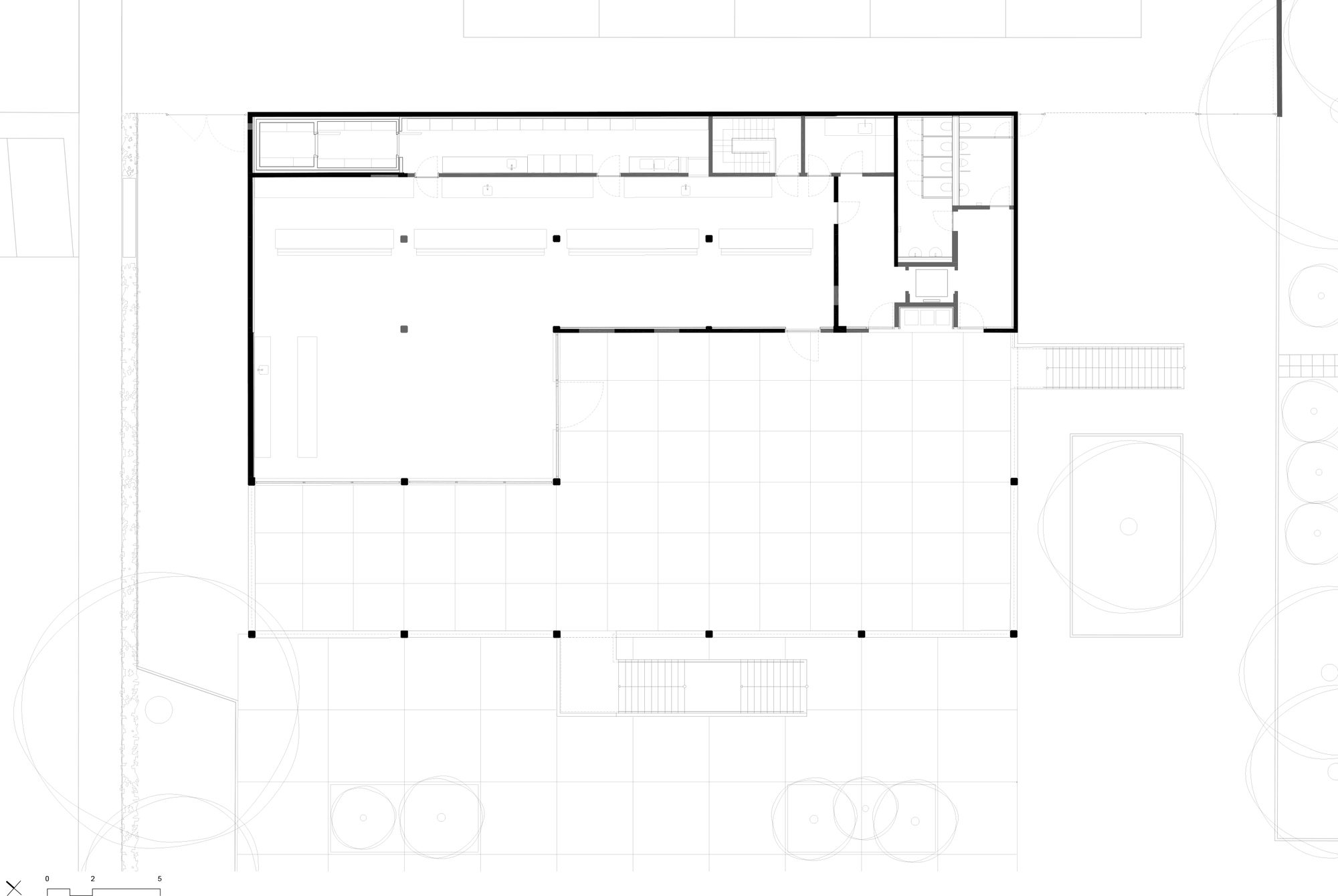
The brief called for three uses: a self-service restaurant, staff operation rooms, and a youth centre, the latter without pool access. MET Architects won the commission and, after analyzing the structure, proposed relocating the youth centre to the former caretaker’s house. This allowed the main building to be renovated in a way that respected its heritage, with all interventions subordinated to the listed structure.
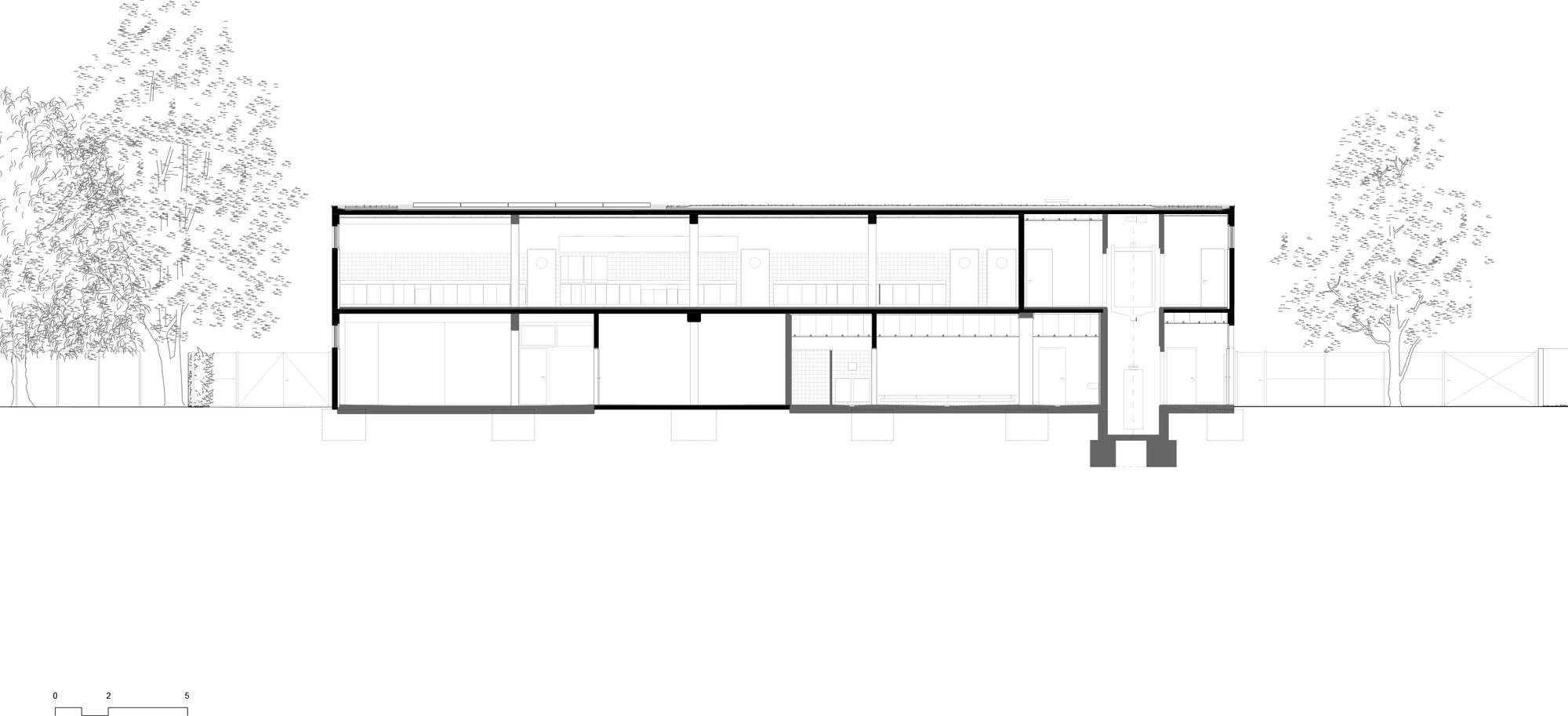
In the spirit of 1960s modernism, the original building had a minimalist, functional load-bearing system. The new uses were integrated accordingly. The upper floor, once a large production kitchen, now houses a self-service area that opens to a covered terrace overlooking the pool. A new kitchen and ancillary rooms were added along the street-facing façade. Structural changes, like new concrete beams, were implemented in keeping with the original design intent and are barely distinguishable from the original elements.
A lift and extra staircase were added for barrier-free access and ease of delivery. The ground floor now contains public toilets, changing and break rooms, a first-aid room, a multipurpose space, and a garage for garden maintenance. New openings on the garden side and a folding garage door were sensitively integrated into the façade.
Before renovation, the exposed concrete façade was in poor condition, with corrosion and repeated surface treatments. Instead of demolition, a sustainable repair concept was developed with heritage authorities. After stripping the damaged layers and restoring the reinforcement, the concrete was waterproofed, and the historical color and graphic textures were restored by retouching.
Energy upgrades focused on preserving the building fabric. The original interior insulation was replaced in kind, the wooden windows received new double glazing, and solar shading was added to reduce heat gains. A heat pump with geothermal probes and a flat photovoltaic system on the green roof now supplies most of the electricity for the kitchen and cold storage. These measures allowed the listed concrete building to meet today’s energy standards.
The previously closed-off interior was reimagined for public use. To accommodate up to 7,000 guests on weekends, all surfaces were renewed. A floor pattern from the 1960s inspired the new tiled layout in cheerful pool colours. Public areas are unified with bold royal blue walls, furniture, and panels, while staff areas were designed in muted tones, in line with the building’s original functional character.
Project Info
Architects: MET Architects
Country: Switzerland, Allschwil
Area: 1400 m²
Year: 2024
Photographs:Barbara Bühler
Project Supervision: Thomas Thalhofer, Roula Moharram
Project Lead: Andrea Perletti
Design Team: MET Architects
Construction Management: Martini Schäfer Baumanagement
Structural Engineer: wh-p Ingenieure
Electrical Engineer: Eplan
Mechanical Engineer: Herrmann + Partner Energietechnik
Sanitary Engineer: Bogenschütz


















































