Avila Warehouse Conversion | Allaround Lab

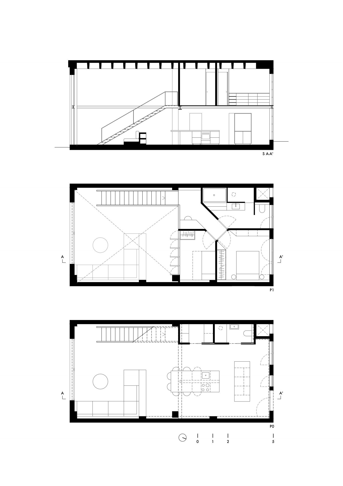
Avila Warehouse Conversion is a project that reinterprets what was originally an open-plan warehouse located in the Poble Nou neighborhood of Barcelona to turn it into a 120m2 multifunctional and habitable space. The proposal aims to carry out this transformation using what we call “the minimum means to inhabit a place”, namely, storage, humid spaces, and circulations, considering the entire free volume and not just it’s surface.

1

Courteys of Allaround Lab

From the arrangement of different construction pieces that articulate the different environments, and with the minimum necessary partitions, we work and project the void as the main element of the proposal. Likewise, the distributor on the upper floor is proposed as a diagonal, square-shaped void that, despite the simplicity of the whole, allows cross visuals between all the rooms, including the one on the rear façade from the staircase.

Avila Warehouse Conversion

Courteys of Allaround Lab

With the use of continuous materials and light colors, the aim is to obtain a bright, neutral, and warm place at the same time, making use of the furniture and integrating it from the beginning of the project. The proposal values the space thanks to its simplicity, the different textures of the materials, and the light, leaving aside any excess or ornament and focusing on satisfying the needs of its inhabitants.

Project Info
Architects: Allaround Lab
Country: Spain, Barcelona
Year: 2022
Photographs: Courteys ofAllaround Lab
Manufacturers AutoDesk, Cosentino, JUNG, Cubro, Mobles 114: AutoDesk
Collaborators: Mònica Piqué

Mohamed Saleh
Arch2O.com
Logo
Send this to a friend