Austrian Pavilion for Shanghai Expo | SPAN & Zeytinoglu Architects
Austrian Pavilion for Shanghai Expo SPAN & Zeytinoglu Architects
Vienna based firms SPAN and Zeytinoglu architects designed the Austrian Pavilion for the Shanghai Expo in 2010. Although it has been several years the architecture and design of this structure is not to be overlooked and is worth taking another glimpse at. In order to acquire a better understanding about architecture, we not only need to push the limits of what we know but also reflect on the past to ensure that the progress being made has value.
The Austrian Pavilion is designed to portray the quality of living of Austrian life including culture, culinary expertise, urban textures, opulent landscapes, lavish foliages, and possibly most importantly music. Music was used as a concept to reflect continuity and connectivity, which is displayed through the architectural articulation and various spaces within the program.
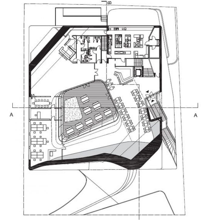
The design features a topological body with a main space, audience chamber, and exterior epidermis and several pockets, pochés, that house programs such as a shop, restaurant, office, and VIP area.
The pavilion is a performance controlled by the video jockeys. The atmosphere of the main space is constantly changing due to the wide range of music being played ranging from baroque music, to classic, modern, and also contemporary. From the expressive form to the acoustic forces, this design not only captures the idea of music well but also beautifully relates it back to Austrian culture to create a unique piece of architecture to be enjoyed by all.
Architects: SPAN & Zeytinoglu Architects
By Kristin Hoover
Courtesy of SPAN & Zeytinoglu Architects














