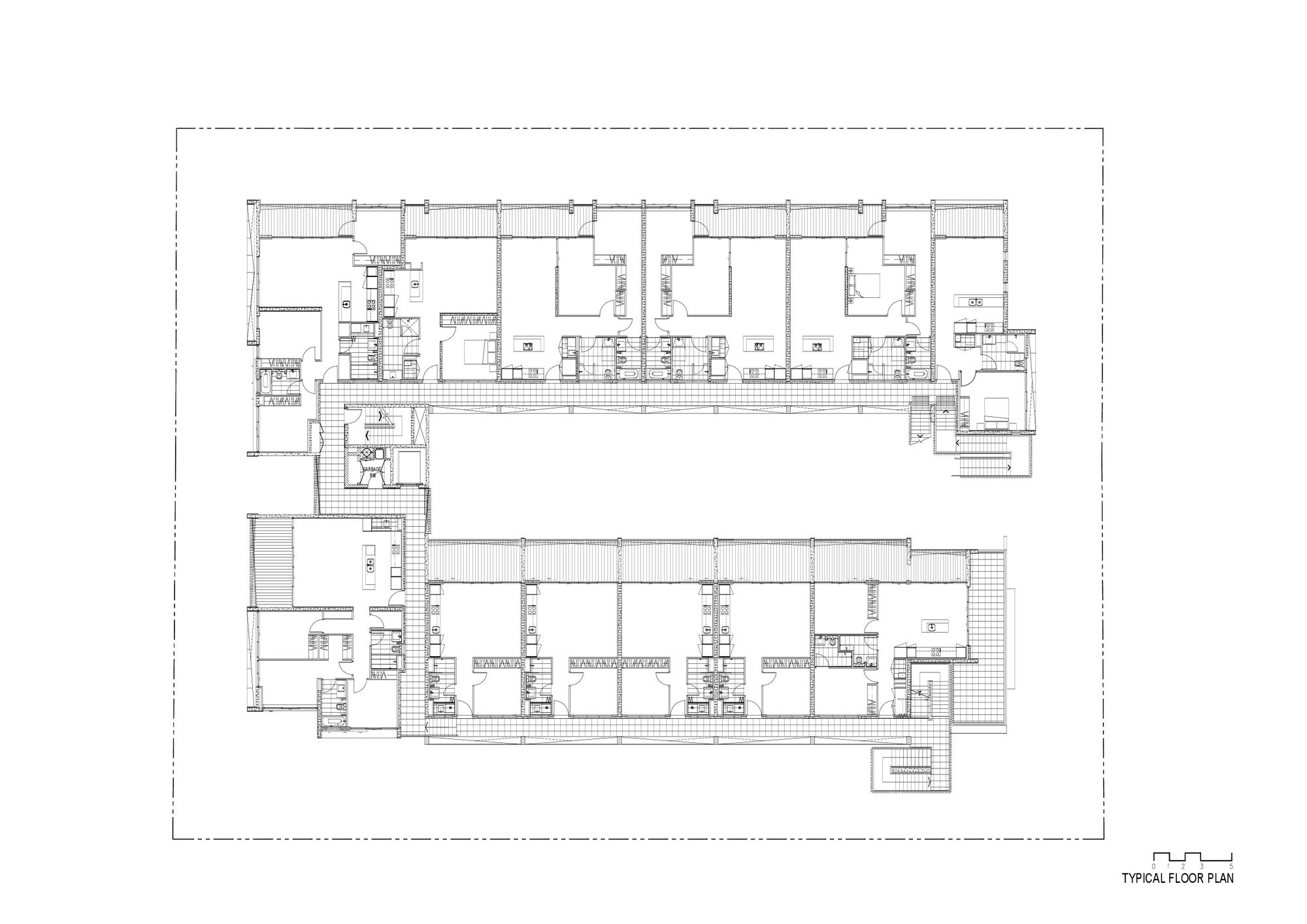
Designed by Tony Owen Partners, Astor is a 4 story apartment complex is located in the North Sydney suburb of Crows Nest. The design contains 50 units. The surrounding area is an exclusive leafy suburb thus the design had to achieve the highest standard of finish and quality. The site is located on a busy main road and is overlooked on all sides, so we designed the ‘U shaped’ scheme to face into a quiet central landscaped courtyard which is oriented north for the sun. All of the units are accessed from this courtyard via outdoor screened walkways. Thus the design blends landscaped areas with the internal apartment spaces.
The 4-story design incorporates a vertical expression and breaks down the massing into 2 story portions; as such it reflects the terrace house character of the area. We have used a limited palette of off-form concrete and bronze metal panels. This gives a refined, natural, organic and contemporary impression to the building and merges with the surrounding landscaped environment.
We have created specially designed origami metal screens. These screens are made from laser-cut folded aluminum. They provide solar shading and privacy from the adjoining properties. They also screen the walkways which are bathed in a soft dappled light. The aluminum paling balustrades are also folded. This creates a distinctive and unique design. Stone and timber batten fences are included to add to the earthy warmth.
The result is a progressive design of a high quality which will enrich the area and provide a benchmark for the community.
Project Info:
Architects: Tony Owen Partners
Location: Crows Nest, Sydney, Australia
Lead Architects: Tony Owen
Area: 5000.0 m2
Project Year: 2018
Photographs: John Gollings
Manufacturers: Kitchen Appliances, Lighting, Toilets, Paint
Project Name: Astor Crows Nest

















