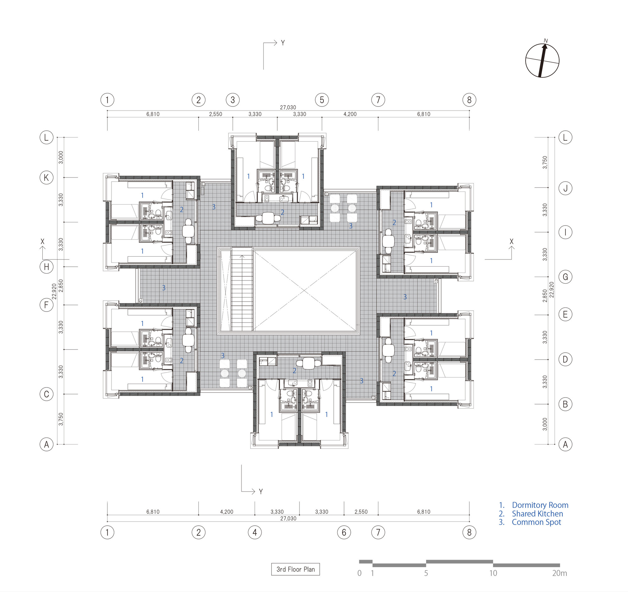
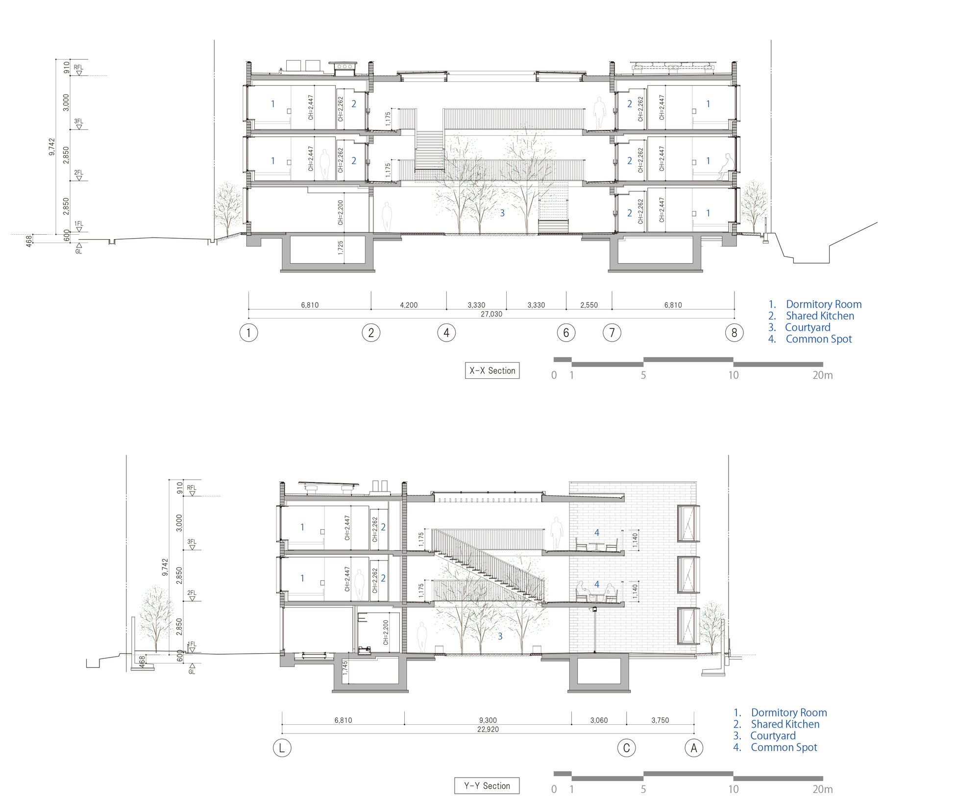
Asahi Facilities Hotarugaike Dormitory KAEDE, This is a project to create a company dormitory for single people. Each employee has their own hobbies and lifestyles. We planned this dormitory as the place they could build intimate relationships and communities within. The site is located in an old residential area. We divided the building volume into six as a three-story building with a reduced height so that it fits the scale of the surrounding houses.
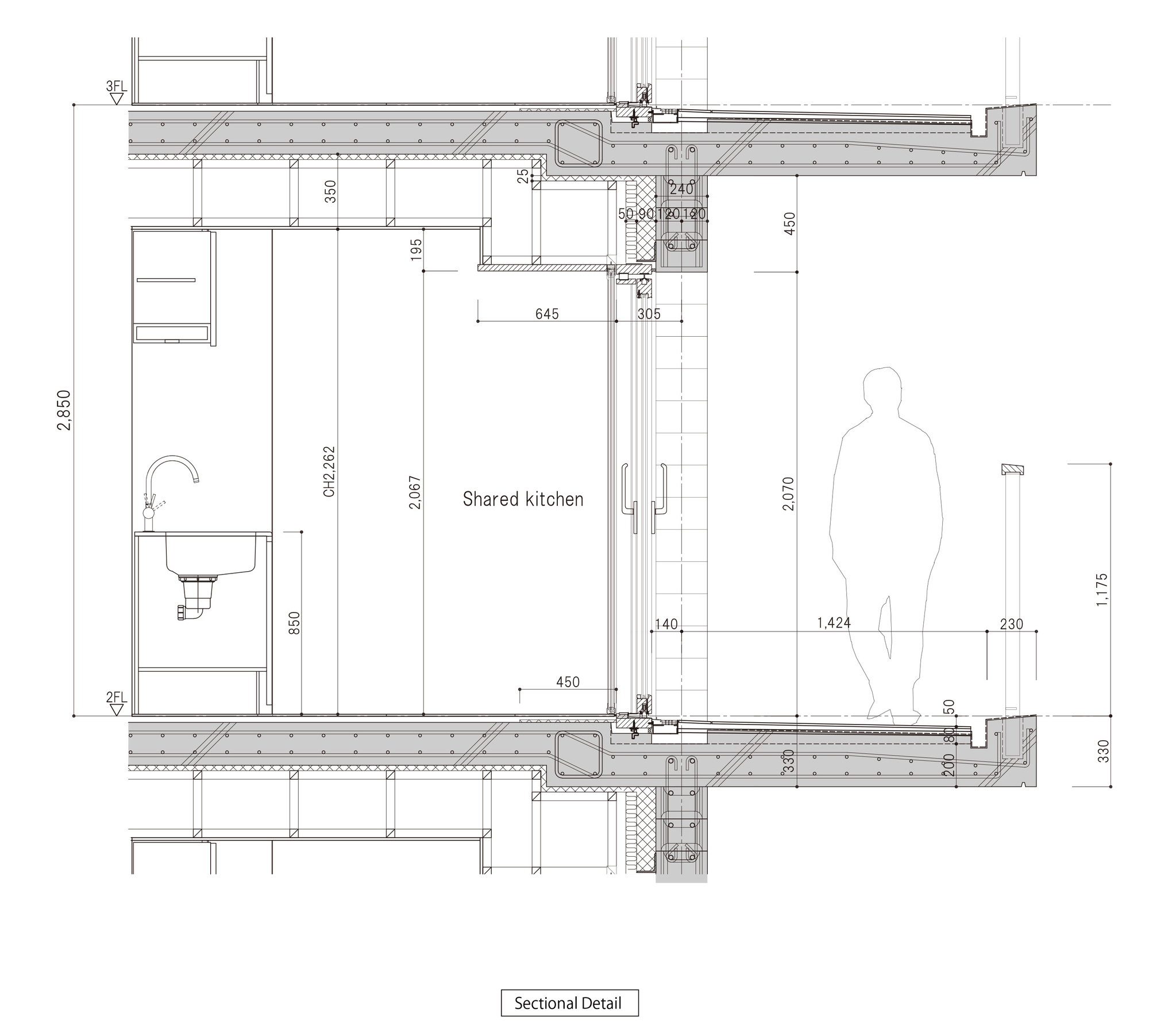
We arranged the building volume around the courtyard and set up an open space called “common spot” between them. It will deliver light and wind to the public space and will be a place for communication as residents’ second living room. We have also organized the unit into two compact private rooms and a shared kitchen where they can cook and eat. The shared kitchen can be opened to a public space by a large wooden sliding door.
They can share dishes made in the shared kitchen with friends at a common spot. The shared kitchen will create relationships with others, and the community will grow in the dormitory. The dormitory has a variety of space from independent dormitory rooms to open public spaces. We hope that the architecture will allow each resident to choose a place where they feel comfortable and hold a variety of relationships with others.
Project Info
Architects: Takenaka Corporation
Country: Japan, Toyonaka
Area: 1063 m²
Year: 2019
Photographs: Tomoki Hahakura
Manufacturers GRAPHISOFT, Nagoya Mosaic-Tile, TAIYO ECOBLOXX, Tamiya, Union: GRAPHISOFT
Clients: Asahi Facilities Inc.
Landscape: Masayuki Mukouyama, Takeshi Tsuchio

































Tags: 2019Asahi Facilities Hotarugaike Dormitory KAEDEJapanTakenaka CorporationTomoki HahakuraToyonaka
